Dit huis op Funda: https://www.funda.nl/detail/43828825/

Omschrijving
Charmante 4-kamer eengezinswoning met tuin en zonnig dakterras
Welkom op de Kovelaarstraat, een sfeervol en rustig (doodlopend) straatje met een gemoedelijke sfeer. Deze charmante eengezinswoning ligt op een unieke plek. Je woont hier in alle rust, terwijl het bruisende stadsleven op slechts een steenworp afstand ligt.
Deze sfeervolle 4-kamer eengezinswoning heeft een knusse tuin, een heerlijk dakterras én een handige schuur welke ook via achterom te bereiken is.
Vanaf het zonnige dakterras kijk je uit op groene boomtoppen, waar je soms eekhoorntjes voorbij ziet springen en vogeltjes hoort fluiten. ‘s Ochtends prikt het zonnetje door de bomen op het dakterras en die blijft in de zomer tot en met het avondeten. In de middag bereikt de zon het bankje voor het huis, waar regelmatig met buren wordt geborreld.
Waarom je hier wilt wonen:
V 4-kamer woning
V Fijne tuin met serre & zonnig dakterras
V Instapklaar met moderne afwerking
V Handige schuur en achterom
V Parkeren voor de deur (met vergunning)
V Alles dichtbij: OV, winkels, horeca
V Binnen 10 minuten fietsen in het centrum
V Energielabel D (geldig tot 2034)
V Volledig gerenoveerd in 2018
V Oplevering in overleg
Wat maakt deze buurt zo fijn?
De Kovelaarstraat ligt in de levendige en geliefde ‘Watervogelbuurt’, een wijk die bekend staat om zijn charmante sfeer en groene omgeving. Het is een historisch straatje met een gemoedelijke sfeer, waar buren regelmatig een praatje maken.
Op loopafstand vind je de gezellige terrassen van het Ledig Erf, het Louis Hartloopercomplex en de diverse winkels en eetgelegenheden in de Twijnstraat. Ook voor natuurliefhebbers is dit een toplocatie: je wandelt of fietst zo via het Krommerijnpark naar Amelisweerd of Fort Lunet met verschillende horecagelegenheden.
Met station Vaartsche Rijn om de hoek ben je snel op Utrecht CS of de Uithof. Met de auto rijd je binnen enkele minuten de A2 of A27 op. Hier woon je in een oase van rust, zonder de stad te missen.
INDELING
Begane grond
Je komt binnen in de hal, met rechts de meterkast. Via de deur aan je rechterhand stap je de woonkamer in: knus en sfeervol, met een fijn zitje bij het raam. Bij de zithoek achterin openen openslaande deuren naar de charmante glazen serre en het gezellige tuintje. Vanuit hier heb je toegang tot de schuur en de achterom.
De keuken is van alle gemakken voorzien: een koel-vriescombinatie, vaatwasser, kokendwaterkraan, oven en inductiekookplaat met afzuigkap. Achter de keuken ligt de bijkeuken, een fijne ruimte voor bijvoorbeeld een extra vriezer en opbergruimte. Hier bevindt zich ook de cv-installatie en een keurig toilet.
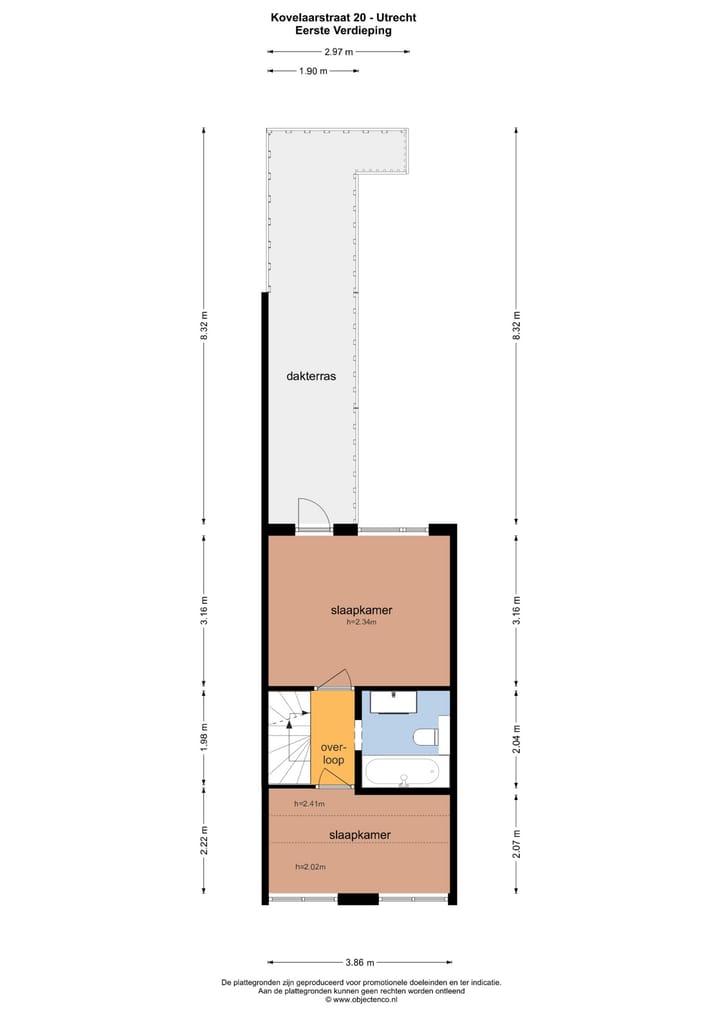
Eerste verdieping
Hier vind je twee slaapkamers: één aan de voorzijde en één aan de achterkant. De achterste slaapkamer heeft directe toegang tot het dakterras—een heerlijke plek om in alle rust van het groen te genieten. Tussen de slaapkamers ligt de moderne badkamer, compleet met een wastafelmeubel met dubbele kranen, een zwevend toilet en een badkuip met douche.
Tweede verdieping
Via de vaste trap kom je op de bovenste verdieping. Dankzij de dakkapel en dakramen is dit een lichte, ruime kamer. Hier vind je ook de aansluiting voor de wasmachine en is het leidingwerk gereed voor een extra wastafel.
Kom zelf de sfeer proeven!
Plan een bezichtiging via je (NVM) makelaar of Funda. Dit pareltje wil je niet missen! Er zijn diverse NVM-clausules van toepassing, opgenomen in de brochure. Gunning aan verkoper.
Kenmerken
Overdracht
- Laatste vraagprijs
- € 509.000 kosten koper
- Vraagprijs per m²
- € 6.362
- Status
- Verkocht
Bouw
- Bouwjaar
- Voor 1906
- Soort woonhuis
- Eengezinswoning, tussenwoning
- Soort bouw
- Bestaande bouw
- Soort dak
- Zadeldak bedekt met bitumineuze dakbedekking
Oppervlakten en inhoud
- Gebruiksoppervlakten
- Wonen
- 80 m²
- Overige inpandige ruimte
- 3 m²
- Gebouwgebonden buitenruimte
- 23 m²
- Perceel
- 65 m²
- Inhoud
- 292 m³
Indeling
- Aantal kamers
- 5 kamers (4 slaapkamers)
- Aantal badkamers
- 1 badkamer en 1 apart toilet
- Badkamervoorzieningen
- Douche, wastafel, en wastafelmeubel
- Aantal woonlagen
- 2 woonlagen en een zolder
- Voorzieningen
- TV kabel
Energie
- Energielabel
- D
- Isolatie
- Dakisolatie en dubbel glas
- Verwarming
- Cv-ketel
- Warm water
- Cv-ketel
- Cv-ketel
- Nefit trendline hrc30 cw5 (gas gestookt combiketel uit 2018, eigendom)
Kadastrale gegevens
- TOLSTEEG B 2062
- Kadastrale kaart
- Oppervlakte
- 65 m²
- Eigendomssituatie
- Volle eigendom
Buitenruimte
- Ligging
- Aan rustige weg en beschutte ligging
- Tuin
- Achtertuin
- Achtertuin
- 7 m² (3,67 meter diep en 1,87 meter breed)
- Ligging tuin
- Gelegen op het oosten
Bergruimte
- Schuur/berging
- Aangebouwde stenen berging
- Isolatie
- Geen isolatie
Parkeergelegenheid
- Soort parkeergelegenheid
- Betaald parkeren, openbaar parkeren en parkeervergunningen
Foto's 58
© 2001-2025 funda

























































