Dit huis op Funda: https://www.funda.nl/detail/43904272/

Omschrijving
Heerlijk licht dubbel bovenhuis met geweldig dakterras aan de gezellige Willem van Hillegaersbergstraat!
Deze fantastische woning is met oog voor detail in 2022 volledig gerenoveerd.
De woning beschikt onder meer over een fijne woonkamer met authentieke details en een luxe woonkeuken met groot eiland. Het geweldige dakterras van 37 m² geeft uitzicht op alle plassen van Rotterdam. Met drie fijne slaapkamers op de slaapverdieping, een luxe badkamer met dubbele wastafel én een inloopdouche heeft deze woning alles wat je zoekt!
OMGEVING
Gelegen in de gezellige wijk Hillegersberg-Zuid. Op loopafstand tref je de rivier de Rotte, de Bergse Voor- en Achterplas en diverse winkels aan de Kleiweg. Zo vind je hier de Albert Heijn, diverse kledingwinkels en eetgelegenheden, zoals wijnbar de Avonden, een koffiecafé en tevens boekwinkel Ver van Hier. Om de hoek van de woning tref je het altijd gezellige restaurant Rijntje en het hippe terras op het water van On Other Drugs. Het openbaar vervoer bereik je binnen enkele loopminuten. Binnen 15 minuten sta je in het centrum van Rotterdam en in 10 fietsminuten sta je op de Meent!
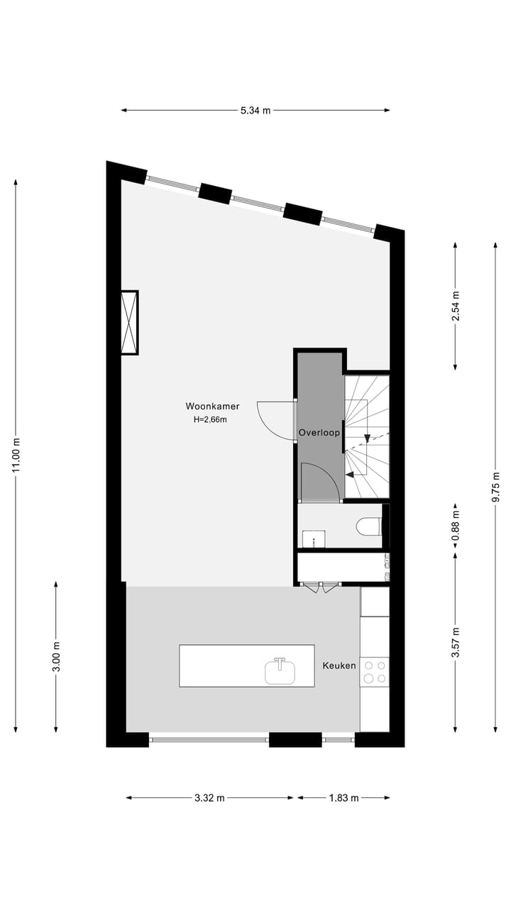
INDELING
Begane grond
Trapopgang naar de voordeur van het appartement op de eerste verdieping.
2de verdieping/woonverdieping
Bij binnenkomst stap je in een ruime hal met ingebouwde gaderobe kast. Via de glazendeur stap je binnen in een heerlijke ruimte. Aan de voorzijde is de woonkamer gelegen. Een sfeervolle ruimte met plek voor een grote bank. De televisie heeft een eigen hoek gekregen met mooie inbouwkasten. Het glas in lood geeft prachtig licht in de ruimte. Aan de achterzijde ligt de luxe keuken voorzien van greeploze kasten, luxe apparatuur en een gezellig eiland. De keuken beschikt over de volgende apparatuur; Quooker met extra brede gootsteen van Lorreine, 90cm brede Smeg oven met inductieplaat mét bijpassende Smeg afzuigkap, een vaatwasser van Bosch en een grote koelkast en vriezer van Samsung met nul-graden lades. Achter kasten verscholen bevindt zich nog een grote bergkast voor de voorraad.
2de verdieping/slaapverdieping
Via de vaste trap bereik je de tweede verdieping. Een fijne en lichte overloop welke toegang geeft tot alle drie de slaapkamers. De 'master bedroom' is lekker groot en beschikt onder meer over een inloopkast. In het midden van de kamers ligt de badkamer. Een royale badkamer, volledig betegeld in neutrale kleuren voorzien van een toilet, modern meubel met twee kommen en een luxe inloopdouche voorzien van regendouche. Op de overloop bevinden zich mooie hoge inbouwkasten waar onder andere de cv en wasmachine en droger achter schuil gaan. Het grote dakraam zorgt voor extra veel daglicht. De trap naar boven geeft via het dakluik met groot raam toegang tot het dakterras.
Dak/dakterras
Het royale dakterras is een geweldige buitenruimte; inbouwbloembakken mét drainagesysteem, diverse stopcontacten en twee buitenkraantjes. Kortom, er is echt aan alles gedacht! Hier is het 's zomers heerlijk vertoeven met geweldig uitzicht over Hillegersberg, maar ook de hoogbouw van Rotterdam.
Bijzonderheden
- Volledig gerenoveerd in 2022
- Vernieuwde elektra én leidingwerk
- Volledig voorzien van vloerverwarming (ruimte gestuurd)
- Luxe keuken met de high-end studio line van Samsung, Bosch en SMEG
- Geweldig dakterras van 37 m²
- Heerlijke centrale en toch rustige ligging
- Zeer uitgebreid openbaar vervoer om de hoek
- Mogelijkheid tot huren van garagebox van 50 m²
- Parkeren voor de deur
Details
- Bouwjaar 1930, gerenoveerd in 2022
- Eigen grond
- Woonoppervlakte circa 109 m²
- Inhoud van circa 363 m³ inhoud
- Dakterras van circa 35 m²
- Verwarming en warm water middels CV-ketel (Vaillant, 2024)
- Airconditioning aanwezig
- Kunststof kozijnen met grotendeels dubbele beglazing
- Energielabel: A (!)
- Actieve VVE met maandelijkse bijdrage van circa € 241,14
- Oplevering in overleg, per direct mogelijk
Wij zijn de makelaar van de verkoper. Wij adviseren je om jouw eigen makelaar mee te nemen voor je belangenbehartiging bij de aankoop van jouw toekomstige huis.
Aan deze aanbieding kunnen geen rechten worden ontleend.
Kenmerken
Overdracht
- Laatste vraagprijs
- € 600.000 kosten koper
- Vraagprijs per m²
- € 5.505
- Status
- Verkocht
- Bijdrage VvE
- € 241,14 per maand
Bouw
- Soort appartement
- Bovenwoning (dubbel bovenhuis)
- Soort bouw
- Bestaande bouw
- Bouwjaar
- 1930
- Soort dak
- Plat dak bedekt met bitumineuze dakbedekking
Oppervlakten en inhoud
- Gebruiksoppervlakten
- Wonen
- 109 m²
- Gebouwgebonden buitenruimte
- 35 m²
- Inhoud
- 363 m³
Indeling
- Aantal kamers
- 5 kamers (3 slaapkamers)
- Aantal badkamers
- 1 badkamer en 1 apart toilet
- Badkamervoorzieningen
- Dubbele wastafel, inloopdouche, toilet, vloerverwarming, en wastafelmeubel
- Aantal woonlagen
- 2 woonlagen
- Voorzieningen
- Mechanische ventilatie en TV kabel
- Gelegen op
- 2e woonlaag
Energie
- Energielabel
- Isolatie
- Dakisolatie, grotendeels dubbelglas, muurisolatie en vloerisolatie
- Verwarming
- Cv-ketel
- Warm water
- Cv-ketel
- Cv-ketel
- Vaillant (gas gestookt combiketel uit 2024, eigendom)
Kadastrale gegevens
- HILLEGERSBERG G 2175
- Kadastrale kaart
- Eigendomssituatie
- Volle eigendom
Buitenruimte
- Ligging
- Aan water, in woonwijk en vrij uitzicht
- Tuin
- Zonneterras
- Zonneterras
- 37 m² (7,30 meter diep en 5,06 meter breed)
- Balkon/dakterras
- Dakterras aanwezig
Parkeergelegenheid
- Soort parkeergelegenheid
- Betaald parkeren en parkeervergunningen
VvE checklist
- Inschrijving KvK
- Ja
- Jaarlijkse vergadering
- Ja
- Periodieke bijdrage
- Ja (€ 241,14 per maand)
- Reservefonds aanwezig
- Ja
- Onderhoudsplan
- Ja
- Opstalverzekering
- Ja
Foto's 48
© 2001-2026 funda















































