Dit huis op Funda: https://www.funda.nl/detail/43970083/

Omschrijving
Aan de Oirschotseweg 67A in Moergestel ligt deze unieke, moderne bungalow op een royaal perceel van 2.192 m². De woning is in 2020 onder architectuur gebouwd door het gerenommeerde bureau Van Aken architecten uit Eindhoven. Een ontwerp met oog voor detail, balans en hoogwaardige afwerking, waarbij stijl en functionaliteit helemaal samenkomen.
De woning is rondom voorzien van strak gestukte gevels en afgewerkt met duurzame, natuurlijke materialen zoals Afzelia hardhout en Jura natuurstenen tegels. Deze hoogwaardige afwerking zet zich voort in het interieur, waar dezelfde materialen zijn gebruikt voor een evenwichtige balans. De grote raampartijen zorgen voor een prachtige lichtinval en bieden een directe verbinding met de tuin, waardoor binnen en buiten op een natuurlijke manier in elkaar overlopen. Door het slimme ontwerp krijgt de woning een lichte, bijna zwevende uitstraling.
De bungalow is uitstekend geïsoleerd en volledig voorbereid op de toekomst. Met maar liefst 68 zonnepanelen, een WTW-installatie en een warmtepomp is de woning voorzien van moderne installaties, zonder in te leveren op comfort.
De tuin is een absolute eyecatcher: fraai aangelegd met een mooie overeenstemming tussen volwassen beplanting en gazon. Achter op het perceel bevindt zich een royaal terras, een luxe overkapping en een zwembad. Hier geniet je in alle rust van de seizoenen, de zon en het buitenleven, omringd door groen en privacy.
De ligging in een landelijke omgeving met uitzicht op de natuur, en toch op korte afstand van het gezellige dorpscentrum van Moergestel en het bruisende centrum van Oisterwijk. De nabijheid van natuurgebieden zoals de Oisterwijkse bossen en vennen en De Kampina maken deze locatie extra bijzonder.
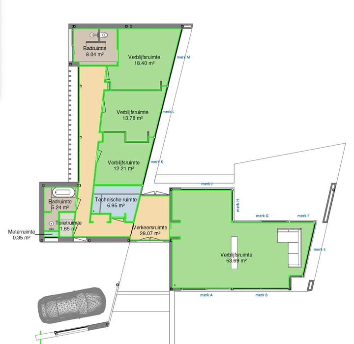
Woonoppervlakte: 155 m2
Gebouwgebonden buitenruimte: 83m2
Externe bergruimte: 37m2
Perceel: 2192m2
Bouwjaar 2020
Indeling:
De hal is centraal gelegen in de woning en biedt toegang tot het woongedeelte, de was-/installatieruimte, de carport en de vleugel met de slaap- en badkamers. De hal is voorzien van een ingebouwde garderobe en biedt tevens toegang tot de tuin.
In de rechtervleugel bevindt zich het woongedeelte, dat is opgedeeld in een woonkeuken met eetkamer en een zitkamer. De keuken beschikt over een schiereiland en een hoge kastenwand, en is uitgerust met een stoomoven, koelkast, inductiekookplaat, afzuiging, vaatwasser, spoelbak met Quooker kraan en een wijnklimaatkast. De eetkamer biedt ruimte voor een riante eettafel en heeft een kastenwand met eiken fronten en legplanken. Tussen de zitkamer en de eetkamer is een roomdivider geplaatst met een gashaard, waarmee de ruimtes optisch van elkaar worden gescheiden. De zithoek is omringd door raampartijen en sluit aan op het overdekte terras.
In de linkervleugel bevinden zich de slaapvertrekken en de badkamers. Alle kamers zijn voorzien van inbouwkasten en bieden een prachtig uitzicht op de tuin. De hoofdslaapkamer heeft een ensuite badkamer, die is uitgerust met een toilet, inloopdouche en dubbele wastafel. Ook is er de mogelijkheid om een buitendouche te plaatsen. De badkamer is omringd door beplanting, waardoor privacy gegarandeerd is, gordijnen overbodig zijn en binnen met buiten verbonden is. De tweede badkamer is voorzien van een ligbad, inloopdouche en wastafel.
Buiten:
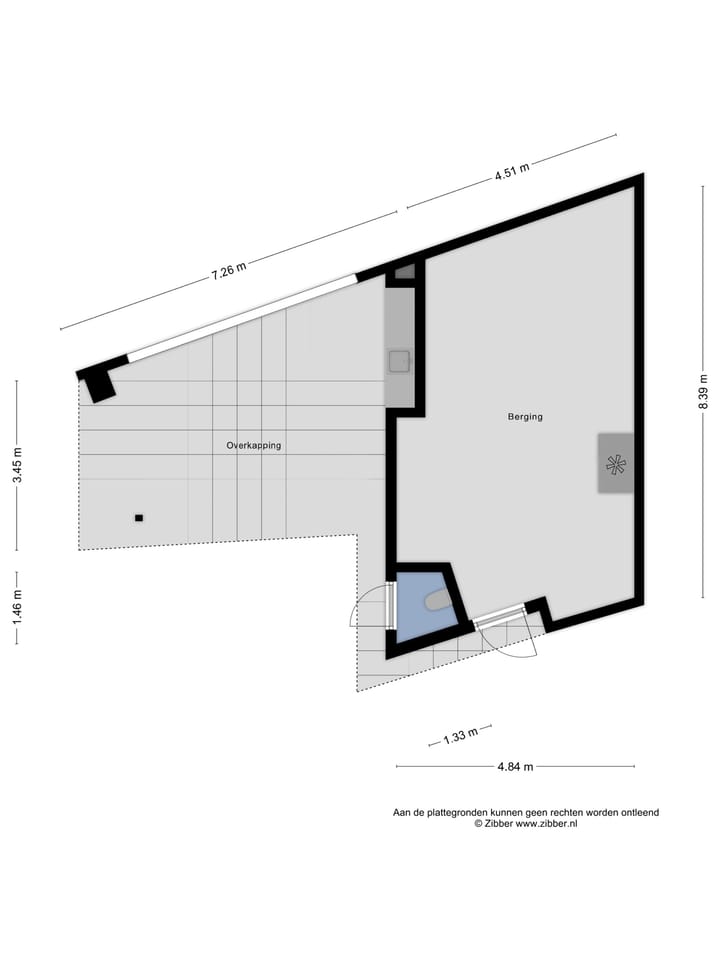
Middels de afsluitbare poort is er toegang tot het parkachtige perceel. De oprit, die met grind is bedekt, biedt voldoende parkeerruimte op eigen terrein en is voorzien van een carport voor twee auto’s. De tuin beschikt over een riant gazon rondom de woning, verdeeld over verschillende hoogtes. De beplanting is goed gepositioneerd en zorgt voor veel afwisseling en privacy. Aan de woning is een overdekt terras gesitueerd, dat over de gehele tuin en de landerij van 30 hectare uitkijkt. Achter op het perceel bevindt zich het zwembad (met elektrisch solardeck). Bij het zwembad is een zonneterras met overkapping, die doorloopt naar een verdekt opgestelde berging. De overkapping is voorzien van een keukenblok met spoelbak. Ook is er een toilet aanwezig.
De berging is geïsoleerd en kan worden omgebouwd tot een kantoor of tuinkamer.
Aarzel niet om een bezichtiging in te plannen bij deze unieke en bijzondere villa.
Kenmerken
Overdracht
- Laatste vraagprijs
- € 1.095.000 kosten koper
- Vraagprijs per m²
- € 7.065
- Status
- Verkocht
Bouw
- Soort woonhuis
- Bungalow, vrijstaande woning
- Soort bouw
- Bestaande bouw
- Bouwjaar
- 2020
- Soort dak
- Plat dak bedekt met bitumineuze dakbedekking
Oppervlakten en inhoud
- Gebruiksoppervlakten
- Wonen
- 155 m²
- Gebouwgebonden buitenruimte
- 83 m²
- Externe bergruimte
- 37 m²
- Perceel
- 2.192 m²
- Inhoud
- 575 m³
Indeling
- Aantal kamers
- 4 kamers (3 slaapkamers)
- Aantal badkamers
- 2 badkamers en 1 apart toilet
- Badkamervoorzieningen
- Dubbele wastafel, 2 inloopdouches, toilet, vloerverwarming, 2 wastafels, ligbad, en wastafelmeubel
- Aantal woonlagen
- 1 woonlaag
- Voorzieningen
- Alarminstallatie, balansventilatie, schuifpui, TV kabel, en zonnepanelen
Energie
- Energielabel
- A
- Isolatie
- Dakisolatie, HR-glas, muurisolatie, vloerisolatie en volledig geïsoleerd
- Verwarming
- Gehele vloerverwarming, warmte terugwininstallatie en warmtepomp
- Warm water
- Elektrische boiler
Kadastrale gegevens
- OISTERWIJK K 1359
- Kadastrale kaart
- Oppervlakte
- 2.192 m²
- Eigendomssituatie
- Volle eigendom
Buitenruimte
- Ligging
- Landelijk gelegen
- Tuin
- Tuin rondom
Bergruimte
- Schuur/berging
- Vrijstaande houten berging
- Voorzieningen
- Elektra en stromend water
- Isolatie
- Dakisolatie, muurisolatie, vloerisolatie en volledig geïsoleerd
Garage
- Soort garage
- Niet aanwezig, wel mogelijk
Parkeergelegenheid
- Soort parkeergelegenheid
- Op eigen terrein
Foto's 39
© 2001-2025 funda






































