Dit huis op Funda: https://www.funda.nl/detail/43979923/

Omschrijving
Royale 2-onder-1-kapwoning met vrij uitzicht aan de rand van Alphen aan den Rijn
• Royale woonkamer met veel lichtinval (ca. 45 m²)
• Wooneetkeuken met diverse inbouwapparatuur
• Zes slaapkamers verdeeld over twee verdiepingen
• Parkeren op eigen erf
• Ideale ligging: Amsterdam, Schiphol en Den Haag op ca. 30 autominuten
Bent u op zoek naar een unieke en ruime woning in een rustige, groene omgeving? Deze royale 2-onder-1-kapwoning aan de rand van Alphen aan den Rijn biedt alles wat u wenst: ruimte, comfort en voor een schitterend uitzicht!
Ligging en omgeving
De woning is gelegen in een rustige, kindvriendelijke woonwijk aan de rand van Alphen aan den Rijn. In de nabije omgeving vindt u winkelcentrum "De Herenhof", diverse scholen, het prachtige Weteringpark met jachthaven, openbaar vervoer en uitvalswegen. Een ideale plek voor gezinnen en liefhebbers van rust en natuur.
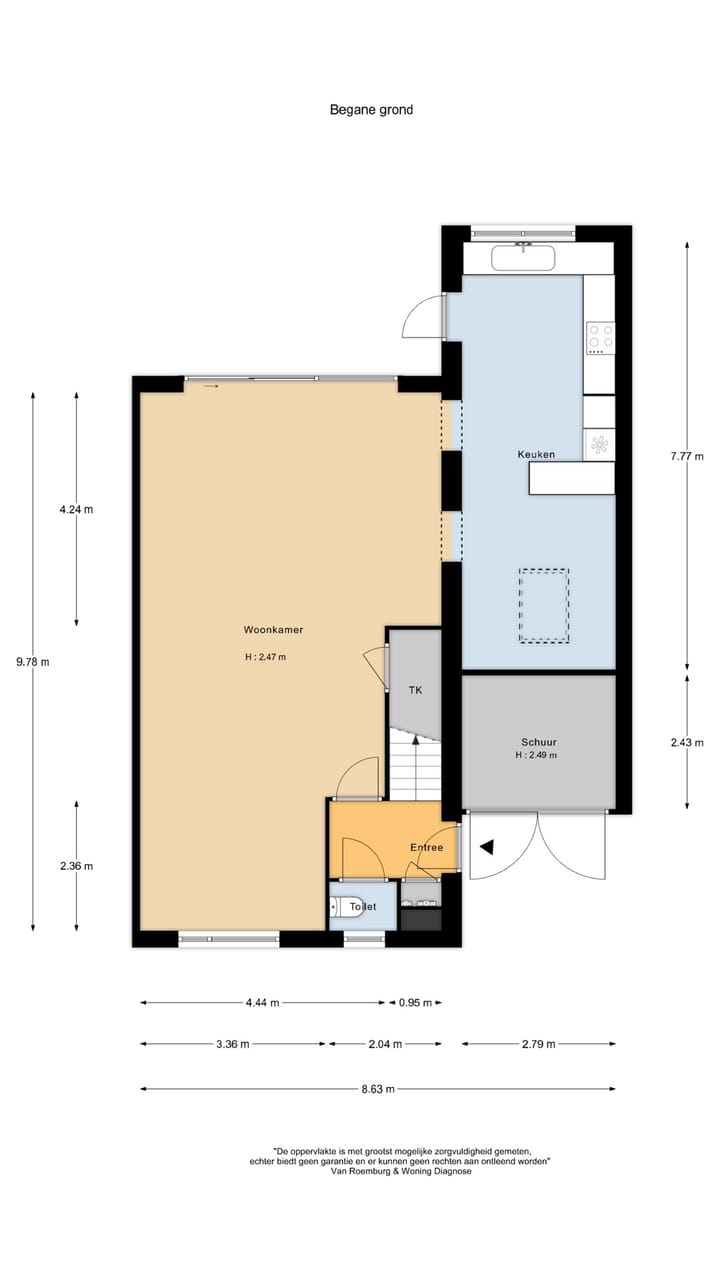
Indeling van de woning
Begane grond: Via de overdekte entree komt u in de hal met toegang tot de toiletruimte, meterkast, trapopgang en woonkamer. De royale woonkamer heeft een grote schuifpui aan de achterzijde en een groot raam aan de voorzijde met prachtig uitzicht op de polder. De aangrenzende wooneetkeuken is voorzien van een 5-pits gaskookplaat, afzuigkap, koelkast, vriezer, oven, vaatwasser en een magnetron. Dankzij de lichtkoepel en het raam in de keuken is er veel natuurlijk lichtinval.
1e verdieping: Op de eerste verdieping vindt u drie ruime slaapkamers en een badkamer met wastafelmeubel, ligbad, douche en tweede toilet.
2e verdieping: Deze verdieping is gemoderniseerd en biedt maar liefst drie volwaardige slaapkamers. Daarnaast is hier de opstelplaats voor de wasmachine, droger en cv-ketel, omvormer en een wastafel met koud en warmwater. Dankzij de hoge nok is er nog een vliering, wat extra bergruimte biedt. Er is zelfs de mogelijkheid om nog een (twee) dakkapellen te plaatsen.
Buitenruimte: De achtertuin is ruim, sfeervol en biedt volop privacy. Een heerlijke plek om in alle rust van de zon te genieten, met een goed boek of een glaasje wijn. Onder de overkapping zit u ook bij regen comfortabel buiten. Daarnaast is er een houten tuinhuisje, ideaal voor het stallen van fietsen of tuinspullen. De achterom maakt het extra praktisch: u bereikt de tuin eenvoudig met de fiets.
Ook de voortuin is met zorg aangelegd en draagt bij aan de prettige uitstraling van de woning. Zowel voor- als achtertuin vormen een mooi geheel, waar duidelijk aandacht aan is besteed.
Bijzonderheden:
- 10 stuks zonnepanelen (2023)
- Elektrisch zonnescherm
- PVC vloer op de begane grond
- Zes ruime slaapkamers
- Een slimme laadpaal 2025 bij entree
- Dakpannen zijn vernieuwd in 2023
- Energielabel A
Bent u op zoek naar een royale en unieke 2-onder-1-kapwoning in een mooie wijk? Neem dan contact met ons op voor een vrijblijvende bezichtiging!
Deze informatie is door ons met de nodige zorgvuldigheid samengesteld. Er wordt door ons geen aansprakelijkheid aanvaard voor enige onvolledigheid, onjuistheid of anderszins, dan wel de gevolgen daarvan. Alle opgegeven maten en oppervlakten zijn indicatief.
Kenmerken
Overdracht
- Laatste vraagprijs
- € 675.000 kosten koper
- Vraagprijs per m²
- € 4.066
- Status
- Verkocht
Bouw
- Soort woonhuis
- Herenhuis, 2-onder-1-kapwoning
- Soort bouw
- Bestaande bouw
- Bouwjaar
- 1986
- Soort dak
- Zadeldak bedekt met pannen
Oppervlakten en inhoud
- Gebruiksoppervlakten
- Wonen
- 166 m²
- Overige inpandige ruimte
- 7 m²
- Externe bergruimte
- 4 m²
- Perceel
- 244 m²
- Inhoud
- 637 m³
Indeling
- Aantal kamers
- 7 kamers (6 slaapkamers)
- Aantal badkamers
- 1 badkamer en 1 apart toilet
- Badkamervoorzieningen
- Douche, ligbad, toilet, en wastafelmeubel
- Aantal woonlagen
- 3 woonlagen
- Voorzieningen
- Buitenzonwering, glasvezelkabel, mechanische ventilatie, schuifpui, TV kabel, en zonnepanelen
Energie
- Energielabel
- A
- Isolatie
- Volledig geïsoleerd
- Verwarming
- Cv-ketel
- Warm water
- Cv-ketel
- Cv-ketel
- Intergas (gas gestookt combiketel uit 2016, eigendom)
Kadastrale gegevens
- OUDSHOORN B 6011
- Kadastrale kaart
- Oppervlakte
- 244 m²
- Eigendomssituatie
- Volle eigendom
Buitenruimte
- Ligging
- In woonwijk en vrij uitzicht
- Tuin
- Achtertuin en voortuin
- Achtertuin
- 111 m² (13,00 meter diep en 8,50 meter breed)
- Ligging tuin
- Gelegen op het zuiden bereikbaar via achterom
Bergruimte
- Schuur/berging
- Aangebouwde stenen berging
- Voorzieningen
- Elektra
- Isolatie
- Dakisolatie
Garage
- Soort garage
- Parkeerplaats
Parkeergelegenheid
- Soort parkeergelegenheid
- Op eigen terrein en openbaar parkeren
Foto's 41
© 2001-2025 funda








































