Dit huis op Funda: https://www.funda.nl/detail/89286532/

Omschrijving
Zoek je een gezellige plek in het centrum van Bunschoten-Spakenburg waar je zowel gelijkvloers kan wonen als lekkere ruimte hebt voor het hele gezin? Dan is deze twee onder een kap woonhuis aan Voor Anker 59 precies wat je zoekt. Met het bouwjaar van 1995, heeft dit huis een tijdloze charme en volop mogelijkheden om uw woning volledig af te stemmen op uw woonwensen.
Instapklaar voor elk levensstadium
Dit pareltje is levensloopbestendig en gelijkvloers wonen is geen probleem; met een slaapkamer en badkamer op de begane grond is alles binnen handbereik. Ook vind je op de eerste verdieping nog extra slaapkamers, ideaal voor het gezinsleven. De natuursteen vloer met vloerverwarming zorgt voor een warme sfeer in de woning.
Praktisch en comfortabel
De nette keuken en badkamer zijn van alle gemakken voorzien. In de bijkeuken vind je een degelijke kast met schuifdeuren waarachter de ruimte is voor plaatsen van een wasmachine, droger en vrieskast, voldoende opbergruimte voor al je spullen. Daarnaast is er op de tweede verdieping een royale bergzolder met stahoogte, bereikbaar via een vlizotrap.
Buiten genieten
De woning beschikt over een besloten achtertuin, waar je in alle privacy kunt genieten van het buitenleven. Met een tuinoppervlakte van 28 m2 is er genoeg ruimte om bij mooi weer heerlijk buiten te vertoeven.
Levendig en groen
Op loopafstand van het oude centrum van Bunschoten-Spakenburg, vind je alle voorzieningen binnen handbereik. De open ligging zorgt voor een gevoel van vrijheid en toch ben je zo in de gezellige drukte van het centrum.
Jouw nieuwe thuis
Dit woonhuis is perfect voor senioren die gelijkvloers willen wonen en voor gezinnen met één kind die op zoek zijn naar comfort, ruimte en praktische luxe. De ouderslaapkamer op de eerste verdieping is zelfs voorzien van airconditioning, zodat je ook in de warme zomermaanden lekker koel kunt slapen. Met een energielabel B is het huis ook nog eens energiezuinig!
Kom snel langs en ontdek of dit jouw nieuwe thuis kan worden. Maak een afspraak voor een bezichtiging en laat je verrassen door de mogelijkheden die dit woonhuis te bieden heeft
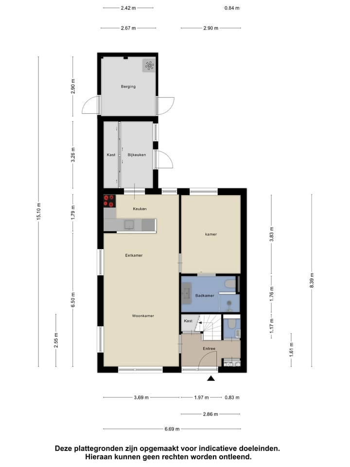
Indeling
Entree, hal met meterkast, vaste trapopgang met trapbergkast, toiletruimte met hangend toilet, toegang tot de lichte woonkamer die extra licht krijgt door de ramen in de zijgevel, open keukenruimte met modern keuken in hoekopstelling, de keuken is v.v. van o.a. een inductie kookplaat met afzuigkap, vaatwasser (klein model), koelkast, composiet werkblad. De wanden en het plafond op de begane grond zijn glad gestuukt, op de gehele benedenverdieping ligt een natuurstenen vloer met vloerverwarming, door de open keukenruimte is er toegang tot de bijkeuken die is uitgerust met een degelijke kastenwand waarachter de wasmachine-en droger zijn geplaatst, veel bergruimte aanwezig. Inloopdeur naar de onderhoudsarme achtertuin, aangebouwde stenen berging met inloopdeur naar de hoofdstraat.
1e verdieping
De 1e verdieping is ook in een keurige staat en beschikt over diverse ruimtes o.a. voorzolder met hr cv ketel opstelling ( Nefit 2012) en mechanische ventilatiebox, 2e (slaap)kamer met bergruimte achter de knieschotten en dakraam, 3e slaapkamer v.v. airconditioning en klein dakkapel, aparte toiletruimte met hangend toilet en fontein.
2e verdieping
Met de vlizotrap is de bergzolder op stahoogte te bereiken, ook weer een keurige ruimte die in goede conditie is en over veel bergruimte beschikt.
Tuin
Onderhoudsarme, besloten achtertuin met bezonning vanuit het zuidoosten. Vanuit de berging is er toegang tot de straat en de achtertuin.
Bijzonderheden
Unieke wooneigenschappen;
Instapklaar gelijkvloers wonen
Natuurstenen vloer met vloerverwarming
Bijkeuken met vaste kastruimte incl. wasmachine-aansluiting
Minimaal 2/3 slaapkamers
Rustige woonomgeving
Op loopafstand van het centrum
Kenmerken
Overdracht
- Laatste vraagprijs
- € 699.000 kosten koper
- Vraagprijs per m²
- € 6.297
- Status
- Verkocht
Bouw
- Soort woonhuis
- Eengezinswoning, 2-onder-1-kapwoning
- Soort bouw
- Bestaande bouw
- Bouwjaar
- 1995
- Specifiek
- Gestoffeerd
- Soort dak
- Zadeldak bedekt met pannen
- Toegankelijkheid
- Toegankelijk voor mensen met een beperking en toegankelijk voor ouderen
Oppervlakten en inhoud
- Gebruiksoppervlakten
- Wonen
- 111 m²
- Overige inpandige ruimte
- 17 m²
- Perceel
- 177 m²
- Inhoud
- 457 m³
Indeling
- Aantal kamers
- 4 kamers (3 slaapkamers)
- Aantal badkamers
- 1 badkamer en 2 aparte toiletten
- Badkamervoorzieningen
- Inloopdouche, toilet, en wastafelmeubel
- Aantal woonlagen
- 3 woonlagen
- Voorzieningen
- Buitenzonwering, dakraam, glasvezelkabel, mechanische ventilatie, natuurlijke ventilatie, en TV kabel
Energie
- Energielabel
- B
- Isolatie
- Volledig geïsoleerd
- Verwarming
- Cv-ketel en gedeeltelijke vloerverwarming
- Warm water
- Cv-ketel
- Cv-ketel
- HR CV ketel Nefit (gas gestookt combiketel uit 2012, eigendom)
Kadastrale gegevens
- BUNSCHOTEN K 3838
- Kadastrale kaart
- Oppervlakte
- 177 m²
- Eigendomssituatie
- Volle eigendom
Buitenruimte
- Ligging
- In centrum, in woonwijk en open ligging
- Tuin
- Achtertuin
- Achtertuin
- 28 m² (7,00 meter diep en 4,00 meter breed)
- Ligging tuin
- Gelegen op het zuidoosten bereikbaar via achterom
Bergruimte
- Schuur/berging
- Aangebouwde stenen berging
- Voorzieningen
- Elektra
Parkeergelegenheid
- Soort parkeergelegenheid
- Openbaar parkeren
Foto's 41
© 2001-2025 funda








































