Dit huis op Funda: https://www.funda.nl/detail/89305762/

Predikherenstraat 1-A3512 TL UtrechtBreedstraat en Plompetorengracht en omgeving
Verkocht
€ 250.000 k.k.
Omschrijving
Charmante studio met glas-in-lood op toplocatie in Utrecht
Wonen in een karakteristiek pand midden in het centrum van Utrecht? Deze sfeervolle studio aan de Predikherenstraat 1-A biedt je de kans om te genieten van monumentaal wonen op een unieke plek. Met prachtige glas-in-loodramen, energielabel B en een slimme indeling is dit een ideale woning voor wie op zoek is naar comfort, stijl én locatie.
De locatie
De Predikherenstraat ligt letterlijk om de hoek van het Neude – een van de levendigste plekken van Utrecht. Vanuit je voordeur wandel je zo naar gezellige cafés, winkels, het Janskerkhof en de Oudegracht. Alles wat je nodig hebt, ligt op loopafstand: supermarkten, horecagelegenheden, parken en het openbaar vervoer. Binnen vijf minuten fietsen sta je op Utrecht Centraal en met de auto ben je via de stadsring snel de stad uit.
De woning
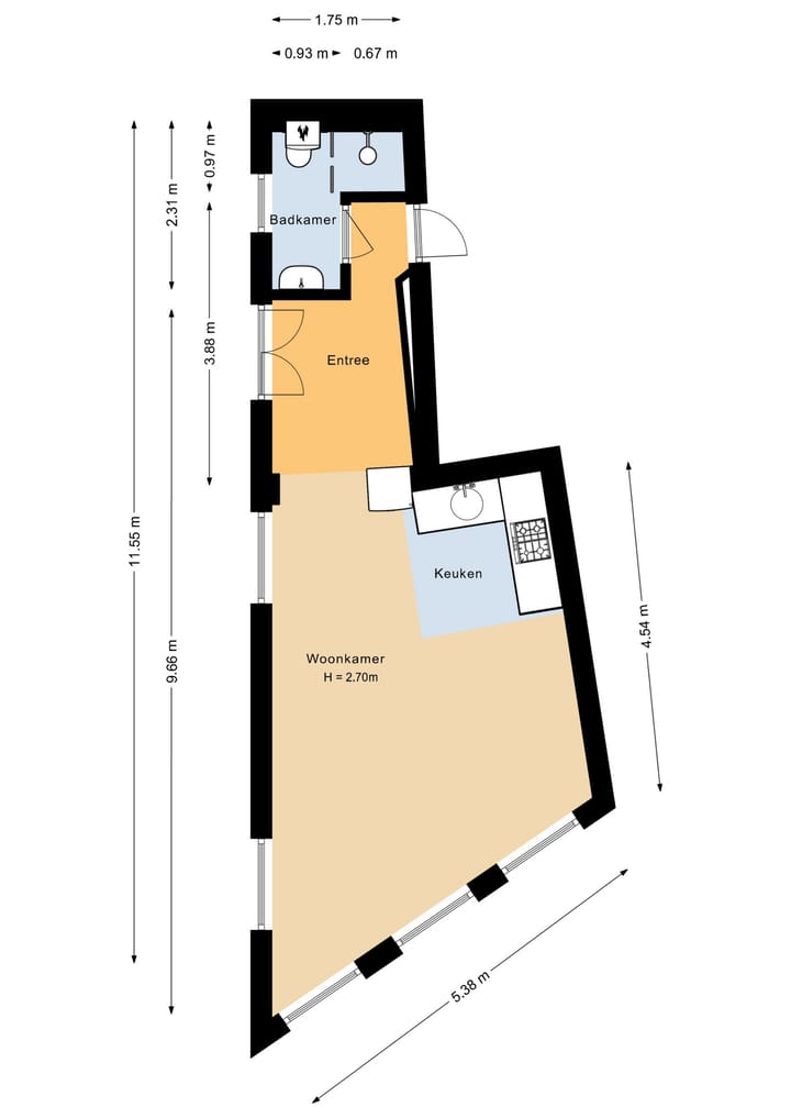
Gelegen op de eerste verdieping van een monumentaal pand, beschikt deze studio over een efficiënte en prettige indeling. De woonkamer met slaapgedeelte is licht en uitnodigend, mede dankzij de mooie glas-in-loodramen die zorgen voor een uniek sfeerbeeld. De open keuken is voorzien van een kookplaat, koelkast en voldoende kastruimte. Aan de voorzijde bevindt zich een nette badkamer met inloopdouche en wastafel.
Benieuwd geworden?
Deze studio combineert historische charme met hedendaags wooncomfort, en dat allemaal in hartje Utrecht. Neem snel contact met ons op voor een bezichtiging.
Bijzonderheden:
* Woonoppervlakte: ca. 33,5 m² | Inhoud: ca. 107 m³
* Energielabel: B
* Monumentaal pand met glas-in-loodramen
* Slapende VvE
* Recent meerjarenonderhoudsplan aanwezig
* “As is, where is”-clausule van toepassing
* Notariskeuze bij verkoper
* Oplevering op korte termijn mogelijk
Deze informatie is met zorg samengesteld. Er kunnen geen rechten aan worden ontleend. Alle afmetingen zijn indicatief.
Kenmerken
Overdracht
- Laatste vraagprijs
- € 250.000 kosten koper
- Vraagprijs per m²
- € 7.353
- Status
- Verkocht
- Bijdrage VvE
- € 0,00 per maand
Bouw
- Soort appartement
- Tussenverdieping (appartement)
- Soort bouw
- Bestaande bouw
- Bouwjaar
- 1900
- Specifiek
- Gestoffeerd, monument en monumentaal pand
Oppervlakten en inhoud
- Gebruiksoppervlakten
- Wonen
- 34 m²
- Inhoud
- 123 m³
Indeling
- Aantal kamers
- 1 kamer (1 slaapkamer)
- Aantal badkamers
- 1 badkamer
- Badkamervoorzieningen
- Inloopdouche en wastafel
- Aantal woonlagen
- 1 woonlaag
- Voorzieningen
- Mechanische ventilatie
- Gelegen op
- 1e woonlaag
Energie
- Energielabel
- C
- Isolatie
- Grotendeels dubbelglas, muurisolatie en vloerisolatie
- Verwarming
- Cv-ketel
- Warm water
- Cv-ketel
- Cv-ketel
- Rhemeha Tzerra (gas gestookt combiketel uit 2017, eigendom)
Kadastrale gegevens
- UTRECHT A A2
- Kadastrale kaart
- Eigendomssituatie
- Zie akte
Buitenruimte
- Ligging
- In centrum
Parkeergelegenheid
- Soort parkeergelegenheid
- Openbaar parkeren en parkeervergunningen
VvE checklist
- Inschrijving KvK
- Ja
- Jaarlijkse vergadering
- Nee
- Periodieke bijdrage
- Nee
- Reservefonds aanwezig
- Nee
- Onderhoudsplan
- Ja
- Opstalverzekering
- Ja
Foto's 20
© 2001-2025 funda



















