
Omschrijving
Een modern rijtjeswoning met een fantastische ligging. Nabij basisschool, supermarkt, snackbar, restaurant, drogisterij. Bushalte op circa 300 meter afstand. NS station op fietsafstand. Veel gratis parkeer gelegenheid voor de deur.
BEGANE GROND:
Ruime woonkamer (circa 30m2) met schuifpui, eettafel, zitbank, opbergmeubels en 40 inch led tv. Opbergkast onder de trap. Open moderne keuken (circa 6,75m2). De keuken is voorzien van alle gemakken. Keuken met ingebouwde vaatwasser, koel vriescombinatie, inductie kookplaat, ruime wasbak, magnetron, oven, veel opbergkasten.
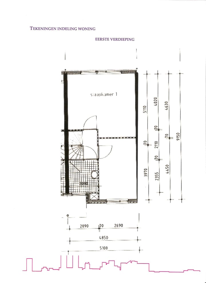
1E ETAGE:
slaapkamer 1 (circa 22,5m2) voorzien van bed (zonder matrassen en beddengoed ivm hygiene), nachtkastjes, en grote kledingkasten.
slaapkamer 2 (circa 12,5m2) voorzien van grote wand kledingkasten.
badkamer (circa 5m2) met open douchecabine voor ruimtelijk gevoel. Toilet. Moderne badkamer meubels en ruime wastafel.
ZOLDER:
De zolder is in totaal circa 24m2 en bestaat uit de volgende kamers
Open kamer 1: ruime open werkplek met groot bureaublad. Diverse opbergkasten.
Open kamer 2: Opbergkasten.
De tuin is ruim met circa 50m2 dankzij keramische tegels onderhoudsvrij. Zie foto.
Een ruime berging voor onder andere fietsen, gereedschap in de tuin.
De verhuurprijs is exclusief electra, water, warmte kosten.
Belangrijk: Het komende jaar willen we verbeteringen aan de woning maken. De huurder dient hiermee akkoord te zijn bij het aangaan van het huurcontract.
BELANGRIJKE CRITERIA OM HET HUIS IN OPTIMALE CONDITIE TE BEHOUDEN:
Niet Roken, Geen huisdieren
---------------------------------------------
Na een uitnodiging voor bezichtiging verloopt het contact rechtstreeks via de woningeigenaar/beheerder. Eventueel gemaakte afspraken zijn tussen kandidaat huurder en woningeigenaar.
Kenmerken
Overdracht
- Laatste huurprijs
- € 2.000 per maand (geen servicekosten)
- Waarborgsom
- € 4.000 eenmalig
- Huurovereenkomst
- Tijdelijke verhuur
- Status
- Verhuurd
Bouw
- Soort woonhuis
- Eengezinswoning, tussenwoning
- Soort bouw
- Bestaande bouw
- Bouwjaar
- 1999
- Specifiek
- Gemeubileerd
Oppervlakten en inhoud
- Gebruiksoppervlakten
- Wonen
- 112 m²
- Inhoud
- 291 m³
Indeling
- Aantal kamers
- 5 kamers (2 slaapkamers)
- Aantal badkamers
- 1 badkamer en 1 apart toilet
- Badkamervoorzieningen
- Inloopdouche, toilet, en wastafelmeubel
- Aantal woonlagen
- 3 woonlagen
Energie
- Energielabel
Buitenruimte
- Ligging
- In woonwijk
- Tuin
- Voortuin
- Voortuin
- 25 m² (5,00 meter diep en 5,00 meter breed)
Bergruimte
- Schuur/berging
- Box
Parkeergelegenheid
- Soort parkeergelegenheid
- Openbaar parkeren
Foto's 17
© 2001-2026 funda
















