
Omschrijving
ENGLISH BELOW
OMSCHRIJVING
Wilt u de bewoner zijn van dit prachtige, recent gerenoveerde appartement met balkon aan de voor – en achterzijde(zuid) in de gewilde wijk de Baarsjes in Amsterdam West?
Grijp deze kans: per medio november beschikbaar!
Dit 4-kamer appartement van ca. 82m2 heeft een ruime woonkamer met open keuken, drie slaapkamers, badkamer, separaat toilet en bevindt zich op de eerste verdieping van een prachtig klassiek Amsterdams pand. De hoogte van de plafonds is nagenoeg 3 meter, dit in combinatie met het vele daglicht maakt het appartement uniek en zeker het bezichtigen waard!
LOCATIE
Het appartement is gelegen nabij de kruising Admiraal de Ruijterweg & Jan Evertsenstraat. In de directe omgeving zijn diverse winkels, restaurants, cafés en supermarkten te vinden. De buurt is gezellig, hip en gewild om te wonen. Tevens nabij Westerpark, Rembrandtpark, de Jordaan, Foodhallen en slechts 5 minuten fietsen naar het centrum van Amsterdam.
Bus- en tramhalte zeer nabij en ook goed bereikbaar met de auto.
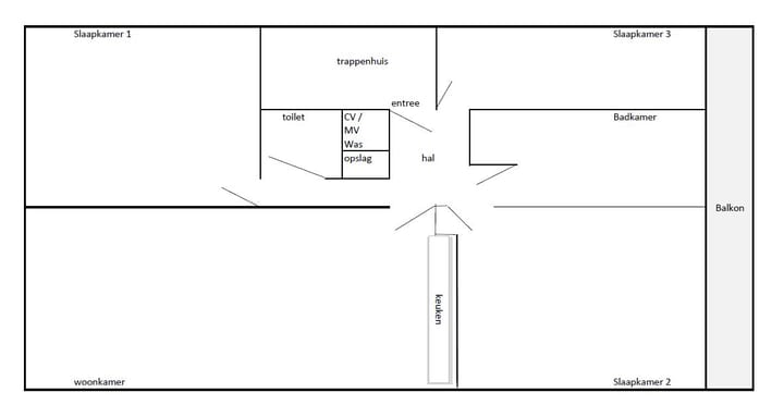
INDELING
Via het brede trappenhuis bereikt u de entree op de eerste verdieping. De hal is ruim en biedt toegang tot alle ruimtes. Aan de achterzijde bevinden zich de master slaapkamer met toegang tot het zonnige balkon (12m2) gelegen op het zuiden, de badkamer (met ligbad) en een tweede (slaap)kamer. De ruime en lichte woonkamer met open keuken (voorzien van alle moderne apparatuur) bevindt zich aan de voorzijde van het appartement, vanuit de woonkamer is toegang tot het tweede balkon aan de straatzijde. De derde ruime slaapkamer bevindt zich ook aan de voorzijde van het appartement..
IN HET KORT
- 4-kamer appartement ca. 82 m2
- Twee balkons
- Authentieke details
- Huurprijs: € 2.950,- per maand excl. water, gas, elektriciteit, TV en internet
- Gestoffeerd
- Beschikbaar per 17 november (wellicht eerder in overleg)
- Gunning op basis akkoord eigenaar
- Beschikbaar voor onbepaalde tijd
- Borg 2 maanden huur
- Geen studenten, geen woningdelers, geen huisdieren
- Roken niet toegestaan
- Inschrijven op dit adres is uiteraard mogelijk
- Bij interesse graag reageren via email of de contact knop
ENGELS
DESCRIPTION
Recently renovated! Spacious and bright apartment with two balcony’s in the popular De Baarsjes district in Amsterdam West. Available as from mid November!
This 4-room apartment of approximately 82m2 has a spacious living room with an open kitchen, 3 bedrooms, 1 bathroom, a separate toilet, and is located on the first floor of a beautiful classic Amsterdam building. The height of the ceilings is almost 3.0 meters, together with the great daylight makes this apartment unique and definitely worth viewing.
LOCATION
The apartment is located near the corner of Admiraal de Ruijterweg & Jan Evertsenstraat. Various shops, restaurants, cafes and supermarkets can be found in the immediate area /down the street. The neighborhood is exciting, hip and popular to live in. In the area you will also find Westerpark, Rembrandtpark, Jordaan area, Foodhallen and the center of Amsterdam is only a 5 minute bike ride away. There are several public transport options down the street, and the apartment is also easily reached by car.
LAYOUT
Via the broad staircase you reach the entrance on the first floor. The hall is spacious and provides access to all areas. At the back of the apartement is situated; the master bedroom with access to the balcony (south 12m2), the bathroom (with bath and separate shower) and a second (bed)room. At the front you find a spacious and bright living room with open kitchen (equipped with all modern appliances). Also the third (bed)room is situated at the front of the apartment.
SUMMARY
- Spacious 4-room apartment approx. 82 m2
- Authentic details
- Rental price: € 2.950,- per month excl. water, gas, electricity, TV and internet
- Semi furnished (see pictures)
- Available immediately
- Recently renovated
- Approval based on owner's agreement
- Available as per 17-11-2025, maybe earlier
- Deposit 2 months rent
- No students, no sharing, no pets.
- No smoking
- Registration at this address is possible
- In case of interest, please react via email or the contact button
Kenmerken
Overdracht
- Laatste huurprijs
- € 2.950 per maand (geen servicekosten)
- Waarborgsom
- Geen
- Huurovereenkomst
- Onbepaalde tijd
- Status
- Verhuurd
Bouw
- Soort appartement
- Bovenwoning (appartement)
- Soort bouw
- Bestaande bouw
- Bouwjaar
- 1910
Oppervlakten en inhoud
- Gebruiksoppervlakten
- Wonen
- 82 m²
- Overige inpandige ruimte
- 1 m²
- Gebouwgebonden buitenruimte
- 14 m²
- Inhoud
- 250 m³
Indeling
- Aantal kamers
- 4 kamers (3 slaapkamers)
- Aantal woonlagen
- 1 woonlaag
- Voorzieningen
- Mechanische ventilatie, natuurlijke ventilatie, en TV kabel
- Gelegen op
- 2e woonlaag
Energie
- Energielabel
- Isolatie
- Dakisolatie, grotendeels dubbelglas, muurisolatie en vloerisolatie
- Verwarming
- Cv-ketel
- Warm water
- Cv-ketel
- Cv-ketel
- Gas gestookt combiketel uit 2022, eigendom
Buitenruimte
- Ligging
- Vrij uitzicht
- Balkon/dakterras
- Balkon aanwezig
Parkeergelegenheid
- Soort parkeergelegenheid
- Betaald parkeren en parkeervergunningen
VvE checklist
- Inschrijving KvK
- Nee
- Jaarlijkse vergadering
- Nee
- Periodieke bijdrage
- Nee
- Reservefonds aanwezig
- Nee
- Onderhoudsplan
- Nee
- Opstalverzekering
- Nee
Foto's 35
© 2001-2026 funda


































