
Omschrijving
Per 1 januari 2026 beschikbaar! Ruim driekamerappartement van ca. 84 m2 in nieuwbouwcomplex AMST!
* De afbeeldingen zijn van een vergelijkbaar appartement in het complex
Het appartement is gesitueerd op de 6e etage en is onderdeel van het nieuwbouwcomplex AMST, naast het Amstel Station! AMST is van alle gemakken voorzien, zo beschikt het complex over een gemeenschappelijke fietsenstalling en een gezellig dakterras waar u in de zomer van kunt genieten. In het complex bevindt zich tevens een Jumbo voor uw dagelijkse boodschappen!
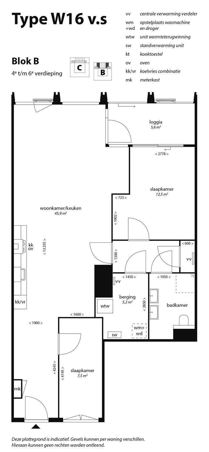
Stap binnen in je eigen Amsterdamse appartement van circa 84 m² en kom binnen in de welkomsthal. Vanuit de hal is er een doorloop naar de open keuken. De fraai afgewerkte Bruynzeel keuken is van alle inbouwapparatuur voorzien. Hier kan je straks uitgebreid koken. In de keuken vind je een inbouw Bosch koelkast, vaatwasser, oven, inductiekookplaat en afzuigkap. In de ruime woonkamer kun je met gemak een luxe zitgedeelte maken en een fijne eethoek. Heerlijk buiten zijn doe je op je eigen loggia. Hier zit je elk seizoen comfortabel door de overkapping.
Er zijn twee slaapkamers in het appartement. Een naast de entree en de ander grenst aan de loggia. Vanuit de tweede hal is toegang tot de badkamer, een ideale berging en een opbergkast. Elke woning is voorzien van een eiken look PVC vloer en de wanden zijn afgewerkt.
Locatie:
De ligging is erg centraal ten opzichte van winkels, supermarkten en restaurants. Binnen 10 fietsminuten bevind je je in het centrum van Amsterdam! Tevens is AMST gelegen op steenworpafstand van het Amstel Station en binnen enkele minuten rijd je de snelwegen A10 en A2 op.
Bijzonderheden:
- Per 1 januari 2026 beschikbaar
- Inkomenseis: eenverdiener 3x bruto maandinkomen (ex. vakantiegeld, bonus etc.);
- Inkomenseis: tweeverdieners 4x bruto maandinkomen (ex. vakantiegeld, bonus etc.);
- Waarborgsom 2 maanden huur
- Servicekosten € 80,00 per maand
- Geen garantstelling mogelijk
- Geen studenten
- Huurovereenkomst voor onbepaalde tijd met een minimum duur van 12 kalender maanden
ENGLISH
Available as of January 1st, 2026! Spacious one bedroom apartment of aprox. 84 m2 in the newly built building AMST!
* The pictures are from a similar apartment in the building
The apartment is located on the 6th floor and is part of the newly built AMST complex, next to the Amstel Station! AMST is fully equipped, the complex has a communal bicycle storgage and a cozy roof terrace which you can enjoy in the summer. The complex also has a Jumbo supermarket for all your groceries!
Step into your own Amsterdam apartment of approximately 84 m² and enter in the hallway. There is a walk-through to the kitchen. The beautifully finished Bruynzeel kitchen is equipped with all necassary built-in appliances. In the kitchen you will find a built-in Bosch refrigerator, dishwasher, oven, induction hob and extractor hood. In the spacious living room you can easily create a big seating area and a nice dining area. You can enjoy being outdoors on your own loggia. You can sit comfortably here every season thanks to the roof.
There are two bedrooms in the apartment, one next to the entrance and the other one is attached to the loggia. From the second hall there is access to the bathroom, a laundry room and a storage closet. Each home has an oak-look PVC floor and the walls are finished.
Location:
The location is very central to shops, supermarkets and restaurants. You will be in the center of Amsterdam within 10 minutes by bike! AMST is also located next to the Amstel Station and within a few minutes you can drive onto the A10 and A2 highways.
Particularities:
- Available as of January 1st, 2026
- Income requirement: single earner 3x gross monthly income (excl. holiday pay, bonus, etc.);
- Income requirement: dual-income couples 4x gross monthly income (excl. holiday pay, bonus, etc.);
- Deposit 2 months rent
- Service costs €80.00 per month
- No guarantee possible
- No students
- Rental agreement for an indefinite period with a minimum duration of 12 calendar months
Kenmerken
Overdracht
- Aangeboden sinds
- Aanvaarding
- Beschikbaar per 01-01-2026
- Huurprijs
- € 2.360 per maand (exclusief servicekosten à € 80,00 /mnd)
- Waarborgsom
- € 4.720 eenmalig
- Huurovereenkomst
- Onbepaalde tijd
- Status
- Beschikbaar
Bouw
- Soort appartement
- Galerijflat (appartement)
- Soort bouw
- Bestaande bouw
- Bouwjaar
- 2023
- Specifiek
- Gedeeltelijk gestoffeerd
Oppervlakten en inhoud
- Gebruiksoppervlakten
- Wonen
- 84 m²
- Gebouwgebonden buitenruimte
- 6 m²
- Inhoud
- 227 m³
Indeling
- Aantal kamers
- 3 kamers (2 slaapkamers)
- Aantal badkamers
- 1 badkamer
- Badkamervoorzieningen
- Douche, dubbele wastafel, en toilet
- Aantal woonlagen
- 1 woonlaag
- Gelegen op
- 6e woonlaag
Energie
- Energielabel
- A+++
Buitenruimte
- Ligging
- In centrum en vrij uitzicht
Garage
- Soort garage
- Parkeerkelder
VvE checklist
- Inschrijving KvK
- Nee
- Jaarlijkse vergadering
- Nee
- Periodieke bijdrage
- Nee
- Reservefonds aanwezig
- Nee
- Onderhoudsplan
- Nee
- Opstalverzekering
- Nee
Foto's 13
© 2001-2025 funda












