
Omschrijving
Te huur aangeboden in Amsterdam Centrum:
Zeer ruime benedenwoning van totaal ca. 270 m2 in de Kerkstraat, tussen de Leidsestraat en Leidsegracht, voorzien van een grote woonverdieping op de begane grond, slaapverdieping en dakterras op de eerste verdieping en een zeer riante multifunctionele kelderverdieping (ca. 100 m2). De woning zal leeg en gestoffeerd worden opgeleverd en is per direct beschikbaar.
OMGEVING:
Dit bijzonder fraaie monument is gelegen aan de Kerkstraat tussen de Prinsengracht en Keizersgracht. In de directe omgeving vindt u natuurlijk de geliefde 9-Straatjes met tal van leuke en bekende winkels en gezellige horecagelegenheden. Ook de Jordaan, het Leidseplein/Leidsestraat en het Vondelpark bevinden zich letterlijk op loopafstand.
Uitstekende verbindingen met openbaar vervoer middels diverse tram- en buslijnen. Het Centraal Station bevindt zich op slechts vijf fietsminuten afstand. Prima parkeermogelijkheden, zowel op straat middels vergunningsstelsel of in een nabijgelegen parkeergarage zoals Q-Park Marnixstraat.
INDELING:
Woonverdieping - bij binnenkomst in de woning bereikt u de entreehal welke direct toegang geeft tot de woonkamer. De voorzijde van de woonverdieping leent zich ideaal als woonkeuken met riante opstelling voor een eet- en eventueel werkgedeelte. De keuken bevindt zich aangrenzend in het midden van de woning. Aan de achterzijde, lager gelegen dan de voorzijde, treft u de ideale ruimte voor een royale zithoek.
Slaapverdieping - de eerste verdieping is ingedeeld als slaapverdieping met een twee royale slaapkamers. De badkamer bevindt zich aan de achterzijde en zowel via deze badkamer als de achterste slaapkamer is het royale zonnige dakterras (ca. 41 m2) te bereiken. Het dakterras is gelegen op het zuidwesten en derhalve vrijwel de gehele dag voorzien van zon!
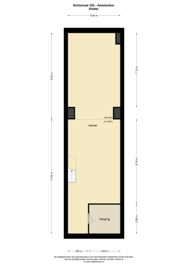
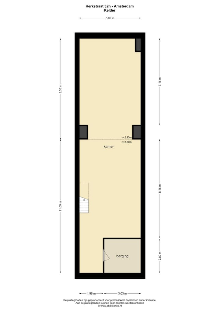
Kelderverdieping - de kelderverdieping van de woning in bereikbaar via en inpandige trap via de woonkamer en zeer ruim van formaat (bij 100 m2). De ideale ruimte voor wellicht een tweede zithoek, opslag of andere doeleinden.
DETAILS:
- Riant 3-laags appartement
- gelegen in een fraai Gemeentelijk Monument;
- woonoppervlakte: ca. 270 m2 (waarvan ca. 100 m2 in de kelderverdieping);
- twee royale slaapkamers;
- zonnig royaal dakterras op het zuidwesten;
- nieuwe kozijnen met geïsoleerde beglazing aan de voorzijde;
- royale woonverdieping op de begane grond;
- woning wordt uitsluitend gestoffeerd opgeleverd;
- beschikbaar voor onbepaalde tijd;
- waarborgsom gelijk aan twee maanden huur;
- geen delers/studenten;
Voor meer informatie of het maken van een bezichtigingsafspraak kunt u contact opnemen met ons kantoor. Onze medewerkers zijn u graag van dienst.
Deze woning wordt aangeboden conform art 7:17 lid 6 Burgerlijk Wetboek. De opgegeven kenmerken zijn slechts als aanduiding bedoeld.
Kenmerken
Overdracht
- Laatste huurprijs
- € 3.250 per maand (geen servicekosten)
- Waarborgsom
- € 6.500 eenmalig
- Huurovereenkomst
- Onbepaalde tijd
- Status
- Verhuurd
Bouw
- Soort appartement
- Benedenwoning (appartement)
- Soort bouw
- Bestaande bouw
- Bouwjaar
- 1892
- Specifiek
- Beschermd stads- of dorpsgezicht, monument en monumentaal pand
- Soort dak
- Samengesteld dak bedekt met bitumineuze dakbedekking en pannen
Oppervlakten en inhoud
- Gebruiksoppervlakten
- Wonen
- 270 m²
- Gebouwgebonden buitenruimte
- 41 m²
- Inhoud
- 975 m³
Indeling
- Aantal kamers
- 3 kamers (2 slaapkamers)
- Aantal badkamers
- 1 badkamer en 2 aparte toiletten
- Badkamervoorzieningen
- Douche, ligbad, en wastafel
- Aantal woonlagen
- 2 woonlagen en een kelder
- Voorzieningen
- Natuurlijke ventilatie
- Gelegen op
- Begane grond
Energie
- Energielabel
- Niet verplicht
- Isolatie
- HR-glas
- Verwarming
- Cv-ketel
- Warm water
- Cv-ketel
- Cv-ketel
- Gas gestookt, eigendom
Buitenruimte
- Ligging
- In centrum
- Balkon/dakterras
- Dakterras aanwezig
Bergruimte
- Schuur/berging
- Inpandig
- Voorzieningen
- Elektra
Parkeergelegenheid
- Soort parkeergelegenheid
- Parkeervergunningen
Bedrijfsruimte
- Praktijkruimte
- Niet aanwezig, wel mogelijk (inpandig)
Foto's 43
© 2001-2026 funda










































