Dit huis op Funda: https://www.funda.nl/detail/huur/amsterdam/huis-stadionkade-115/43907173/

Omschrijving
*See English translation below*
Heerlijk wonen in een licht en ruim opgezet herenhuis op een top locatie in Amsterdam Zuid, in een rustige straat aan het water.
Dit gestoffeerde (familie)huis met een prettige indeling is verdeeld over drie verdiepingen, heeft zes slaapkamers en drie badkamers, een grote kelder met veel opslagruimte, en een ruime tuin met tuinhuisje. Het beschikt over tal van originele details, is sfeervol en tijdloos.
Een rondleiding
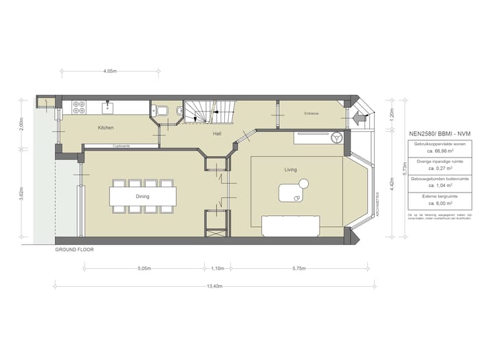
De begane grond
Entree in nette hal met toilet. De woonkamer met uitzicht op het water is een kamer waar ruimte en licht samenkomen in een sfeervolle ambiance. De royale raampartijen met glas-in-looddetails zorgen voor een mooie lichtinval en een karakteristieke uitstraling. De erker creëert een gezellige hoek die perfect is voor een zithoek of leesplek. De eet- en woonkamer worden gescheiden door middel van een authentieke en-suite. Middels de eetkamer is de riante tuin te bereiken, een fijne plek om van de buitenlucht te genieten en genoeg ruimte voor het hele gezin. De dichte keuken is voorzien van inbouwapparatuur zoals een vaatwasser, gasfornuis, oven en koelkast.
De eerste verdieping
Op deze slaapverdieping zijn drie slaapkamers gelegen, een kleinere aan de voorzijde van het huis welke ook zeer geschikt is als werkkamer. De twee grote slaapkamers hebben beiden toegang tot de badkamer die in het midden ligt, de badkamer is voorzien van een ligbad met douche, wastafel en toilet. De masterbedroom aan de achterzijde van het huis is voorzien van een grote walk-in closet en heeft toegang tot het balkon.
De tweede verdieping
Op deze tweede slaapverdieping zijn ook drie slaapkamers, de grote slaapkamer aan de voorzijde van het pand is voorzien van inbouwkasten, in het midden van de verdieping zit de badkamer met douche, wastafel en toilet. Aan de achterzijde bevinden zich twee kleinere slaapkamers.
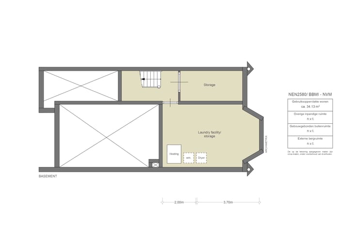
Het souterrain
Deze verdieping heeft veel opbergruimte en wordt tevens gebruikt als wasruimte, wasmachine en droger zijn inbegrepen.
De omgeving en bereikbaarheid
Zeer goed gelegen in Zuid dichtbij de Beethovenstraat, waar en divers aanbod van winkels, restaurants, terrassen, traiteurs en koffietentjes te vinden is. Alle voorzieningen zoals cultuur, scholen en sportfaciliteiten zijn in de buurt. De buurt wordt gekenmerkt door zijn groene karakter en brede straten. Voor meer ontspanning kan er in het Beatrixpark gerecreëerd worden. De verschillende musea zoals het Rijks- Stedelijk en van Gogh museum zijn binnen enkele minuten fietsen te bereiken.
De ring A10 is snel te bereiken, openbaar vervoer met verschillende bus- en tramlijnen zijn allemaal op loopafstand gelegen en station Amsterdam Zuid bevindt zich op enkele minuten fietsafstand. Vanaf dit treinstation is Schiphol binnen zeven minuten bereikbaar.
De parkeergelegenheid
Er is een mogelijkheid om een parkeervergunning aan te vragen.
De bijzonderheden
- Huurprijs: € 5.500,- excl. per maand;
- Borg: 2 maanden huur;
- Huurtermijn: Model A, minimaal 12 maanden;
- Beschikbaar: per direct;
- Gestoffeerd;
- Woningdelen is niet toegestaan op basis van de regels van de gemeente Amsterdam.
Meer ontdekken? Download het BRSM-magazine of bezoek de Broersma website.
Deze informatie is door ons met de nodige zorgvuldigheid samengesteld. Onzerzijds wordt echter geen enkele aansprakelijkheid aanvaard voor enige onvolledigheid, onjuistheid of anderszins, dan wel de gevolgen daarvan.
-------------------------
Wonderful living in a light and spacious mansion in a top location in Amsterdam South, in a quiet street on the water.
This semi-furnished (family) house with a pleasant layout is spread over three floors, has six bedrooms and three bathrooms, a large basement with plenty of storage space, and a spacious garden with garden shed. It has numerous original details, is attractive and timeless.
A tour
The ground floor
Entrance into neat hall with toilet. The living room with a view of the water is a room where space and light come together in an attractive ambiance. The generous windows with stained glass details provide beautiful light and a characteristic appearance. The bay window creates a cozy corner that is perfect for a sitting area or reading spot. The dining and living room are separated by an authentic en-suite. The spacious garden can be reached through the dining room, a nice place to enjoy the outdoors and enough space for the whole family. The closed kitchen is equipped with built-in appliances such as a dishwasher, gas stove, oven and refrigerator.
The first floor
There are three bedrooms on this bedroom floor, a smaller one at the front of the house which is also very suitable as an office. The two large bedrooms both have access to the bathroom in the middle, the bathroom has a bath with shower, sink and toilet. The master bedroom at the rear of the house has a large walk-in closet and access to the balcony.
The second floor
There are also three bedrooms on this second floor, the large bedroom at the front of the building has fitted wardrobes, and the bathroom with shower, sink and toilet is in the middle of the floor. At the rear there are two smaller bedrooms.
The basement
This floor has plenty of storage space and is also used as a laundry room, washing machine and dryer are included.
The environment and accessibility
Very well located in South close to Beethovenstraat, where you can find a diverse range of shops, restaurants, terraces, caterers and coffee shops. All amenities such as culture, schools and sports facilities are nearby. The neighborhood is characterized by its green character and wide streets. For more relaxation, you can recreate in the Beatrix Park. The various museums such as the Rijks-Stedelijk and Van Gogh museums can be reached within a few minutes by bike.
The A10 ring road is quickly accessible, public transport with various bus and tram lines are all within walking distance and Amsterdam Zuid station is a few minutes' bike ride away. Schiphol can be reached within seven minutes from this train station.
The parking
It is possible to apply for a parking permit.
The specifics
- Rental price: € 5,500 excl. per month;
- Deposit: 2 months rent;
- Rental period: Model A, minimum 12 months;
- Available: immediately;
- Upholstered;
- Home sharing is not permitted based on the rules of the municipality of Amsterdam.
Want to discover more? Download the BRSM magazine or visit the Broersma website.
This information has been compiled by us with due care. However, no liability is accepted on our part for any incompleteness, inaccuracy or otherwise, or the consequences thereof.
Kenmerken
Overdracht
- Laatste huurprijs
- € 5.500 per maand (geen servicekosten)
- Waarborgsom
- € 10.850 eenmalig
- Huurovereenkomst
- Onbepaalde tijd
- Status
- Verhuurd
Bouw
- Soort woonhuis
- Herenhuis, tussenwoning
- Soort bouw
- Bestaande bouw
- Bouwjaar
- 1935
- Specifiek
- Gestoffeerd
Oppervlakten en inhoud
- Gebruiksoppervlakten
- Wonen
- 215 m²
- Gebouwgebonden buitenruimte
- 54 m²
- Inhoud
- 602 m³
Indeling
- Aantal kamers
- 8 kamers (6 slaapkamers)
- Aantal badkamers
- 2 badkamers en 1 apart toilet
- Badkamervoorzieningen
- Dubbele wastafel, ligbad, 2 toiletten, douche, en wastafel
- Aantal woonlagen
- 3 woonlagen en een kelder
- Voorzieningen
- Rolluiken
Energie
- Energielabel
- Isolatie
- Dubbel glas
- Verwarming
- Cv-ketel
- Warm water
- Geiser
- Cv-ketel
- Gas gestookt, eigendom
Buitenruimte
- Ligging
- Aan rustige weg, aan water en vrij uitzicht
- Balkon/dakterras
- Balkon aanwezig
Bergruimte
- Schuur/berging
- Vrijstaande stenen berging
- Voorzieningen
- Elektra, verwarming en stromend water
- Isolatie
- Dubbel glas en voorzetramen
Parkeergelegenheid
- Soort parkeergelegenheid
- Openbaar parkeren
Foto's 50
© 2001-2026 funda

















































