
Omschrijving
Door overweldigende belangstelling is het helaas niet meer mogelijk om op het appartement te reageren.
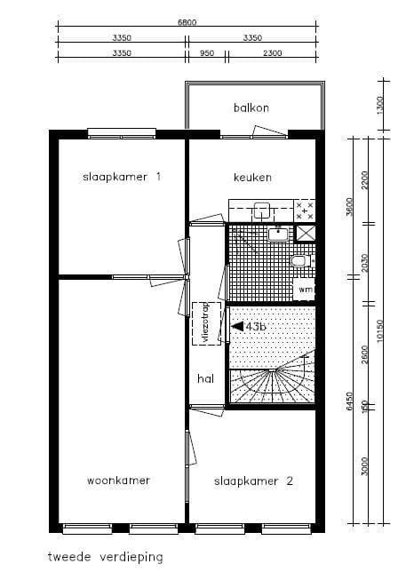
3-kamerappartement gelegen aan een singel in het centrum van Breda. Het appartement is gelegen op de tweede verdieping en heeft twee slaapkamers, een eigen balkon en een ruime woonkamer. Door de ligging in het centrum heeft u alle belangrijke voorzieningen direct voor de deur. De bruisende Bredase binnenstad met een breed winkelaanbod, gezellige terrassen, uitstekende restaurants en sfeervolle cafés is zeer nabij. Op nog geen 10 minuten lopen vindt u daarnaast centraal station Breda. Alles is binnen handbereik vanuit dit appartement.
Woonoppervlakte: ca. 69 m²
Balkon: ca. 4 m²
Huurprijs: € 1369,23 per maand
Waarborgsom & huurperiode:
Het appartement is beschikbaar per medio juli. In de huurovereenkomst wordt een waarborgsom opgenomen ter grootte van: € 2.738,46 (tweemaal de maandhuur). De huurder wordt zelf geacht op eigen naam contracten af te sluiten voor nutsvoorzieningen. Eigenaar heeft het recht van gunning.
Entree:
Bij de gezamenlijke entree vindt u het bellenplateau en de brievenbussen. De entree geeft toegang tot het trappenhuis. De gang van het appartement geeft toegang tot alle ruimtes van het appartement.
Woonkamer:
De woonkamer is gelegen aan de voorzijde van het appartement en biedt een prachtig uitzicht over de singel. De raampartijen zorgen voor veel prettige lichtinval. De woonkamer is afgewerkt met een laminaatvloer.
Keuken & balkon:
De keuken heeft een eenvoudig keukenblok in rechte opstelling met een RVS spoelbak en een gasaansluiting om te koken. Ook vindt u in de keuken de CV-ketel. Vanuit de keuken heeft u toegang tot het eigen balkon van ca. 4 m².
Slaapkamers & badkamer:
Het appartement beschikt over twee slaapkamers. Beide zijn afgewerkt met een laminaatvloer. De badkamer is betegeld en voorzien van een douche, wastafel, staand toilet en de aansluitingen voor de wasapparatuur.
Kenmerken
Overdracht
- Laatste huurprijs
- € 1.369 per maand (geen servicekosten)
- Waarborgsom
- € 2.738 eenmalig
- Huurovereenkomst
- Onbepaalde tijd
- Status
- Verhuurd
Bouw
- Soort appartement
- Portiekwoning (appartement)
- Soort bouw
- Bestaande bouw
- Bouwjaar
- 1910
Oppervlakten en inhoud
- Gebruiksoppervlakten
- Wonen
- 69 m²
- Gebouwgebonden buitenruimte
- 4 m²
- Inhoud
- 215 m³
Indeling
- Aantal kamers
- 3 kamers (2 slaapkamers)
- Aantal badkamers
- 1 badkamer
- Badkamervoorzieningen
- Douche, toilet, en wastafel
- Aantal woonlagen
- 1 woonlaag
- Gelegen op
- 3e woonlaag
Energie
- Energielabel
- Niet beschikbaar
- Verwarming
- Cv-ketel
- Warm water
- Cv-ketel
- Cv-ketel
- Gas gestookt, eigendom
Kadastrale gegevens
- BREDA B 4736
- Kadastrale kaart
- Eigendomssituatie
- Volle eigendom
Buitenruimte
- Ligging
- In centrum en vrij uitzicht
- Balkon/dakterras
- Balkon aanwezig
Parkeergelegenheid
- Soort parkeergelegenheid
- Betaald parkeren en parkeervergunningen
Foto's 14
© 2001-2026 funda













