Dit huis op Funda: https://www.funda.nl/detail/huur/heerhugowaard/huis-hondsdraf-81/43186512/

Hondsdraf 811705 RP HeerhugowaardHuygenhoek Zuid
€ 2.500 /mnd
Omschrijving
Op zoek naar een luxe, energiezuinige en gasloze woning in een kindvriendelijke buurt?
Deze moderne gezinswoning (bouwjaar 2020) in het populaire Land van Luna is direct beschikbaar voor minimaal 1 jaar, verdere duur in overleg.
Globale indeling
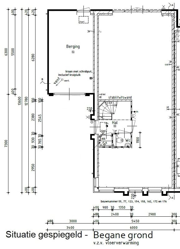
Begane grond:
Zij-entree, hal met toilet en trapkast als opbergruimte. Royale woonkamer, uitgebouwd met 2,4 meter en voorzien van openslaande deuren naar de achtertuin. Luxe open keuken met kookeiland, zwarte ‘eiken-look’ fronten en een betonlook werkblad. Hoogwaardige inbouwapparatuur, waaronder een Bora-inductiekookplaat met geïntegreerde afzuiging, Quooker, combi-oven, stoomoven, koelkast, vriezer en een vaatwasser met Comfortlift. De begane grond en eerste verdieping zijn volledig voorzien van een warmte- en koelsysteem, waardoor er het hele jaar door een aangename temperatuur heerst.
Eerste verdieping:
Drie ruime slaapkamers, waarvan de master bedroom met walk-in closet. Moderne badkamer met inloopdouche en wastafelmeubel met dubbele wasbak. De gehele verdieping is afgewerkt met brede laminaatvloeren.
Tweede verdieping:
Bereikbaar via een vaste trap en voorzien van laminaatvloer en dakraam, ideaal als vierde slaapkamer. Op deze verdieping bevindt zich tevens de technische ruimte met witgoedopstelling, warmtepomp en WTW-installatie.
Buitenruimte:
Oprit met parkeergelegenheid voor twee auto’s, aangebouwde garage met kanteldeur en achterdeur naar de tuin. Zonnige achtertuin op het zuidwesten met terras, gazon, sierbeplanting en vlonder aan het water. Vrij uitzicht over het Park van Luna met wandel- en mountainbikeroutes.
Bijzonderheden:
- Energielabel A, moderne, energiezuinige en volledig gasloze woning met warmtepomp (verwarming en koeling), vloerverwarming, WTW-installatie en 16 zonnepanelen
- Hoogwaardig wooncomfort en moderne afwerking
- Elektrisch zonnescherm aan de achterzijde
- Slimme buitenverlichting, jaloezieën, plafondlamp in de keuken en zwevend tv-meubel blijven achter
- Oprit met plek voor 2 auto’s en aangebouwde garage
- Gelegen in een kindvriendelijke buurt, nabij scholen, sportvoorzieningen en recreatie
- Vrij uitzicht over het Park van Luna
- Centrum van Alkmaar en Heerhugowaard op fietsafstand
- Station Alkmaar Noord op slechts 10 minuten fietsen; uitvalswegen snel bereikbaar
Huurvoorwaarden:
- Beschikbaar: minimaal 1 jaar, verdere duur in overleg
- Huurprijs: exclusief water, elektra en gemeentelijke belastingen (gebruikerslasten voor rekening van de huurder)
- Waarborgsom: 2 maanden huur
- Huisdieren niet toegestaan
- Verhuurder behoudt zich het recht van gunning
Wil jij wonen in een moderne, duurzame woning met een prachtige ligging aan het water? Neem dan snel contact met ons op voor meer informatie!
Kenmerken
Overdracht
- Aangeboden sinds
- Aanvaarding
- Per direct beschikbaar
- Huurprijs
- € 2.500 per maand (geen servicekosten)
- Waarborgsom
- € 5.000 eenmalig
- Huurovereenkomst
- Tijdelijke verhuur
- Status
- Beschikbaar
Bouw
- Soort woonhuis
- Eengezinswoning, 2-onder-1-kapwoning
- Soort bouw
- Bestaande bouw
- Bouwjaar
- 2020
- Soort dak
- Schilddak bedekt met pannen
Oppervlakten en inhoud
- Gebruiksoppervlakten
- Wonen
- 154 m²
- Overige inpandige ruimte
- 21 m²
- Perceel
- 357 m²
- Inhoud
- 660 m³
Indeling
- Aantal kamers
- 5 kamers (4 slaapkamers)
- Aantal badkamers
- 1 badkamer en 1 apart toilet
- Badkamervoorzieningen
- Douche, toilet, en wastafel
- Aantal woonlagen
- 3 woonlagen
- Voorzieningen
- Zonnepanelen
Energie
- Energielabel
- A
- Isolatie
- Volledig geïsoleerd
- Verwarming
- Gedeeltelijke vloerverwarming en warmtepomp
- Warm water
- Elektrische boiler
Kadastrale gegevens
- HEERHUGOWAARD P 11173
- Kadastrale kaart
- Oppervlakte
- 357 m²
- Eigendomssituatie
- Volle eigendom
Buitenruimte
- Ligging
- Aan rustige weg, aan water en in woonwijk
- Tuin
- Achtertuin, voortuin en zijtuin
- Achtertuin
- 150 m² (12,50 meter diep en 12,00 meter breed)
- Ligging tuin
- Gelegen op het zuidwesten bereikbaar via achterom
Garage
- Soort garage
- Aangebouwde stenen garage
- Capaciteit
- 1 auto
- Voorzieningen
- Elektra en stromend water
- Isolatie
- Geen spouw
Parkeergelegenheid
- Soort parkeergelegenheid
- Op eigen terrein en openbaar parkeren
Foto's 20
© 2001-2025 funda



















