Dit huis op Funda: https://www.funda.nl/detail/huur/hoofddorp/huis-klaterbos-57/43899108/

Omschrijving
**Ruime en Comfortabele Eengezinswoningen in Hoofddorp**
Deze woningen zijn de ideale keuze voor gezinnen die op zoek zijn naar ruimte, comfort en een gunstige locatie. Met een woonoppervlakte van 97 m², een praktische indeling en een aantrekkelijke ligging bieden deze eengezinswoningen alles wat je nodig hebt voor comfortabel wonen.
**Indeling en Ruimte**
De woningen beschikken over een ruime voor- en achtertuin, ideaal voor kinderen om veilig te spelen of voor gezellige zomerse barbecues. De ligging in een groene en rustige wijk draagt bij aan een ontspannen woonsfeer. Voldoende parkeergelegenheid direct voor de deur maakt het extra handig voor gezinnen met één of meerdere auto’s.
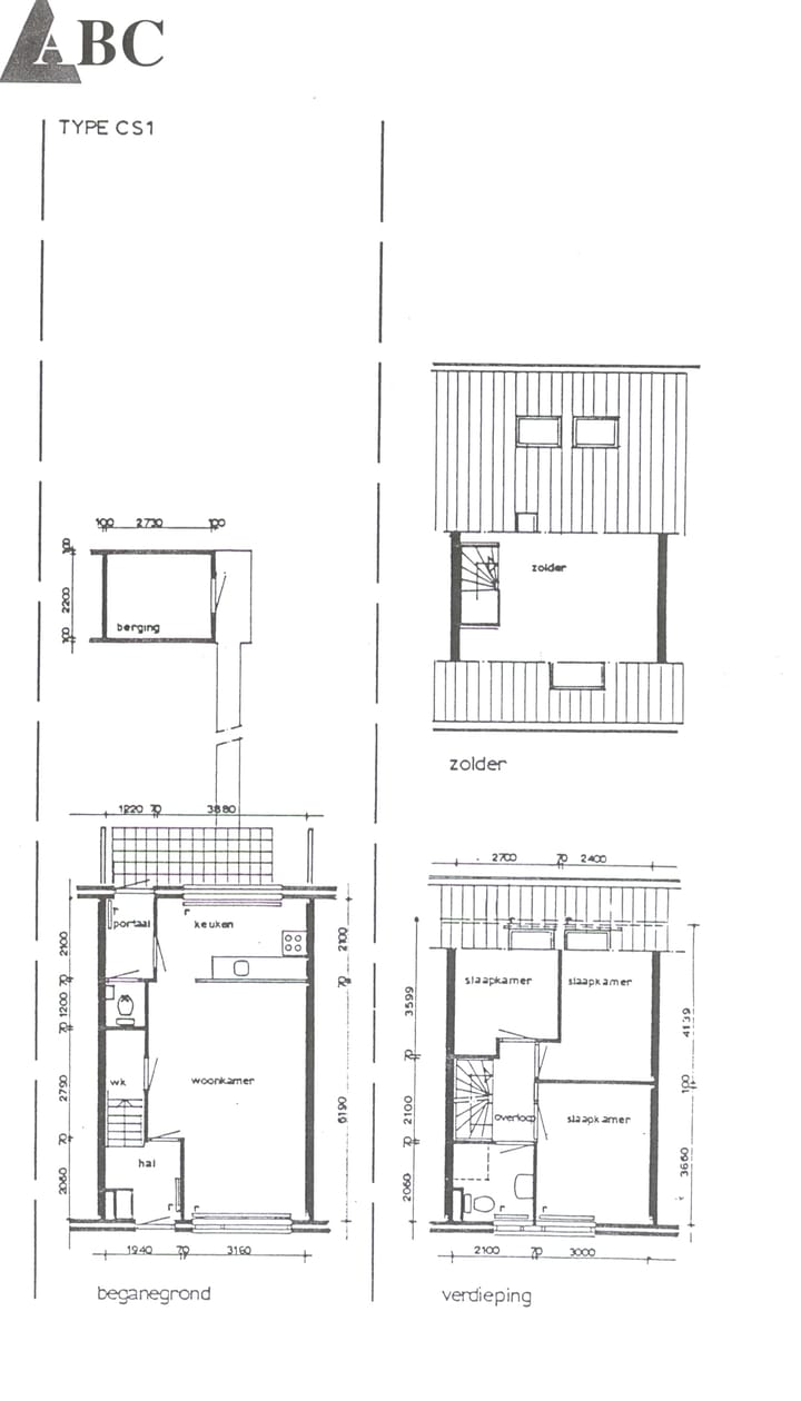
Bij binnenkomst betreed je de hal, die toegang biedt tot een lichte doorzonwoonkamer. Deze woonkamer, gelegen aan de voorzijde van de woning, wordt gekenmerkt door grote ramen die veel natuurlijk licht binnenlaten. Aan de achterzijde bevindt zich de moderne open keuken, voorzien van alle nodige apparatuur en veel werkruimte. De woonkamer geeft ook toegang tot de royale achtertuin met een praktische berging, ideaal voor fietsen, tuingereedschap en meer.
Een aparte kleine hal aan de voorzijde biedt toegang tot het toilet, strategisch geplaatst voor extra privacy.
De trap in de centrale entree leidt naar de eerste verdieping, waar drie goed ingedeelde slaapkamers zijn gesitueerd. Twee daarvan zijn royaal genoeg voor een tweepersoonsbed en een kledingkast, terwijl de derde kamer perfect is als kinderkamer, hobbyruimte of thuiskantoor. De badkamer is compact maar efficiënt, voorzien van een douche, wastafel en tweede toilet.
De vaste trap naar de zolder biedt toegang tot een verrassend ruime open zolderverdieping. Deze ruimte kan eenvoudig worden ingericht als vierde slaapkamer, speelkamer of werkruimte. Hier bevinden zich ook de cv-ketel en het ventilatiesysteem, netjes weggewerkt om de ruimte optimaal te benutten.
**Ideale Locatie**
Deze woningen liggen in een kindvriendelijke wijk in Hoofddorp, waar rust en veiligheid centraal staan. Met veel groen in de omgeving en diverse speelplaatsen in de buurt is het een perfecte plek voor gezinnen met jonge kinderen. Daarnaast is winkelcentrum Toolenburg op fietsafstand, waar je terecht kunt voor dagelijkse boodschappen, winkels en horeca.
Dankzij de gunstige ligging zijn steden als Leiden, Amsterdam en Haarlem snel bereikbaar, zowel met de auto als met het openbaar vervoer. Ook Schiphol en het strand van Zandvoort of Bloemendaal zijn binnen korte tijd te bereiken, wat deze locatie ideaal maakt voor zowel forenzen als liefhebbers van strand- en stadsleven.
Kortom, deze eengezinswoningen combineren ruimte, comfort en een uitstekende locatie in een kindvriendelijke en groene omgeving. Een perfecte plek om een thuis van te maken!
Interesse?
Ga in de woningpresentatie op onze website naar [REAGEER] en geef hiermee aan dat je geïnteresseerd bent.
Inkomensnormen en inschrijfdocumentatie
Hiervoor verwijzen we je door naar onze website.
Borg
Verhuurder kan om haar moverende redenen borg vragen. Dit kan o.a. afhankelijk zijn van de werksituatie van de kandidaten.
Huurprijswijziging
Voor huurwoningen met een geliberaliseerde huurprijs geldt een jaarlijkse huurverhoging van maximaal CPI +1%, tenzij er in enig jaar door de Rijksoverheid een andere maximale huurprijsverhoging voor geliberaliseerde zelfstandige huurwoningen is vastgesteld. In het geval van een gereguleerde huurprijs bepaalt de Rijksoverheid jaarlijks het percentage van de huurverhoging.
**Vb&t streeft ernaar om je zo goed mogelijk aan een passende huurwoning te helpen. Om dit te realiseren verzoeken wij je om jezelf in te schrijven via onze website. Inschrijven is altijd kosteloos en geheel vrijblijvend. Je kunt je inschrijven voor woningen die direct beschikbaar zijn, maar ook voor woningen die mogelijk toekomstig beschikbaar komen. Op basis van de door jou verstrekte informatie word je door ons automatisch per e-mail geïnformeerd wanneer er woningen beschikbaar zijn die voldoen aan je woonwensen. Je kunt gratis en eenvoudig inschrijven op onze website.**
**Deze informatie is met de grootst mogelijke zorg samengesteld. Toch kunnen wij niet altijd voorkomen dat de informatie enigszins afwijkt van hetgeen je in of rond de woning ziet of hebt gezien. Dit kan met name gelden voor de brochure tekst, de plattegronden en maatvoeringen. Hieraan kunnen dan ook geen rechten worden ontleend.**
Kenmerken
Overdracht
- Laatste huurprijs
- € 1.445 per maand (geen servicekosten)
- Waarborgsom
- Geen
- Huurovereenkomst
- Onbepaalde tijd
- Status
- Verhuurd
Bouw
- Soort woonhuis
- Eengezinswoning, tussenwoning
- Soort bouw
- Bestaande bouw
- Bouwjaar
- 1989
- Soort dak
- Zadeldak bedekt met pannen
Oppervlakten en inhoud
- Gebruiksoppervlakten
- Wonen
- 97 m²
- Externe bergruimte
- 6 m²
- Inhoud
- 242 m³
Indeling
- Aantal kamers
- 1 kamer
- Aantal badkamers
- 1 apart toilet
- Aantal woonlagen
- 1 woonlaag
- Voorzieningen
- TV kabel
Energie
- Energielabel
- Isolatie
- Dubbel glas en muurisolatie
- Verwarming
- Cv-ketel
- Warm water
- Cv-ketel
- Cv-ketel
- Gas gestookt combiketel
Buitenruimte
- Ligging
- In woonwijk
- Tuin
- Achtertuin
Bergruimte
- Schuur/berging
- Vrijstaande stenen berging
Garage
- Soort garage
- Vrijstaande stenen garage
- Capaciteit
- 1 auto
Foto's 7
© 2001-2026 funda






