Dit huis op Funda: https://www.funda.nl/detail/huur/malden/huis-de-toom-14/43261181/

De Toom 146581 JT MaldenVerspreide huizen Malden
€ 2.750 /mnd
Omschrijving
Op een geliefde locatie gelegen stijlvolle helft van dubbele villa met verlengde garage en 5 slaapkamers. Deze woning is in 1999 gebouwd in jaren 30 stijl en is gelegen in het mooiste deel van de wijk Hoogenhof met veelal onder architectuur gebouwde (half)vrijstaande woningen.
De klassieke jaren 30 stijl wordt benadrukt door de royale raampartijen met roedeverdeling en het markante dak met overstek.
Indeling:
Begane grond: Entree/hal, meterkast, bergkast, garderobe, moderne toiletruimte, sfeervolle en riante living met erker en goede lichtinval, grote vloertegels in neutrale kleurstelling, DRU gashaard (afstandsbediening) met fraaie Portugese natuurstenen schouw, openslaande deuren naar tuin, moderne keuken met inbouwapparatuur, bijkeuken met witgoedaansluitingen. Vanuit de bijkeuken is de garage bereikbaar.
1e verdieping: aan de ruime overloop grenzen een 3-tal slaapkamers, alsmede een badkamer, welke geheel tot aan het plafond is betegeld, voorzien van een ligbad, separate douchecabine, vrijhangend closet en een dubbele designwastafel van Sphinx, voorzien van Borma mengkranen. De gehele 1e verdieping is afgewerkt met gestucte plafonds en wanden en natuurstenen vensterbanken.
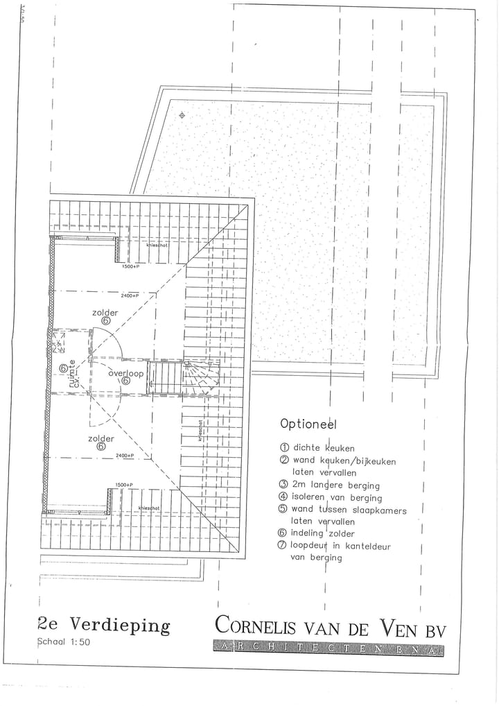
2e verdieping: via vaste trap bereikbare overloop, stookruimte met NEFIT HR cv-ketel, extra bergkast en 2 ruime slaapkamers met beide een eigen dakkapel. Een kamer is voorzien van een extra wastafel met spiegel.
3e verdieping: middels vlizotrap bereikbare ruime bergvliering.
Garage: verwarmde garage, van binnenuit bereikbaar, extra verlengd tot 8,10 meter en voorzien van een op afstand elektrisch bedienbare kanteldeur. De garagevloer is afgewerkt met een vloeistofdichte epoxylaag. Door de extra inloopkast met schapverdeling is er veel extra opbergruimte aanwezig. De ruime oprit biedt plaats aan 2 auto's.
Tuin: de zonnige achtertuin is noordgericht en zeer verzorgd aangelegd met 2 royale terrassen, zodat zowel van de zon als van de schaduw genoten kan worden. Zowel voor als achter de woning is er een wateraansluiting aanwezig.
Bijzonderheden:
- Aanvaarding in overleg
- Bouwjaar 1999
- Inhoud ca. 525 m³
- Woonoppervlakte ca. 160 m²
- Perceelsoppervlakte 215 m³
- 5 slaapkamers
- Verlengde garage met oprit voor 2 auto's
- Fraai gelegen in zeer verzorgde woonomgeving
- Aantrekkelijke architectuur uit de jaren dertig
- Volledig geïsoleerd
Kenmerken
Overdracht
- Aangeboden sinds
- Aanvaarding
- In overleg
- Huurprijs
- € 2.750 per maand (geen servicekosten)
- Waarborgsom
- € 2.750 eenmalig
- Huurovereenkomst
- Onbepaalde tijd
- Status
- Beschikbaar
Bouw
- Soort woonhuis
- Eengezinswoning, 2-onder-1-kapwoning
- Soort bouw
- Bestaande bouw
- Bouwjaar
- 1999
- Soort dak
- Samengesteld dak bedekt met pannen
Oppervlakten en inhoud
- Gebruiksoppervlakten
- Wonen
- 146 m²
- Inhoud
- 528 m³
Indeling
- Aantal kamers
- 6 kamers (5 slaapkamers)
- Aantal badkamers
- 1 badkamer
- Badkamervoorzieningen
- Douche, dubbele wastafel, ligbad, en toilet
- Aantal woonlagen
- 3 woonlagen
Energie
- Energielabel
- Niet beschikbaar
- Verwarming
- Cv-ketel
- Warm water
- Cv-ketel
- Cv-ketel
- Gas gestookt combiketel, eigendom
Buitenruimte
- Ligging
- Aan rustige weg en in woonwijk
- Tuin
- Achtertuin en voortuin
- Achtertuin
- 71 m² (7,60 meter diep en 8,25 meter breed)
- Ligging tuin
- Gelegen op het oosten
Garage
- Soort garage
- Aangebouwde stenen garage
- Capaciteit
- 1 auto
- Voorzieningen
- Elektra
Parkeergelegenheid
- Soort parkeergelegenheid
- Op eigen terrein en openbaar parkeren
Foto's 16
© 2001-2026 funda















