
Rocamadour 521448 LA PurmerendEuropa
€ 1.606 /mnd
Omschrijving
2 kamer appartement met een woonoppervlakte van 63 m2. Bevat een moderne witte keuken met bovenkast en voorzien van Siemens inbouwapparatuur en badkamer met wastafel, designradiator en douche. De Open Veste is omgeven door groen en vlakbij het centrum van Purmerend en bus- en treinstation in nabijheid, goede bereikbaarheid met snelweg A7.
*De foto's zijn van een vergelijkbare woning binnen het complex maar geven een goede indruk van de afwerking en ruimte.
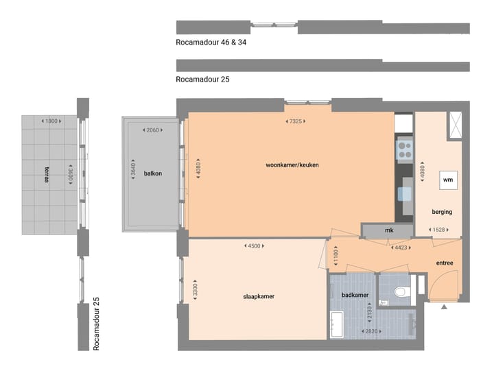
Kenmerken
Rocamadour 52, 1448LA Purmerend
2-kamer appartement op de 5e verdieping
circa 63 m2
Huurprijs per maand: € 1.415
Servicekosten per maand: € 55
Beschikt over een parkeerplaats in de parkeergarage
Beschikt over een separate berging
Beschikbaar per direct
Algemeen
Appartement op de 5e verdieping met een oppervlakte van 63 m2. Deze woning heeft een balkon op het oosten.
Keuken
De keuken is luxe afgewerkt met witte greeploze kasten en een composiet aanrechtblad in de kleur zwart. Er is led verlichting onder bovenkast. Ook is de keuken voorzien van Siemens inbouwapparatuur, waaronder een vaatwasser, koelkast met vriesvak, inductiekookplaat en combi-oven/magnetron.
Badkamer
De badkamer is compleet met wastafel, designradiator en douche.
Overig
Alle appartementen zijn hoogwaardig afgewerkt.
Omgeving
De Open Veste bevindt zich op Kop West, een nieuwe wijk aan de noordkant van Purmerend, langs het Noordhollandsch Kanaal. Logisch dus, dat je hier veel water en groen zult zien. Water in een wijk brengt rust én reuring, vogels en bootjes, mooie wandelroutes en leuke bruggetjes.
GROEN EN TOCH STADS. De Engelsen zeggen het mooi: ‘My home is my castle.’ In De Open Veste in Purmerend vind je precies dát. Als een moderne vesting – compleet met ‘slotgracht’ – omarmen negen gebouwen een prachtige binnentuin. De rust en het groen van jouw eigen park, net als een echte kasteelheer of -vrouwe, maar met alle stadse voorzieningen onder handbereik! De 115 (vrije sector) huurappartementen in De Open Veste zijn al net zo gevarieerd als de omgeving. Er zijn maar liefst 27 verschillende types. Gevarieerd met woonoppervlakten tussen de 46 en 97 m2 en keuze voor één, twee of drie slaapkamers.
VOORZIENINGEN. Wie Purmerend kent, weet dat het hier fijnen wonen is. Wat in de 12de eeuw begon als een kleine nederzetting, is – mede door de nabijheid van Amsterdam – uitgegroeid tot een volwassen, moderne gemeente. De ligging van De Open Veste is ideaal: aan de westkant van het centrum, met zijn winkels, horeca, bioscopen, sportscholen en theaters. Ben je een watersporter? Het IJsselmeer ligt bij wijze van spreken om de hoek. Een rondje golf? De Purmer heeft een 36 holes championship course en een 9 holes PAR-3.
BEREIKBAARHEID. Wij voorspellen dat je de auto amper nodig zult hebben. Maar kun je niet zonder, in verband met je werk? Dan is het goed te weten dat je straks vlak bij de uitvalswegen (A7) woont. En met het OV sta je in 25 minuten op Amsterdam Centraal. De buslijnen tussen Purmerend en Amsterdam rijden in een erg hoge frequentie (in de spits tot wel 14 keer per uur). Pak de trein en je zit zo in Zaandam, Amsterdam-Sloterdijk en op Schiphol, of – de andere kant op – in Hoorn.
Kenmerken
Overdracht
- Oorspronkelijke huurprijs
- € 1.582 per maand (exclusief servicekosten à € 55,0 /mnd)
- Aangeboden sinds
- Aanvaarding
- Per direct beschikbaar
- Huurprijs
- € 1.606 per maand (exclusief servicekosten à € 55,00 /mnd)
- Waarborgsom
- Geen
- Huurovereenkomst
- Onbepaalde tijd
- Status
- Beschikbaar
Bouw
- Soort appartement
- Portiekflat
- Soort bouw
- Bestaande bouw
- Bouwjaar
- 2021
Oppervlakten en inhoud
- Gebruiksoppervlakten
- Wonen
- 63 m²
- Inhoud
- 171 m³
Indeling
- Aantal kamers
- 2 kamers (1 slaapkamer)
- Aantal badkamers
- 1 badkamer en 1 apart toilet
- Badkamervoorzieningen
- Dubbele wastafel en inloopdouche
- Aantal woonlagen
- 1 woonlaag
- Voorzieningen
- Balansventilatie, lift, en zonnepanelen
- Gelegen op
- 6e woonlaag
Energie
- Energielabel
- A++
- Isolatie
- HR-glas
Buitenruimte
- Ligging
- Aan water
- Balkon/dakterras
- Balkon aanwezig
Bergruimte
- Schuur/berging
- Aangebouwde stenen berging
Garage
- Soort garage
- Parkeerplaats
Parkeergelegenheid
- Soort parkeergelegenheid
- Parkeergarage
VvE checklist
- Inschrijving KvK
- Nee
- Jaarlijkse vergadering
- Nee
- Periodieke bijdrage
- Nee
- Reservefonds aanwezig
- Nee
- Onderhoudsplan
- Nee
- Opstalverzekering
- Nee
Foto's 14
© 2001-2025 funda













