Dit huis op Funda: https://www.funda.nl/detail/huur/rijnsburg/appartement-de-klok-409/89630566/

De Klok 4092231 DW RijnsburgFrederiksoord-Noord
€ 1.565 /mnd
Omschrijving
LET OP: VERHUUR UITSLUITEND VANAF 55 JAAR EN OUDER
Leven in luxe en comfort, dat is wonen in Calla. Als onderdeel van woonwijk De Bloem in Rijnsburg biedt appartementencomplex Calla met haar luxe full-service woningen een uniek concept! Bent u 55+ en wilt u comfortabel wonen met diverse faciliteiten op locatie? Dan vindt u in Calla alles waar u naar op zoek bent!
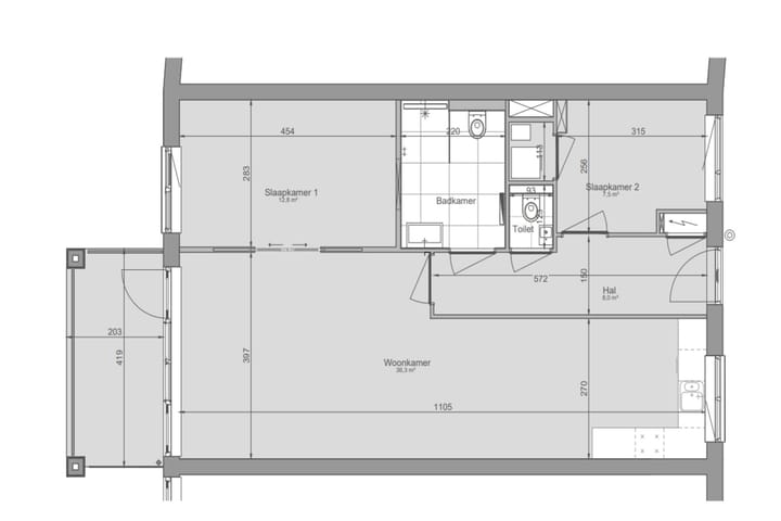
Dit 3-kamer appartement heeft een woonoppervlakte van ca. 76 m2. De woning is uitgevoerd met een luxe keuken met een composiet werkblad en voorzien van koelkast, aparte vriezer, vaatwasser, elektrische kookplaat en combimagnetron. Ook de badkamer is compleet. Een luxe, sfeervolle ruimte afgewerkt met tegelwerk in warme taupe-en wit tinten. De badkamer is voorzien van een wastafel, spiegel inclusief verlichting, douchewand, draingoot, thermostaatkraan, douche, elektrische handdoekradiator en (tweede) toilet. Het toilet in de badkamer kan desgewenst op de door u gewenste hoogte worden gesteld.
De slaapkamer is aan de woonkamer gelegen. De slaapkamer kan afgescheiden worden van de woonkamer door sfeervolle ensuite deuren. Aan de voorzijde van de woning bevindt zich nog een tweede kamer. In deze ruimte heeft u toegang tot de wasruimte waar ook een kluis aanwezig is. De tuin is bereikbaar vanuit de woonkamer en is georiënteerd op het noordoosten.
De woning is volledig uitgevoerd met een duurzaam vloerverwarming- en koelingssysteem wat werkt op een warmtepompinstallatie en is dus volledig gasloos.
Het appartement is voorzien van stoffering zoals een pvc-vloer, afgewerkte wanden en raambekleding.
Bijzonderheden:
- Verhuur aan huurders met een minimale leeftijd van 55 jaar;
- De woning is inclusief stoffering;
- Toegang tot diverse (bijzondere) faciliteiten;
- Huisdieren zijn beperkt toegestaan.
Calla kent een aantal bijzondere faciliteiten welke voor alle huurders ter beschikking staan.
Binnentuin
Op de eerste verdieping (entree) is de ‘’Binnentuin’’ gelegen. Hier treft u een koffiecorner en gezellige huiskamers waar u met uw medebewoners kunt bijkletsen, een krantje kunt lezen of spelletje kunt spelen. Daarnaast zijn op de binnentuin de volgende faciliteiten aanwezig:
- Schoonheidsspecialiste
- Kapster
- (Medisch) Pedicure
- Wasserette
- Spreekkamers (2x)
- Huismeester
- Logeerkamers (2 stuks)
Kookstudio
Op de tweede verdieping is De Kookstudio gelegen. Hier kunt u, samen met uw medebewoners, een maaltijd koken, biljarten, film kijken in de huisbioscoop of genieten op het riante zonneterras. De kookstudio kan ook worden gereserveerd voor bijvoorbeeld een verjaardag van bewoners van het gebouw.
Wellness
Op de begane grond van het gebouw is de Wellness gelegen. Deze bestaat uit een luxe afgewerkt zwembad, fitness, sauna en Turks stoombad. Deze faciliteiten zijn te gebruiken door alle bewoners van woonwijk De Bloem.
Parkeergarage
Onder het gebouw is de centrale parkeergarage gelegen die parkeren aan het oog onttrekt. Via de toegangspoort, welke op kentekenherkenning werkt, betreedt u de garage waar u een eigen parkeerplaats huurt (indien u in het bezit bent van een auto). Tevens is voor iedere woning een berging in de kelder gereserveerd en is er een gemeenschappelijke fietsenberging.
Huurvoorwaarden
De appartementen in Calla kunnen slechts worden verhuurd aan huurders met een minimale leeftijd van 55 jaar en ouder. Het is daarnaast niet gewenst dat er thuiswonende kinderen meeverhuizen.
Servicekosten
De servicekosten omvat o.a. een voorschot voor warm water en verwarming, het dagelijks onderhoud van het gebouw, de wellness en fitness.
Wilt u meer informatie over Calla? Neem dan contact op met De Raad Woonmakelaars via 071-4051500 of
Kenmerken
Overdracht
- Aangeboden sinds
- Aanvaarding
- In overleg
- Huurprijs
- € 1.565 per maand (exclusief servicekosten à € 364,00 /mnd)
- Waarborgsom
- € 1.929 eenmalig
- Huurovereenkomst
- Onbepaalde tijd
- Status
- Beschikbaar
Bouw
- Soort appartement
- Galerijflat (appartement)
- Soort bouw
- Bestaande bouw
- Bouwjaar
- 2017
Oppervlakten en inhoud
- Gebruiksoppervlakten
- Wonen
- 76 m²
- Externe bergruimte
- 5 m²
- Inhoud
- 246 m³
Indeling
- Aantal kamers
- 3 kamers (2 slaapkamers)
- Aantal badkamers
- 1 badkamer en 1 apart toilet
- Badkamervoorzieningen
- Douche, toilet, en wastafel
- Aantal woonlagen
- 1 woonlaag
- Voorzieningen
- Domotica en lift
- Gelegen op
- 1e woonlaag
Energie
- Energielabel
- A
- Verwarming
- Gehele vloerverwarming, warmte terugwininstallatie en warmtepomp
- Warm water
- Aardwarmte
Bergruimte
- Schuur/berging
- Inpandig
- Voorzieningen
- Elektra
Parkeergelegenheid
- Soort parkeergelegenheid
- Betaald parkeren en parkeergarage
Foto's 29
© 2001-2025 funda




























