
Omschrijving
DE BEZICHTIGINGEN ZIJN VOLGEBOEKT; NIEUWE REACTIES WORDEN NIET IN BEHANDELING GENOMEN.
THE VIEWINGS HAVE BEEN FULLY BOOKED; NEW APPLICATIONS WILL NOT BE TAKEN INTO CONSIDERATION.
[FOR ENGLISH, SEE BELOW]
Tweekamerappartement op een uitstekende locatie midden in de Utrechtse binnenstad in de buurt van de alombekende Domtoren, de Nieuwegracht en op loopafstand van allerlei winkels, boetiekjes, restaurants en ander vertier dat de stad te bieden heeft.
Met haltes voor openbaar vervoer om de hoek en Utrecht Centraal op loopafstand, of op 5 minuten fietsen.
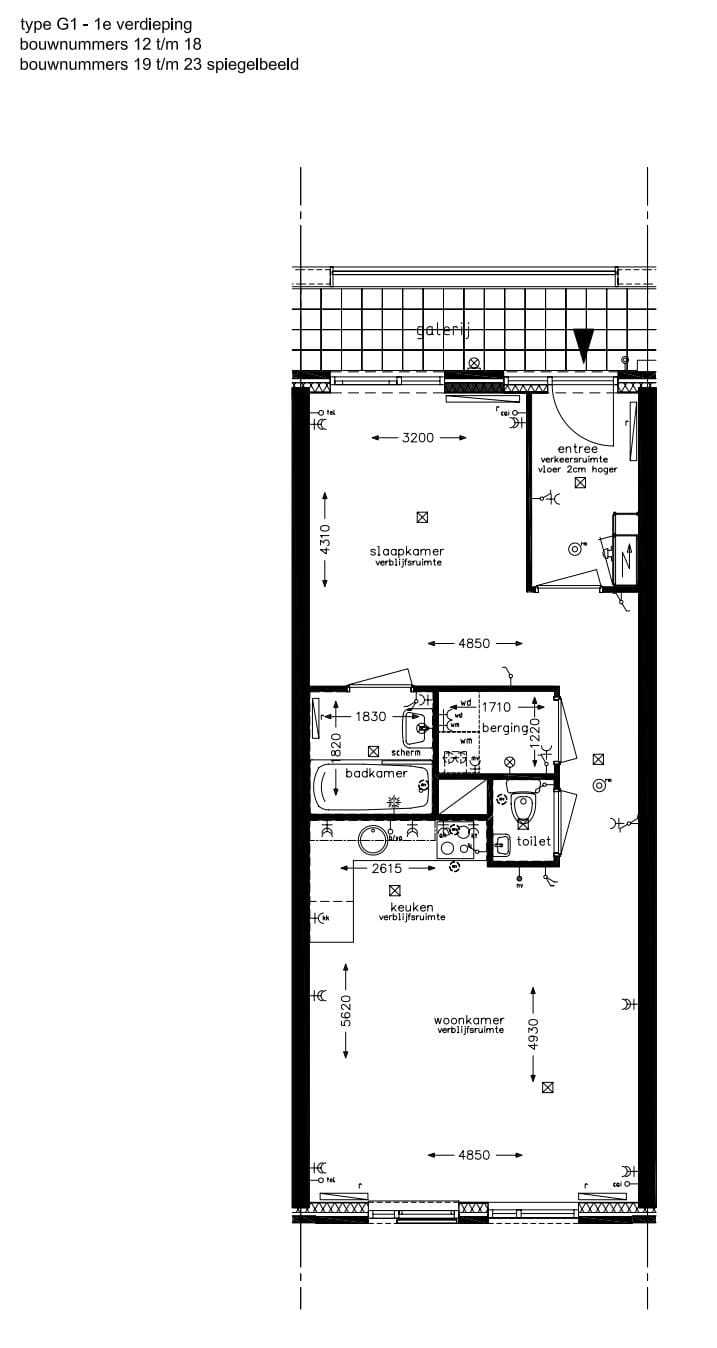
Indeling:
Beveiligde toegang tot het pand op straatniveau, lift of trap naar de eerste verdieping.
Entrée naar de woning, hal met meterkast. Slaapkamer aan de voorzijde met en-suite badkamer voorzien van inloopdouche, wastafelmeubel en designradiator.
In de hal de interne berging met wasmachineaansluiting, seperaat toilet.
Toegang tot de ruime woonkamer met moderne open keuken, welke is voorzien van alle benodigde inbouwapparatuur.
Kenmerken:
- Totaal woonoppervlakte 74 m2;
- 2-kamerappartement;
- 1 slaapkamer;
- Luxe badkamer met inloopdouche en wastafelmeubel;
- Energielabel A+++;
- Hoogwaardig afwerkingsniveau;
- Turn-Key;
- Gemeenschappelijke fietsenberging;
- Huurprijs € 1.595,- per maand;
- Servicekosten € 73,- per maand;
- Mogelijkheid tot het huren van een parkeerplaats van € 119,- per maand incl. servicekosten.
Huurvoorwaarden:
- Minimale huurperiode 12 maanden;
- Inkomenseis 3 tot 4 keer de maandhuur bruto inkomen;
- Waarborgsom ter grootte van een betalingsverplichting van 1 maand.
Let op: bijgevoegd fotomateriaal is van een ander type bedoeld als sfeerimpressie - hieraan kunnen geen rechten worden ontleend.
[ENGLISH]
Two-room flat in an excellent location in the centre of Utrecht, near the famous Dom Tower, the Nieuwegracht canal and within walking distance of all kinds of shops, boutiques, restaurants and other entertainment that the city has to offer.
With public transport stops around the corner and Utrecht Central Station within walking distance or a 5-minute bike ride away.
Layout:
Secure access to the building at street level, lift or stairs to the first floor.
Entrance to the property, hall with meter cupboard. Bedroom at the front with en-suite bathroom with walk-in shower, washbasin and designer radiator.
In the hall, the internal storage room with washing machine connection, separate toilet.
Access to the spacious living room with modern open kitchen, which is equipped with all necessary built-in appliances.
Features:
- Total living area 74 m2;
- 2-room flat;
- 1 bedroom;
- Luxury bathroom with walk-in shower and washbasin;
- Energy label A+++;
- High-quality finish;
- Turn-Key;
- Communal bicycle storage;
- Rent € 1.595,- per month;
- Service costs € 73,- per month;
- Possibility to rent a parking space for € 119,- per month, including service costs.
Rental conditions:
- Minimum rental period 12 months;
- Income requirement 3 to 4 times the gross monthly rent;
- Deposit equal to 1 month's rent.
Please note: the attached photos are of a different type and are intended to give an impression of the atmosphere - no rights can be derived from them.
Kenmerken
Overdracht
- Laatste huurprijs
- € 1.595 per maand (servicekosten onbekend)
- Waarborgsom
- € 1.668 eenmalig
- Huurovereenkomst
- Onbepaalde tijd
- Status
- Verhuurd
Bouw
- Soort appartement
- Portiekflat (appartement)
- Soort bouw
- Bestaande bouw
- Bouwperiode
- 2001-2010
- Soort dak
- Samengesteld dak
Oppervlakten en inhoud
- Gebruiksoppervlakten
- Wonen
- 57 m²
- Inhoud
- 154 m³
Indeling
- Aantal kamers
- 2 kamers (1 slaapkamer)
- Aantal woonlagen
- 1 woonlaag
- Voorzieningen
- Frans balkon, lift, en mechanische ventilatie
- Gelegen op
- 2e woonlaag
Energie
- Energielabel
- Isolatie
- Volledig geïsoleerd
- Verwarming
- Cv-ketel
- Warm water
- Cv-ketel
- Cv-ketel
- Combiketel, eigendom
Buitenruimte
- Balkon/dakterras
- Frans balkon aanwezig
- Ligging
- In centrum
Garage
- Soort garage
- Inpandig, parkeerkelder en parkeerplaats
- Capaciteit
- 1 auto
Parkeergelegenheid
- Soort parkeergelegenheid
- Betaald parkeren, openbaar parkeren en parkeervergunningen
Foto's 18
© 2001-2026 funda

















