
Omschrijving
Te huur: Modern en duurzaam appartement!
Dit prachtige appartement is een parel in zijn soort, met energielabel A+++ en tal van luxe voorzieningen. U beschikt over een eigen parkeerplaats en het comfort van vloerverwarming, die ook kan koelen in de zomer.
Het appartement is volledig gasloos en wordt verwarmd en gekoeld met een energiezuinige warmtepomp. De hoogwaardige afwerking omvat strak gesausd scanbehang en een stijlvolle PVC-vloer met een warme houtlook.
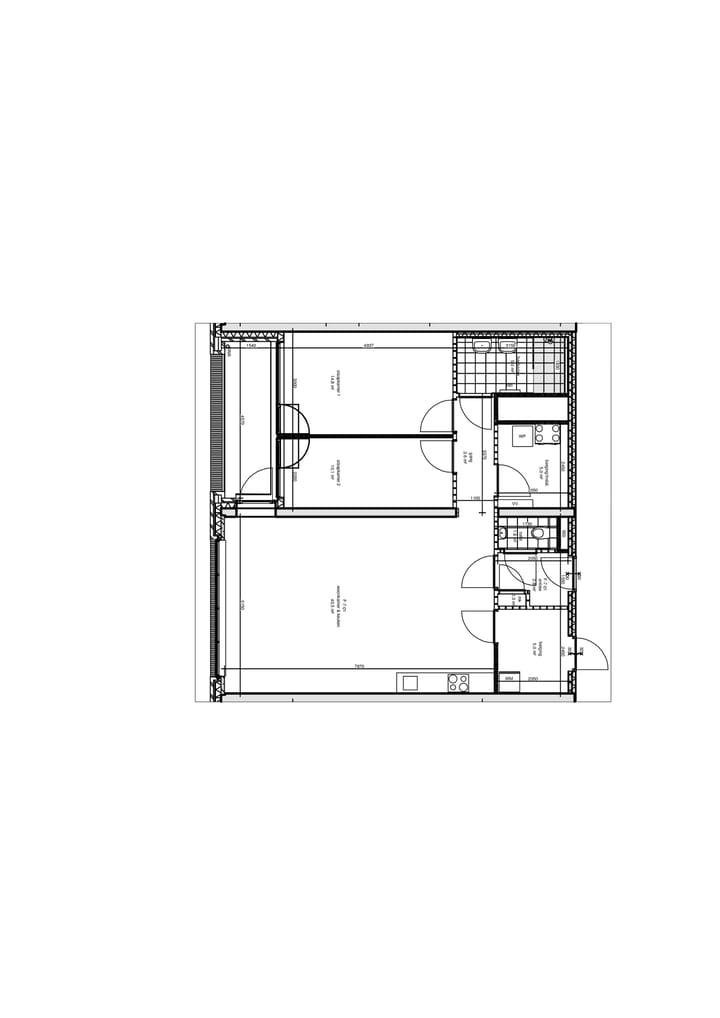
Indeling:
Begane grond:
De gezamenlijke entree is stijlvol ingericht en voorzien van brievenbussen, met toegang tot zowel de lift als het trappenhuis.
Woonverdieping:
De royale woonkamer met open keuken van maar liefst 40 m² biedt directe toegang tot het balkon, waar u kunt genieten van de groene binnentuin.
De moderne keuken is uitgerust met een strakke opstelling en diverse inbouwapparatuur (merk: AEG), waaronder een inductiekookplaat, een heteluchtoven met magnetronfunctie, een koelkast met vriesvak, een vaatwasser en een recirculatie-afzuigkap.
Het appartement beschikt over twee comfortabele slaapkamers van respectievelijk 15 m² en 10 m². De luxe badkamer is ingericht met twee wastafels, een ruime inloopdouche en een designradiator. Het aparte toilet is voorzien van een wastafeltje en een vrijhangend wandcloset, wat zorgt voor extra comfort.
In de praktische inpandige berging vindt u de opstelplaats van de warmtepomp en de WTW-installatie. Daarnaast is er voldoende ruimte voor de aansluiting van een wasmachine en droger.
Het appartement heeft de beschikking over een eigen parkeerplaats in de onderbouw (parkeerkelder)
Servicekosten € 55,- per maand.
Mis deze unieke kans niet en word deel van dit prachtige nieuwbouwproject. Meld je aan via Funda.nl. vul het contactformulier met de makelaar in. U ontvangt dan met circa 1 uur een mail met instructie voor het invullen van een digitaal inschrijfformulier en een QR code om uw gegevens te delen via de Datakeeper app. voor instructie zie
Algemene huurvoorwaarden:
Uiteraard willen wij u als woningzoekende optimaal van dienst zijn. Om in aanmerking te komen voor één van onze huurwoningen, dient u aan een aantal voorwaarden te voldoen.
• Eénverdiener: 3,5 x bruto maandhuur als inkomenseis (incl. vaste toeslagen en vakantiegeld);
• Tweeverdieners: het tweede bruto salaris telt voor 100% mee;
• Waarborgsom: één maand kale huur;
• Bij een jaarcontract geldt dezelfde inkomenseis. Er is een verhoogde borg van 2 maanden in plaats van één;
• ZZP’ers: dezelfde inkomenseis met een verhoogde waarborgsom van 2 maanden in plaats van één;
• Bij een minimum salaris van 75% van de inkomenseis is een garantstelling van derden vereist (het maximale bedrag in de borgstellingsovereenkomst is één keer de jaarhuur);
• Huisdieren alleen na toestemming beheerder (na toestemming zal er een verhoogde borg van 2 maanden in plaats van één gelden);
• Overwaarde huidige woning en spaargelden kunnen slechts in zeer uitzonderlijke gevallen en geheel naar oordeel van beheerder worden meegenomen.
Bij zelfstandige ondernemers
• Een ingevulde accountantsverklaring of soortgelijk document voor ondernemers;
• Een ingevulde inkomensverklaring (eerder het IB60 formulier);
• Recente jaarcijfers;
• U dient minimaal jaarstukken van de laatste drie afgeronde jaren te laten zien. Indien er geen stukken van drie afgeronde jaren beschikbaar zijn, vindt er een extra toetsing naar oordeel van beheerder plaats;
• Recent gewaarmerkt uittreksel Kamer van Koophandel voor ondernemers (max. drie maanden oud)
Na uw reactie op de woning ontvangt u van ons een email om een eigen digitaal dossier (IDD) aan te maken en uw basisgegevens in te vullen. Ook ontvangt u een link naar Datakeeper om uw inkomensgegevens te delen. Alleen geverifieerde inkomens via Datakeeper worden meegenomen in de toewijzing.
DATAKEEPER EN PROCES
Om op een veilige en betrouwbare manier in aanmerking te kunnen komen voor één van onze huurwoningen vragen we u uw gegevens te verifiëren via de Datakeeper app. Datakeeper is een door de Rabobank ondersteunde applicatie op uw telefoon om op een veilige en snelle gebruiksvriendelijke manier uw inkomens- en persoonsgegevens met ons te delen. Via deze pagina willen we u graag informeren over het gebruik van Datakeeper. Wij adviseren u deze pagina zorgvuldig door te lezen en het stappenplan te doorlopen om uw inschrijving compleet te maken.
Met Datakeeper kunnen we uw privacy beter waarborgen en bent u zelf in controle over de verstuurde gegevens. Niemand anders heeft inzicht in de gegevens die op uw telefoon staan opgeslagen. U bepaalt daarmee zelf met wie en wanneer u uw gegevens deelt en u ziet precies welke gegevens worden verstuurd. Het compleet maken van uw inschrijving via Datakeeper is wel een voorwaarde om u in te kunnen schrijven voor één van onze huurwoningen. Inschrijvingen die niet compleet zijn doordat inkomens- en persoonsgegevens via Datakeeper ontbreken worden niet in behandeling genomen.
Voor nu vragen we u alvast te controleren of u beschikt over uw inloggegevens van DigiD. Het is niet mogelijk om in te loggen met de DigiD app. U moet dus in het bezit zijn van een gebruikersnaam en wachtwoord. Kijk op om te controleren of de sms-verificatie aanstaat. Op deze site van DigiD kunt u met de grote oranje button inloggen en het verifiëren per sms aanzetten.
Wilt u meer weten over Datakeeper? Ga dan naar Datakeeper.nl voor meer informatie of neem contact met ons op.
**Deze informatie is met de grootst mogelijke zorg samengesteld. Toch kunnen wij niet altijd voorkomen dat de informatie enigszins afwijkt van hetgeen je in of rond de woning ziet of hebt gezien. Dit kan met name gelden voor de brochure tekst, de plattegronden en maatvoeringen. Hieraan kunnen dan ook geen rechten worden ontleend.**
Kenmerken
Overdracht
- Laatste huurprijs
- € 1.555 per maand (exclusief servicekosten à € 55,00 /mnd)
- Waarborgsom
- € 1.555 eenmalig
- Huurovereenkomst
- Onbepaalde tijd
- Status
- Verhuurd
Bouw
- Soort appartement
- Portiekflat (appartement)
- Soort bouw
- Bestaande bouw
- Bouwjaar
- 2022
- Specifiek
- Gedeeltelijk gestoffeerd
- Soort dak
- Plat dak bedekt met bitumineuze dakbedekking
Oppervlakten en inhoud
- Gebruiksoppervlakten
- Wonen
- 93 m²
- Gebouwgebonden buitenruimte
- 11 m²
- Inhoud
- 281 m³
Indeling
- Aantal kamers
- 3 kamers (2 slaapkamers)
- Aantal badkamers
- 1 badkamer en 1 apart toilet
- Badkamervoorzieningen
- Dubbele wastafel en inloopdouche
- Aantal woonlagen
- 6 woonlagen
- Voorzieningen
- Balansventilatie, glasvezelkabel, lift, natuurlijke ventilatie, en TV kabel
- Gelegen op
- 2e woonlaag
Energie
- Energielabel
- Isolatie
- Driedubbel glas, HR-glas en volledig geïsoleerd
- Verwarming
- Gedeeltelijke vloerverwarming, warmte terugwininstallatie en warmtepomp
- Warm water
- Elektrische boiler
Buitenruimte
- Ligging
- In woonwijk
- Balkon/dakterras
- Balkon aanwezig
Bergruimte
- Schuur/berging
- Inpandig
- Voorzieningen
- Elektra
- Isolatie
- Volledig geïsoleerd
Garage
- Soort garage
- Parkeerkelder en parkeerplaats
Parkeergelegenheid
- Soort parkeergelegenheid
- Betaald parkeren, op afgesloten terrein en parkeergarage
VvE checklist
- Inschrijving KvK
- Nee
- Jaarlijkse vergadering
- Nee
- Periodieke bijdrage
- Nee
- Reservefonds aanwezig
- Nee
- Onderhoudsplan
- Nee
- Opstalverzekering
- Nee
Foto's 17
© 2001-2026 funda
















