Dit huis op Funda: https://www.funda.nl/detail/huur/weert/appartement-de-hoge-kei-211/43271709/

Omschrijving
In hartje centrum van Weert bevindt zich dit appartementencomplex "Noordereind". Het complex is gelegen op de hoek van de Beekstraat en De Hoge Kei; direct aan het Kasteelplein. Gelet op deze uitstekend centrum locatie zijn alle voorzieningen, waaronder winkels, eetgelegenheden en het openbaar vervoer, op loopafstand gelegen.
De appartementen in het complex zijn verdeeld over vier woonlagen. Het complex is voorzien van een lift en biedt rondom voldoende parkeergelegenheid voor u en uw gasten. Voor het parkeren kan er een abonnement worden afgesloten bij de Gemeente Weert. In het souterrain zijn de privé bergingen gelegen. Het complex is toegankelijk voor alle leeftijdsgroepen.
De indeling is als volgt:
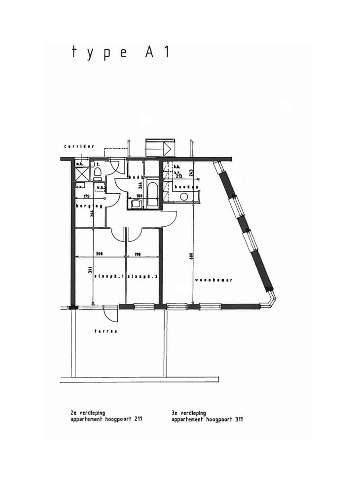
Dit ruime appartement is gelegen op de tweede verdieping van het complex en kent een oppervlakte van circa 75m². Het appartement voorziet in een ruime woonkamer (37 m²), met aangrenzend gelegen de keuken in rechte opstelling. Het appartement met de loggia (8 m²) gelegen richting de Rabobank.
Het appartement is voorzien van twee slaapkamers met respectievelijke oppervlakten van ca. 12m² en 6,5m². De badkamer is gelegen direct aan de hal en is voorzien van ligbad en douche. Het toilet met fonteintje is separaat gelegen. Tot slot heeft u de beschikking over een ruime inpandige berging. Deze ruimte doet prima functie als provisie- c.q. bergruimte. In de kelder van het complex is eveneens een berging aanwezig voor bijvoorbeeld uw fiets.
Huurdetails
Kale huurprijs: €1200,00 per maand
Inkomenseis: €4.800,00 per maand
Servicekosten: €65,00 per maand
Waarborgsom: minimaal 1 tot maximaal 2 maanden
Duur: minimaal 12 maanden
Beschikbaar: per 1-02-2026
Getoonde foto's zijn van een vergelijkbare woning en dienen als impressie.
Vragen over deze woning?
Voor vragen over deze woning kunt u contact opnemen met ons kantoor in Heerlen.
Interesse in deze woning?
Schrijft u zich kosteloos en vrijblijvend in op onze website kunt u bij de woning klikken op de knop [REAGEER]: u geeft hiermee aan dat u interesse hebt in de woning.
Om in aanmerking te komen voor deze woning dient het bruto maandinkomen minimaal 4x de huurprijs per maand te bedragen; er zal een inkomenstoets plaatsvinden. Op onze website vindt u alle toewijzingscriteria.
Indien u zich inschrijft via onze website, zullen wij u op basis van de verstrekte informatie automatisch per e-mail informeren over de woningen die beschikbaar komen en voldoen aan uw woonwensen.
Alle informatie is met de grootst mogelijke zorg samengesteld. Helaas kunnen wij niet altijd voorkomen dat de informatie enigszins afwijkt van de werkelijkheid. In sommige gevallen worden foto’s gebruikt van een soortgelijke woning of appartement en dienen als impressie. Aan de teksten, plattegronden, foto’s en maatvoeringen kunnen geen rechten worden ontleend.
Kenmerken
Overdracht
- Aangeboden sinds
- Aanvaarding
- Beschikbaar per 01-02-2026
- Huurprijs
- € 1.200 per maand (exclusief servicekosten à € 65,00 /mnd)
- Waarborgsom
- € 1.200 eenmalig
- Huurovereenkomst
- Onbepaalde tijd
- Status
- Beschikbaar
Bouw
- Soort appartement
- Portiekflat (appartement)
- Soort bouw
- Bestaande bouw
- Bouwperiode
- 1991-2000
Oppervlakten en inhoud
- Gebruiksoppervlakten
- Wonen
- 75 m²
- Externe bergruimte
- 5 m²
- Inhoud
- 188 m³
Indeling
- Aantal kamers
- 3 kamers (2 slaapkamers)
- Aantal badkamers
- 1 badkamer en 1 apart toilet
- Badkamervoorzieningen
- Douche en ligbad
- Aantal woonlagen
- 4 woonlagen
- Gelegen op
- 2e woonlaag
Energie
- Energielabel
- B
- Verwarming
- Cv-ketel
- Warm water
- Cv-ketel
- Cv-ketel
- Gas gestookt combiketel, eigendom
VvE checklist
- Inschrijving KvK
- Nee
- Jaarlijkse vergadering
- Nee
- Periodieke bijdrage
- Nee
- Reservefonds aanwezig
- Nee
- Onderhoudsplan
- Nee
- Opstalverzekering
- Nee
Foto's 15
© 2001-2025 funda














