
Aalsmeerderweg 1911432 CL AalsmeerGreenpark
€ 625.000 k.k.
Omschrijving
Prachtige bouwkavel aan de Aalsmeerderweg – Nabij Amstelveen en Amsterdam
Bent u op zoek naar een unieke locatie om uw droomwoning te realiseren? Deze schitterende kavel, gelegen aan de Aalsmeerderweg, biedt u de perfecte combinatie van rust en bereikbaarheid. Gelegen op een steenworp afstand van Amstelveen en Amsterdam, geniet u van het beste van twee werelden: het landelijke karakter van de omgeving en de nabijheid van stedelijke voorzieningen.
Hoogtepunten van deze kavel:
• Geweldige locatie: Dicht bij Amstelveen en Amsterdam, ideaal voor forenzen.
• Praktische voorzieningen: Supermarkt en andere winkels in de directe omgeving.
• Ruimte en vrijheid: Ontwerp en bouw uw woning volledig naar eigen wens.
• Bereikbaarheid: Uitstekende verbindingen met uitvalswegen en openbaar vervoer.
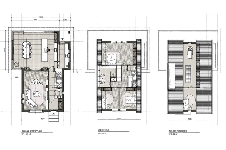
• NOW.A Design studio uit Aalsmeer heeft de voorbeeld ontwerpen voor de opdrachtgever gemaakt.
Met deze kavel investeert u in een uitzonderlijke locatie die zowel rust als gemak biedt. Neem vandaag nog contact op voor meer informatie of een bezichtiging!
----
Beautiful building plot at Aalsmeerderweg - Near Amstelveen and Amsterdam
Are you looking for a unique location to realise your dream home? This beautiful plot, located on Aalsmeerderweg, offers you the perfect combination of tranquillity and accessibility. Located a stone's throw from Amstelveen and Amsterdam, you will enjoy the best of both worlds: the rural character of the area and the proximity to urban amenities.
Highlights of this plot:
- Great location: Close to Amstelveen and Amsterdam, ideal for commuters.
- Practical amenities: Supermarket and other shops in the immediate vicinity.
- Space and freedom: Design and build your home entirely as you wish.
- Accessibility: Excellent connections to motorways and public transport.
- NOW.A Design studio from Aalsmeer created the sample designs for the client.
With this plot, you are investing in an exceptional location that offers both tranquillity and convenience. Contact us today for more information or a viewing!
Kenmerken
Overdracht
- Aangeboden sinds
- Aanvaarding
- In overleg
- Vraagprijs
- € 625.000 kosten koper
- Status
- Beschikbaar
Bouw
- Soort object
- Bouwgrond
- Bouwrijp
- Ja
Indeling
- Perceel
- 827 m²
Kadastrale gegevens
- AALSMEER B 10492
- Kadastrale kaart
- Oppervlakte
- 827 m²
- Eigendomssituatie
- Volle eigendom
Foto's 12
© 2001-2025 funda











