Dit huis op Funda: https://www.funda.nl/detail/koop/aalsmeer/huis-oosteinderweg-116/89595373/

Oosteinderweg 1161432 AN AalsmeerBovenlanden
€ 1.325.000 k.k.
Omschrijving
Vrijstaand woonhuis met agrarisch perceel en bedrijfs-/opslagmogelijkheden.
Aan het begin van de Oosteinderweg in Aalsmeer bieden wij een unieke combinatie van wonen en werken aan. Het betreft een royaal perceel van maar liefst 9.858 m² met vrijstaand woonhuis, ruime garage en grote loods. Circa 1.500 m² van het perceel is bestemd voor wonen en tuin en ca. 8.358 m² heeft een agrarische bestemming (functie-aanduiding tuincentrum).
Bij binnenkomst van de woning betreedt u de royale hal met garderobe, toilet met fontein, meterkast (inclusief waterontharder) en de trapopgang naar de eerste verdieping. Vanuit de hal heeft u directe toegang tot zowel de woonkamer als een slaapkamer op de begane grond, ideaal voor levensbestendig wonen.
De rechterzijde van de woning is ingericht als één ruime en open woon-/leefruimte: de woonkamer met veel raampartijen zorgt voor een aangename natuurlijke lichtinval en grenst aan de moderne open keuken.
Deze keuken is uitgerust met een vijfpits- gaskookplaat, vaatwasser, koelkast, vriezer en combi-oven/magnetron. Zowel woonkamer als keuken zijn voorzien van een sfeervolle terracotta tegelvloer, die warmte en karakter toevoegt.
Op de begane grond bevindt zich tevens een ruime slaapkamer met vaste kastenwand en een ensuite badkamer die is gerenoveerd in 2019. De badkamer is uitgevoerd met een stortdouche, dubbele wastafel met meubel, spiegelkast, zwevend toilet en comfortabele vloerverwarming. Uitstekend geschikt voor gelijkvloers wonen.
Via de trap bereikt u de eerste verdieping, waar zich twee riante slaapkamers bevinden. Op de overloop is de wasruimte gelegen met aansluitingen voor de wasmachine, alsmede de opstelling van de cv-ketel en de omvormer van de in 2020 geplaatste twaalf zonnepanelen.
Verder is de woning gebouwd op betonnen vloeren, voorzien van Schiphol-isolatie, gevel- en vloerisolatie en zijn de houten kozijnen in 2024 nog geschilderd; onderhoud en comfort zijn hierbij goed gewaarborgd.
Het buitengebied van dit perceel biedt bijzonder veel mogelijkheden. Rondom het woonhuis zijn een achter- en zijtuin aangelegd. De achtertuin is gesitueerd op het zuidoosten wat zorgt voor een fijne zitting in de zon. De achtertuin is afgescheiden met groenstructuur middels schutting en hagen.
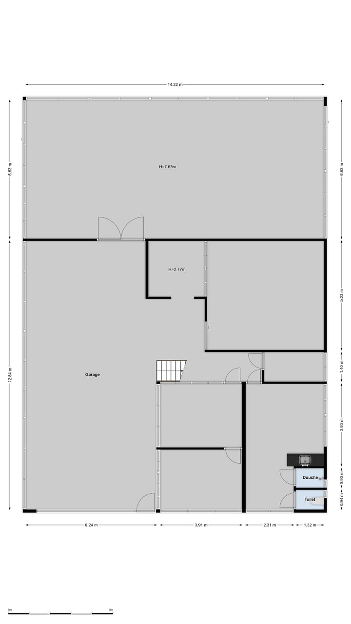
Achter de woning ligt een verhard terrein met stelconplaten, waar een vrijstaande stenen garage inclusief een berging is gesitueerd. De garage is voorzien van een elektrische deur. Er is voldoende ruime voor opslag en het parkeren van de auto.
Verderop op het perceel ligt een (zand) buitenbak voor pony’s of alpaca’s, omgeven door grasvelden en afscheiding. En tevens bevindt zich hier een grote vrijstaande loods met overheaddeur. Deze loods is geschikt voor opslag of bedrijfsvoering; bovendien is een deel ingericht met kantoorruimte, douche en toilet. Achter in de loods zijn stallen/hekken aanwezig.
Aan de zijkant van het object bevindt zich een perceel teelgrond wat momenteel tijdelijk verhuurd is voor de heestercultuur.
Op het perceel rust een recht van overpad ten behoeve van de Oosteinderweg 114a
Tot slot verdient het aandacht dat bij aankoop rekening gehouden moet worden met overdrachtsbelasting: op het woon-gedeelte bedraagt deze 2%, terwijl op het agrarische gedeelte een tarief van 10,4% overdrachtsbelasting geldt.
Bijzonderheden
- Vrijstaande woning op een ruim perceel van 9.858m²;
- Ca. 1.500m² van het perceel heeft een woon bestemming. En ca. 8.358m² heeft een agrarische bestemming;
- Ruime, lichte woonkamer met grote raampartijen en terracotta vloer;
- Moderne open keuken;
- Levensloopbestendig wonen mogelijk dankzij slaapkamer en badkamer op de begane grond;
- Eerste verdieping met twee slaapkamers;
- Achtertuin op het zuidoosten met veel privacy en groenstructuur;
- Energiezuinig met 12 zonnepanelen (2020);
- Woning voorzien van Schiphol isolatie;
- Vrijstaande garage met berging;
- Grote loods met overheaddeur;
- Buitenbak geschikt voor pony's of alpaca's;
- Deel van het perceel in gebruik als teelgrond;
- Overdrachtsbelasting: 2% voor het woondeel en 10.4% voor het agrarische deel.
Omgeving
Het is heerlijk wonen in Aalsmeer! In de zomer een dagje recreëren op het water? Dan vindt je aan de Westeinderplassen een prachtig natuur- en recreatiegebied waar u heerlijk kunt zeilen of varen met uw motorboot of kano. In een van de vele jachthavens kunt u aanmeren om vervolgens op een terras te genieten bij één van de horecagelegenheden aan het water.
De ligging is eveneens gunstig ten opzichte van de gezellige dorpskern van Aalsmeer met diverse voorzieningen zoals winkels en horecagelegenheden. Aalsmeer heeft alle denkbare sportvoorzieningen, restaurants, kroegen en een actief cultureel leven.
Aalsmeer is tevens gunstig gelegen ten opzichte van de uitvalswegen naar o.a. Amsterdam, Amstelveen en Hoofddorp, zowel met de auto als met het openbaar vervoer.
NOTARISKEUZE
De koper mag de notaris aanwijzen waar de eigendomsoverdracht plaats zal gaan vinden. Deze notaris dient kantoor te houden in Aalsmeer, Uithoorn of
Amstelveen, of binnen een straal van 5 kilometer van het verkochte object. Indien koper echter een notaris wenst aan te wijzen die kantoor houdt buiten voorgenoemd gebied, dan zijn de verkoper en diens makelaar gerechtigd kosten bij de koper in rekening te brengen. Deze kosten hangen samen met het extra beslag op productiemiddelen en tijd. De kosten worden berekend aan de hand van een nog nader op te geven uurtarief
alsmede een vergoeding van € 0,28 per kilometer.
DISCLAIMER
Deze informatie is door ons met de nodige zorgvuldigheid samengesteld. Onzerzijds wordt echter geen enkele aansprakelijkheid aanvaard voor enige onvolledigheid, onjuistheid of anderszins, dan wel de gevolgen daarvan. Alle opgegeven maten en oppervlakten zijn indicatief. Hoewel wij de woning zorgvuldig hebben opgemeten, wordt noch door Huisman Hoogendoorn Makelaars, noch door de verkoper enige aansprakelijkheid aanvaard voor afwijkingen in de opgegeven maten. Koper verklaart in gelegenheid te zijn gesteld om de opgegeven maten te (laten) controleren. Koper heeft zijn eigen onderzoekplicht naar alle zaken die voor hem of haar van belang zijn. Met betrekking tot deze woning is de makelaar adviseur van verkoper. Wij adviseren u een eigen deskundige makelaar in te schakelen die u begeleidt bij het aankoopproces. Indien u specifieke wensen heeft omtrent de woning, adviseren wij u deze tijdig kenbaar te maken aan uw aankopend makelaar en hiernaar zelfstandig onderzoek te (laten) doen. Indien u geen deskundige vertegenwoordiger inschakelt, acht u zich volgens de wet deskundige genoeg om alle zaken die van belang zijn te kunnen overzien.
Kenmerken
Overdracht
- Aangeboden sinds
- Aanvaarding
- In overleg
- Vraagprijs
- € 1.325.000 kosten koper
- Vraagprijs per m²
- € 11.325
- Status
- Beschikbaar
Bouw
- Soort woonhuis
- Eengezinswoning, vrijstaande woning
- Soort bouw
- Bestaande bouw
- Bouwjaar
- 1980
- Soort dak
- Zadeldak bedekt met pannen
Oppervlakten en inhoud
- Gebruiksoppervlakten
- Wonen
- 117 m²
- Externe bergruimte
- 326 m²
- Perceel
- 9.858 m²
- Inhoud
- 423 m³
Indeling
- Aantal kamers
- 4 kamers (3 slaapkamers)
- Aantal badkamers
- 1 badkamer en 1 apart toilet
- Badkamervoorzieningen
- Douche, dubbele wastafel, toilet, vloerverwarming, en wastafelmeubel
- Aantal woonlagen
- 2 woonlagen
- Voorzieningen
- Glasvezelkabel, natuurlijke ventilatie, en zonnepanelen
Energie
- Energielabel
- Isolatie
- Dubbel glas, muurisolatie en vloerisolatie
- Verwarming
- Cv-ketel
- Warm water
- Cv-ketel
- Cv-ketel
- Gas gestookt combiketel uit 2015, eigendom
Kadastrale gegevens
- AALSMEER B 9481
- Kadastrale kaart
- Oppervlakte
- 9.858 m²
- Eigendomssituatie
- Volle eigendom
Buitenruimte
- Ligging
- Aan drukke weg
- Tuin
- Achtertuin
Garage
- Soort garage
- Vrijstaande stenen garage
- Capaciteit
- 1 auto
- Voorzieningen
- Elektrische deur en elektra
Parkeergelegenheid
- Soort parkeergelegenheid
- Op eigen terrein
Foto's 88
Plattegronden 4
© 2001-2026 funda



























































































