Dit huis op Funda: https://www.funda.nl/detail/koop/aalten/huis-gendringseweg-27-j/43000064/

Gendringseweg 27-J7122 ME AaltenLintelo-kern
€ 354.000 v.o.n.
Omschrijving
AALTEN - GENDRINGSEWEG 27-J
In de kern van het mooie buurtschap Lintelo zijn op de voormalige locatie van Aannemersbedrijf Nijland
aan de Gendringseweg fraaie nieuwgebouwde woningen gerealiseerd.
Kenmerkend voor deze unieke woningen zijn de warme uitstraling door materiaalkeuze en vormgeving.
Momenteel is nog één TWEE ONDER EEN KAPWONING beschikbaar.
Aan de achterzijde heeft de woning een mooi uitzicht over de achtergelegen es grond.
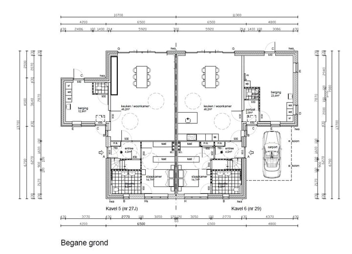
Indeling:
Begane grond: entree met trapopgang, slaapkamer met aansluitend casco badkamer met douche,
tuingerichte woonkamer met open keuken, ruime berging met aansluiting voor toilet.
1e Verdieping: indeelbare ruimte met mogelijkheid voor slaapkamers en toilet-/ doucheruimte.
2e Verdieping: zolderberging.
Kerngegevens:
* Grondopp.: ca. 476 m².
* Woonopp.: ca. 135 m².
Overige info:
* Tuin op het zuiden.
* De woning wordt casco opgeleverd v.v. complete isolatie. HR++ glas.
* Incl. trap naar de verdieping en binnenwanden en deurkozijnen tbv slaapkamer en badkamer
* Excl. sanitair, keuken en installatiewerk.
* Momenteel bevindt zich de woning nog in een afwerkfase.
* Wijziging op beoogde indeling en binnen afwerking is mogelijk
Info Lintelo
Lintelo is een actief en levendig buurtschap, beschikt over een eigen basisschool, peuteropvang en multifunctioneel
Kulturhus waarin sport, spel en muziek wordt beoefend. Tal van verenigingen zijn actief zoals gymnastiek, volleybal, muziek, toneel, sjoel-/schietclub, bibliotheek. Het jaarlijkse oranje feest vindt plaats in augustus.
Bent u op zoek naar een woning met een eigentijds gezicht, warme uitstraling, lage energiekosten en geschikt voor vele doeleinden zoals slaap- en badkamer op de begane grond, dan is deze unieke woning wellicht iets voor u.
* Aanvaarding in overleg.
* Prijs: € 354.000,-- v.o.n.
Kenmerken
Overdracht
- Oorspronkelijke vraagprijs
- € 458.800 kosten koper
- Aangeboden sinds
- Aanvaarding
- In overleg
- Vraagprijs
- € 354.000 vrij op naam
- Vraagprijs per m²
- € 2.622
- Status
- Beschikbaar
Bouw
- Soort woonhuis
- Eengezinswoning, 2-onder-1-kapwoning
- Soort bouw
- Nieuwbouw
- Bouwjaar
- 2025
- Soort dak
- Dwarskap bedekt met pannen
Oppervlakten en inhoud
- Gebruiksoppervlakten
- Wonen
- 135 m²
- Perceel
- 496 m²
- Inhoud
- 560 m³
Indeling
- Aantal kamers
- 2 kamers (1 slaapkamer)
- Aantal badkamers
- 1 badkamer en 1 apart toilet
- Badkamervoorzieningen
- Douche, toilet, en wastafel
- Aantal woonlagen
- 2 woonlagen en een zolder
Energie
- Energielabel
- A+++
- Isolatie
- Volledig geïsoleerd
Kadastrale gegevens
- AALTEN G 5342
- Kadastrale kaart
- Oppervlakte
- 496 m²
- Eigendomssituatie
- Volle eigendom
Buitenruimte
- Ligging
- Buiten bebouwde kom, open ligging en vrij uitzicht
- Tuin
- Achtertuin en voortuin
- Achtertuin
- 122 m² (9,00 meter diep en 13,50 meter breed)
- Ligging tuin
- Gelegen op het zuiden
Bergruimte
- Schuur/berging
- Aangebouwde stenen berging
- Isolatie
- Dakisolatie, dubbel glas, muurisolatie, vloerisolatie en volledig geïsoleerd
Parkeergelegenheid
- Soort parkeergelegenheid
- Op eigen terrein
Foto's 17
© 2001-2025 funda
















