Dit huis op Funda: https://www.funda.nl/detail/koop/abbekerk/huis-lijsterbeslaan-24/89570771/

Lijsterbeslaan 241657 AR AbbekerkAbbekerk Centrum
€ 325.000 k.k.
BlikvangerEen woning met mogelijkheden en eigen garagebox!
Omschrijving
Wonen op een rustige plek, met volop mogelijkheden!
Op zoek naar een fijne woning die u helemaal naar eigen smaak kunt moderniseren? Dan is Lijsterbeslaan 24 precies wat u zoekt! Deze ruime woning ligt op een mooie en rustige locatie in Abbekerk en beschikt over verrassend veel leefruimte, en een zonnige tuin op het zuidoosten. De woning is altijd met zorg bewoond geweest door de eerste eigenaren, maar biedt nu volop kansen voor de volgende bewoner om er een eigentijds en comfortabel thuis van te maken.
Indeling
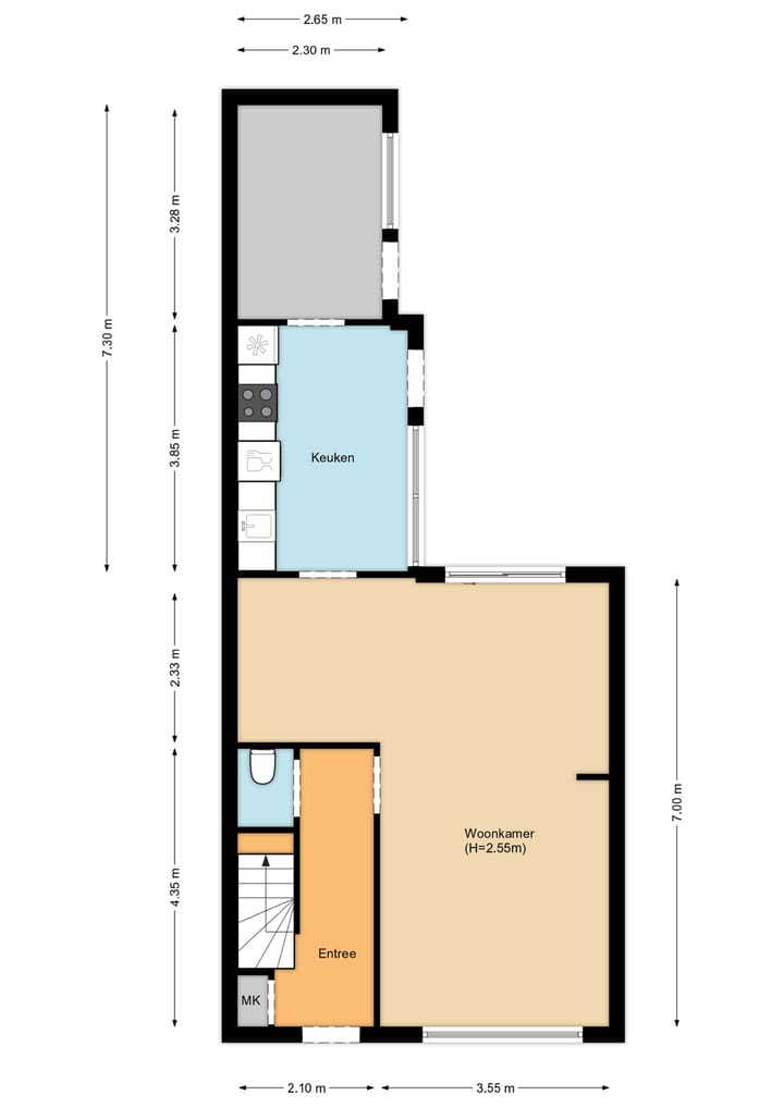
Begane grond
De voortuin met groen en bloemen verwelkomt u direct bij aankomst. Via de overdekte entree komt u in de hal met toilet, meterkast, trapopgang, trapkast en toegang tot de woonkamer. De royale woonkamer is heerlijk licht dankzij de grote ramen en de aluminium schuifpui naar de achtertuin. Aan de achterzijde bevindt zich de ruime keuken, voorzien van diverse inbouwapparatuur zoals een koelkast, oven, vaatwasser, 4-pits gaskookplaat, natuurstenen aanrechtblad en elektrische boiler. Achter de keuken bevindt zich de praktische bijkeuken met witgoedaansluitingen en extra bergruimte.
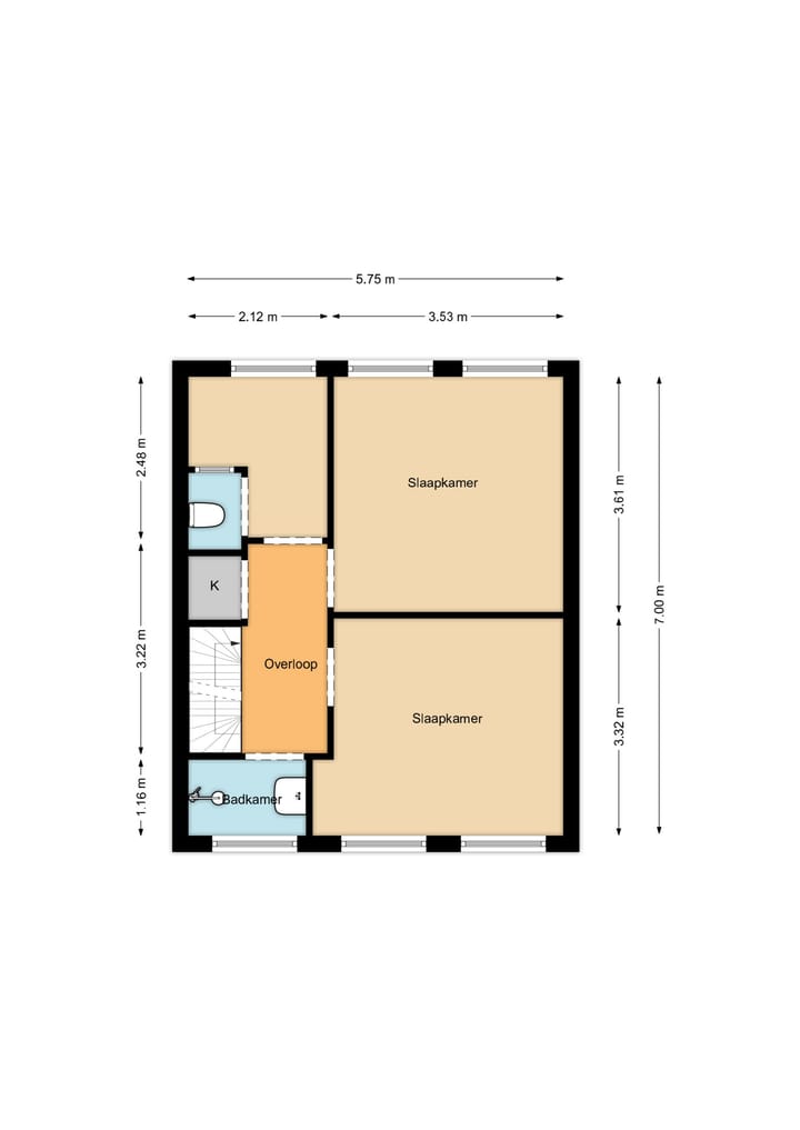
Eerste etage
Op de eerste verdieping bevinden zich drie (slaap)kamers, waarvan twee aan de achterzijde en één aan de voorzijde. De badkamer beschikt over een inloopdouche, wastafel, wandradiator en kunststof raamkozijn. In één van de kamers aan de achterzijde is een tweede toiletruimte gecreëerd en op de overloop is een handige bergkast aanwezig.
Tweede etage
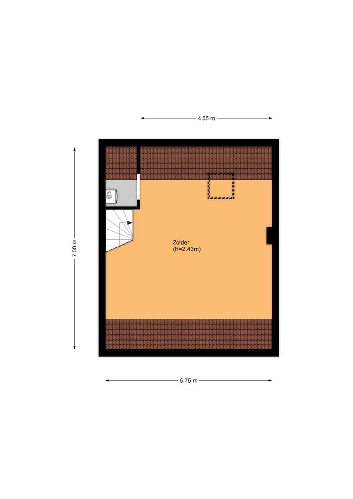
De vaste trap leidt naar de tweede verdieping met een groot dakraam, radiator en veel bergruimte. Hier is ook de cv-installatie (2024) keurig weggewerkt in een kast. Deze verdieping kan desgewenst ook worden ingericht als extra slaapkamer, hobbykamer of thuiswerkplek.
Tuin
De zonnige achtertuin ligt op het zuidoosten en biedt een heerlijke plek om te genieten van de zon. De tuin is voorzien van
een zonnescherm, bestrating, borders met beplanting en een achterom.
De omgeving
De woning ligt in een rustige en kindvriendelijke woonwijk met veel groen en voldoende parkeergelegenheid in de straat. Abbekerk is een gemoedelijk dorp met een actieve gemeenschap en beschikt over diverse voorzieningen zoals een basisschool, sportverenigingen, dorpshuis, supermarkt en horeca.
De centrale ligging maakt het dorp bijzonder aantrekkelijk: binnen enkele autominuten bereikt u de A7 richting Hoorn, Purmerend of Amsterdam. Ook Medemblik en Wognum liggen op korte afstand. Dankzij de goede busverbindingen zijn omliggende dorpen en steden eveneens goed bereikbaar. Hier woont u rustig en dorps, met het comfort van alle voorzieningen binnen handbereik.
Kort samengevat
• Woning met veel potentie op een fijne locatie
• Ruime woonkamer met aluminium schuifpui
• Vier (slaap)kamers
• CV-installatie vernieuwd in 2024
• Zonnige tuin op het zuidoosten
• Rustige en kindvriendelijke woonomgeving
• Centrale ligging nabij uitvalswegen (A7)
Lijsterbeslaan 24 in Abbekerk is de ideale basis om uw woonwensen waar te maken! Heeft u interesse? Maak dan direct een afspraak voor een bezichtiging.
**Tevens is er een extra optie om de garagebox over te nemen indien gewenst.
Aan de achterzijde van het woonblok bevinden zich meerdere garageboxen. De betreffende garage is circa 17 m² en kan worden overgenomen. Ideaal voor het stallen van uw auto, fietsen of als extra opslagruimte.**
Kenmerken
Overdracht
- Oorspronkelijke vraagprijs
- € 350.000 kosten koper
- Aangeboden sinds
- Aanvaarding
- In overleg
- Vraagprijs
- € 325.000 kosten koper
- Vraagprijs per m²
- € 2.802
- Status
- Beschikbaar
Bouw
- Soort woonhuis
- Eengezinswoning, tussenwoning
- Soort bouw
- Bestaande bouw
- Bouwjaar
- 1970
- Soort dak
- Zadeldak bedekt met pannen
Oppervlakten en inhoud
- Gebruiksoppervlakten
- Wonen
- 116 m²
- Externe bergruimte
- 17 m²
- Perceel
- 143 m²
- Inhoud
- 383 m³
Indeling
- Aantal kamers
- 7 kamers (4 slaapkamers)
- Aantal badkamers
- 1 badkamer en 2 aparte toiletten
- Badkamervoorzieningen
- Inloopdouche en wastafel
- Aantal woonlagen
- 3 woonlagen
- Voorzieningen
- Buitenzonwering, schuifpui, en TV kabel
Energie
- Energielabel
- D
- Isolatie
- Gedeeltelijk dubbel glas
- Verwarming
- Cv-ketel
- Warm water
- Cv-ketel en elektrische boiler
- Cv-ketel
- Intergas (gas gestookt combiketel uit 2024, eigendom)
Kadastrale gegevens
- NOORDER-KOGGENLAND B 611
- Kadastrale kaart
- Oppervlakte
- 119 m²
- Eigendomssituatie
- Volle eigendom
- NOORDER-KOGGENLAND B 638
- Kadastrale kaart
- Oppervlakte
- 24 m²
- Eigendomssituatie
- Volle eigendom
Buitenruimte
- Ligging
- In woonwijk
- Tuin
- Achtertuin en voortuin
- Achtertuin
- 28 m² (7,00 meter diep en 4,00 meter breed)
- Ligging tuin
- Gelegen op het zuidoosten bereikbaar via achterom
Garage
- Soort garage
- Garagebox
- Capaciteit
- 1 auto
- Voorzieningen
- Elektra
Parkeergelegenheid
- Soort parkeergelegenheid
- Openbaar parkeren
Foto's 42
Plattegronden 4
© 2001-2025 funda













































