Dit huis op Funda: https://www.funda.nl/detail/koop/alkmaar/huis-rekerstraat-9/43132623/

Omschrijving
Ben je op zoek naar een comfortabel, modern woonhuis in een rustige woonomgeving, maar toch dicht bij het bruisende stadsleven?
Dan moet je deze goed onderhouden tussenwoning aan de Rekerstraat 9 in Alkmaar absoluut gezien hebben!
Deze jaren ’40-woning biedt de perfecte combinatie van sfeervol wonen en het comfort van nu.
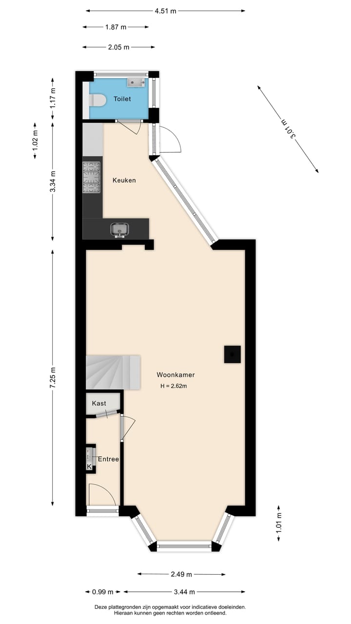
Je komt binnen in de hal met meterkast en praktische trapkast. Vanuit hier stap je de lichte woonkamer in, waar de gezellige erker met glas-in-loodramen direct de aandacht trekt, een prachtig authentiek detail dat bijdraagt aan de unieke uitstraling van het huis..
De woonkamer is modern afgewerkt en voorzien van vloerverwarming en een houtkachel voor extra warmte en sfeer. Aan de achterzijde bevindt zich de keuken, uitgerust met een koel-vriescombinatie, 5-pits gaskookplaat, oven, vaatwasser en afzuigkap, ideaal voor de kookliefhebber. Ook het toilet met wastafel bevindt zich aan de achterzijde.
Via de achterdeur stap je de fraai aangelegde tuin op het westen in, waar je heerlijk kunt genieten van de middag- en avondzon. Achterin de tuin staat een stenen berging met elektra, perfect voor fietsen of tuingereedschap.
Op de eerste verdieping vind je twee ruime slaapkamers, beide met inbouwkasten. De badkamer is modern ingericht en voorzien van een inloopdouche, dubbele wastafel en toilet. Daarnaast is er een waskamer met aansluitingen voor wasmachine en droger, de Remeha cv-ketel (2019) en de omvormer van de zonnepanelen. Daarnaast bereik je vanuit deze kamer het riante dakterras.
De tweede etage biedt een derde slaapkamer met dakkapel en dakraam, wat zorgt voor een prettige lichtinval en extra leefruimte. Achter de knieschotten bevindt zich bergruimte en op de bergvliering heb je nog meer opbergruimte voor seizoensspullen.
De Rekerstraat ligt in een rustige, kindvriendelijke wijk op korte afstand van het centrum van Alkmaar. In de buurt vind je lokale winkels, scholen, openbaar vervoer en diverse uitvalswegen. De historische binnenstad van Alkmaar, met haar gezellige terrassen, sfeervolle grachten en levendige winkelstraten, ligt op slechts enkele minuten lopen.
Kortom, ben je op zoek naar een sfeervol, instapklaar huis op een toplocatie? Bel dan snel om een bezichtigingsafspraak in te plannen!
Bijzonderheden
- Bouwjaar 1940, woonoppervlakte 97 m²
- Energielabel B, 8 zonnepanelen (2022), vloer- en muurisolatie
- Woonkamer met erker en glas-in-loodramen, drie slaapkamers
- Voorzien van comfortabele vloerverwarming en gezellige houtkachel
- Tuin en dakterras op het westen met berging voorzien van elektra
- Oplevering in overleg
Kenmerken
Overdracht
- Laatste vraagprijs
- € 450.000 kosten koper
- Vraagprijs per m²
- € 4.639
- Status
- Verkocht
Bouw
- Soort woonhuis
- Eengezinswoning, tussenwoning
- Soort bouw
- Bestaande bouw
- Bouwjaar
- 1940
- Specifiek
- Gedeeltelijk gestoffeerd
- Soort dak
- Samengesteld dak bedekt met bitumineuze dakbedekking en pannen
Oppervlakten en inhoud
- Gebruiksoppervlakten
- Wonen
- 97 m²
- Gebouwgebonden buitenruimte
- 13 m²
- Externe bergruimte
- 8 m²
- Perceel
- 101 m²
- Inhoud
- 340 m³
Indeling
- Aantal kamers
- 5 kamers (3 slaapkamers)
- Aantal badkamers
- 1 badkamer en 1 apart toilet
- Badkamervoorzieningen
- Douche, dubbele wastafel, en toilet
- Aantal woonlagen
- 3 woonlagen
- Voorzieningen
- Glasvezelkabel, TV kabel, en zonnepanelen
Energie
- Energielabel
- Isolatie
- Dakisolatie, dubbel glas en vloerisolatie
- Verwarming
- Cv-ketel, houtkachel en gedeeltelijke vloerverwarming
- Warm water
- Cv-ketel
- Cv-ketel
- Remeha (gas gestookt combiketel uit 2019, eigendom)
Kadastrale gegevens
- ALKMAAR C 3941
- Kadastrale kaart
- Oppervlakte
- 101 m²
- Eigendomssituatie
- Volle eigendom
Buitenruimte
- Ligging
- In woonwijk
- Tuin
- Achtertuin en voortuin
- Achtertuin
- 35 m² (5,00 meter diep en 7,00 meter breed)
- Ligging tuin
- Gelegen op het noordwesten bereikbaar via achterom
- Balkon/dakterras
- Dakterras aanwezig
Bergruimte
- Schuur/berging
- Vrijstaande stenen berging
- Voorzieningen
- Elektra
Parkeergelegenheid
- Soort parkeergelegenheid
- Parkeervergunningen
Foto's 37
© 2001-2026 funda




































