
Omschrijving
Klussers opgelet! Heb jij zin aan een project, om een reeds karakteristieke maar wel volledig te renoveren woning geheel naar smaak te gaan moderniseren? Dan is dit misschien wel een klus die je graag met beide handen aanpakt. De buitenzijde heeft reeds vernieuwingen ondergaan, want naast kunststof kozijnen met HR++ beglazing zijn er 12 zonnepanelen geplaatst. Met een kenmerkende indeling beschikt de woning over een aanbouw met de keuken en een badkamer, maar in tegenstelling tot veel van deze woningen is er ook op de verdieping nog een badkamer. Niet alleen binnen, maar ook buiten kun je je heerlijk uitleven. Deze diepe tuin biedt volop privacy en tevens veel mogelijkheden om aan te leggen naar wens.
De woning is centraal gelegen waarbij je reeds tussen vele voorzieningen gelegen bent en deze ook via de rondweg gemakkelijk kunt opzoeken in de binnenstad van Almelo. Er zijn diverse supermarkten en sportverenigingen in de nabijheid, evenals winkels en het openbaar vervoer. Ook kun je het park opzoeken en zit je binnen no-time op het station. Kortom een fijne ligging met alles dicht in de buurt.
Indeling woning
Begane grond
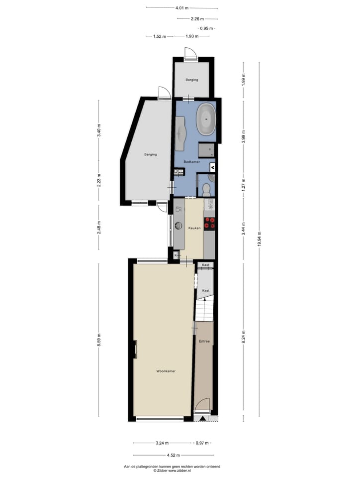
Zodra je de woning binnenstapt aan de voorzijde kom je in de diepe betegelde hal met de trapopgang naar de eerste verdieping. Aan de linkerzijde kun je via de deur de living betreden en deze is van een ruim formaat. Met de grote raampartijen aan weerszijden ontstaat er een licht geheel en het schoorsteenkanaal zou je weer in gebruik kunnen nemen, waardoor de haard een centraal punt in deze living zal zijn. Het mooie is dat je door deze afmeting zelf kunt gaan bepalen waar je de woonkamer en de eetkamer wenst te hebben. Aan de achterzijde is er middels een boogverbinding nog een gezellige hoek te betreden die je bijvoorbeeld als kast kunt gebruiken. Er is een kenmerkende indeling bij deze woning door de aanbouw aan de achterzijde waar o.a. de keuken gerealiseerd is. Deze keuken heeft een mooie afmeting en is opgesteld in 2 rechte blokken. Er is diverse inbouwapparatuur aanwezig, waarbij je kunt denken aan een kookplaat, afzuigkap, combi-oven/magnetron, koel-vriescombinatie en een vaatwasser. De raampartijen geven een heerlijke lichtinval in deze ruimte. Direct achter de keuken bevindt zich de badkamer en het afgescheiden toilet. De toilet is voorzien van een hoekfontein en de badkamer van een ligbad, wastafel met wastafelmeubel en een douche. Achter en naast de badkamer bevinden zich de aangebouwde houten bergingen die vanuit de keuken en de badkamer direct te betreden zijn en rechtstreekse toegang hebben tot de diepe tuin.
Eerste verdieping
Deze verdieping beschikt, in tegenstelling tot veel andere woningen van dit bouwjaar, over alle gemakken. Je hebt 2 slaapkamers van een mooie afmeting, waarvan de slaapkamer aan de voorzijde over de gehele breedte van de woning loopt. Van oorsprong betreft dit 2 slaapkamers, dus mocht hier de wens naar zijn dan zou hier uiteraard weer een extra slaapkamer gecreëerd kunnen worden. De slaapkamer aan de achterzijde is voorzien van een inbouwkast en ook op de overloop is een ruime inbouwkast aanwezig. Tevens is hier het gemak van een 2e badkamer die douche en toilet biedt. Alle ruimtes zijn separaat vanaf de overloop te betreden.
Tuin
Wat een heerlijke tuin kun je hier maken! De geweldige basis is er, want naast dat deze op het westen gelegen is is deze ruim en diep. Daarnaast kun je hier in alle privacy zitten en het enige wat je hier hoeft te doen is jouw droom werkelijkheid te maken. Er zijn vele mogelijkheden voor een indeling naar wens dus laat vooral jouw creativiteit hier tot uiting komen.
Informatie over de woning:
Bouwjaar: 1920
Woonoppervlakte: 99 m²
Inhoud: 410 m³
Perceeloppervlakte: 228 m²
Verwarming: Middels CV-installatie (Eigendom, Intergas, 2023)
- Perfecte uitdaging voor de klussers onder ons die van karakteristieke woningen houden;
- Voorzien van 12 zonnepanelen (lease 71,- per maand met mogelijkheid tot overname / afkoop, 2021)
- Kunststof kozijnen met HR++ beglazing;
- Centrale ligging;
- Diepe tuin met volop privacy en mogelijkheden;
- Niet alleen een badkamer op de begane grond, maar tevens op de verdieping;
- De woning wordt verkocht onder niet zelfbewoningsclausule en ouderdomsclausule;
- Bij de koop is een waarborgsom/bankgarantie vereist van 10% van de koopsom;
Kenmerken
Overdracht
- Laatste vraagprijs
- € 189.500 kosten koper
- Vraagprijs per m²
- € 1.914
- Status
- Verkocht
Bouw
- Soort woonhuis
- Eengezinswoning, geschakelde 2-onder-1-kapwoning
- Soort bouw
- Bestaande bouw
- Bouwjaar
- 1920
- Specifiek
- Gedeeltelijk gestoffeerd
- Soort dak
- Plat dak
Oppervlakten en inhoud
- Gebruiksoppervlakten
- Wonen
- 99 m²
- Overige inpandige ruimte
- 16 m²
- Perceel
- 228 m²
- Inhoud
- 410 m³
Indeling
- Aantal kamers
- 4 kamers (2 slaapkamers)
- Aantal badkamers
- 2 badkamers en 1 apart toilet
- Badkamervoorzieningen
- Inloopdouche, ligbad, wastafel, wastafelmeubel, douche, en toilet
- Aantal woonlagen
- 2 woonlagen
- Voorzieningen
- Natuurlijke ventilatie, rookkanaal, en zonnepanelen
Energie
- Energielabel
- Isolatie
- Dakisolatie en HR-glas
- Verwarming
- Cv-ketel
- Warm water
- Cv-ketel
- Cv-ketel
- Intergas (gas gestookt uit 2023, eigendom)
Kadastrale gegevens
- AMBT ALMELO H 9730
- Kadastrale kaart
- Oppervlakte
- 228 m²
- Eigendomssituatie
- Volle eigendom
Buitenruimte
- Ligging
- Aan rustige weg
- Tuin
- Achtertuin en voortuin
- Achtertuin
- 108 m² (25,00 meter diep en 4,30 meter breed)
- Ligging tuin
- Gelegen op het westen bereikbaar via achterom
Bergruimte
- Schuur/berging
- Aangebouwde houten berging
- Voorzieningen
- Elektra
Parkeergelegenheid
- Soort parkeergelegenheid
- Openbaar parkeren
Foto's 20
© 2001-2026 funda



















