Dit huis op Funda: https://www.funda.nl/detail/koop/almelo/huis-de-wetstraat-7/43204415/

De Wetstraat 77606 CX AlmeloOssenkoppelerhoek Oost
€ 204.500 k.k.
Omschrijving
Wat een verrassende tussenwoning! Uitermate geschikt voor de starter!
Kamphuis Makelaars Woning Check:
Wat direct opvalt: de verrassend ruime woonkamer;
Wat prettig voelt: een bruikbare openhaard;
Wat handig is: het huis is geheel voorzien van kunststof kozijnen;
Wat dit huis typeert: de combinatie van comfort en oude details.
Wat gaaf! Omschrijving van het huis Kom je snel kennis maken met jouw nieuwe huis?!
Jouw nieuwe woning staat aan de rand van het Almelose stadscentrum. Voorzieningen zoals winkels, station en snelweg in de directe nabijheid! Wat zeg je daarvan?!
Video:
Redenen genoeg om uitgebreid kennis te maken met dit toffe huis!
Kijk bijvoorbeeld mee tijdens onze live video! Met deze video die we live voor je streamen op Facebook kun je direct een eerste indruk krijgen van jouw nieuwe huis. Uiteraard hebben we deze video ook opgeslagen op deze site. Onder het kopje video op deze site kun je hem terug kijken zo vaak als je wilt.
Zelf binnen kijken? Doen! Onze makelaars staan voor je klaar. Bel, mail of app voor jouw persoonlijke afspraak met ons.
Het huis:
Na bijna 30 jaar is het voor de huidige eigenaren tijd om een stapje kleiner te gaan wonen. Deze ruime woning met een fijne tuin en prettige locatie wordt met pijn in het hart achtergelaten. Dit brengt de kans voor de starter om hier zijn eigen plek te vinden met 3 slaapkamers, een ruime keuken in een sfeervol huis!
Indeling:
Begane grond:
Hal/entree en toilet met fonteintje. De ruime woonkamer beschikt over een sfeervolle schouw met bruikbare openhaard. De praktische provisiekast beschikt tevens over een kelderruimte. De keuken bevindt zich aan de achterzijde en kent een hoekopstelling en directe toegang tot de tuin. Een fijne overkapping zorgt voor een droge toegang van de aangebouwde stenen berging met hier de C.V.-opstelplaats (Remeha Avanta, 2015, eigendom). De ruime tuin kent zijn eigen ontsluiting via de achterzijde van het perceel.
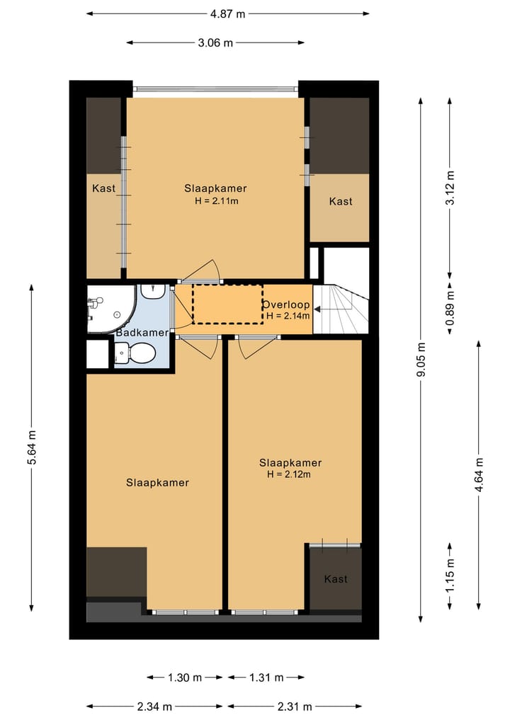
1e verdieping:
Overloop, drie slaapkamers en badkamer voorzien van douchecabine, wastafel en toilet.
2e verdieping:
Via vlizotrap te bereiken bergzolder.
Hypotheek:
Wanneer maken we een afspraak om dit fraaie huis te bekijken samen?!
Met een duidelijk financieel plaatje voorkom je teleurstellingen en sta je sterker in de onderhandelingen / biedproces.
Een goed en onafhankelijk hypotheekadviesgesprek geeft snel inzicht. Wij brengen je graag in contact met Cafer Kaplan of Dorien Sanderink van Univé Oost.
Aankoop begeleiding:
Wij zijn de makelaar van verkoper. Wij adviseren je om je eigen makelaar mee te nemen voor jouw belangenbehartiging bij de aankoop van je toekomstige woonhuis!
Kenmerken
Overdracht
- Aangeboden sinds
- Aanvaarding
- In overleg
- Vraagprijs
- € 204.500 kosten koper
- Vraagprijs per m²
- € 2.087
- Status
- Beschikbaar
Bouw
- Soort woonhuis
- Eengezinswoning, tussenwoning
- Soort bouw
- Bestaande bouw
- Bouwjaar
- 1930
- Soort dak
- Zadeldak bedekt met pannen
Oppervlakten en inhoud
- Gebruiksoppervlakten
- Wonen
- 98 m²
- Overige inpandige ruimte
- 18 m²
- Gebouwgebonden buitenruimte
- 6 m²
- Externe bergruimte
- 7 m²
- Perceel
- 165 m²
- Inhoud
- 283 m³
Indeling
- Aantal kamers
- 6 kamers (3 slaapkamers)
- Aantal badkamers
- 1 badkamer en 1 apart toilet
- Badkamervoorzieningen
- Douche, toilet, en wastafel
- Aantal woonlagen
- 2 woonlagen, een vliering, en een kelder
- Voorzieningen
- Glasvezelkabel, natuurlijke ventilatie, rookkanaal, en TV kabel
Energie
- Energielabel
- Isolatie
- Dakisolatie
- Verwarming
- Cv-ketel
- Warm water
- Cv-ketel
- Cv-ketel
- Remeha Avanta (gas gestookt combiketel uit 2015, eigendom)
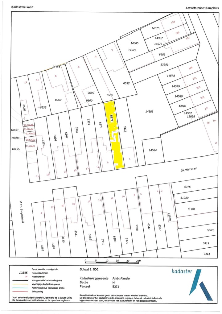
Kadastrale gegevens
- AMBT-ALMELO H 5371
- Kadastrale kaart
- Oppervlakte
- 165 m²
Buitenruimte
- Ligging
- Aan rustige weg en in woonwijk
- Tuin
- Achtertuin
- Achtertuin
- 75 m² (15,00 meter diep en 5,00 meter breed)
- Ligging tuin
- Gelegen op het noorden bereikbaar via achterom
Bergruimte
- Schuur/berging
- Aangebouwde stenen berging
- Voorzieningen
- Elektra en verwarming
Parkeergelegenheid
- Soort parkeergelegenheid
- Openbaar parkeren
Foto's 36
© 2001-2026 funda



































