Dit huis op Funda: https://www.funda.nl/detail/koop/almelo/huis-nijreesweg-47/43085005/

Nijreesweg 477609 PA AlmeloNijrees
€ 847.000 v.o.n.
Omschrijving
Op de locatie waar nu nog de oude woonboerderij staat is er ruimte voor de bouw van twee fantastische vrijstaande woningen op kavels van 545m2 aan de Poortmanstraat en 508m2 aan de Nijreesweg.
Te midden van de oude bomen en op een steenworp van het Nijreesbos en de singels kun je je eigen invulling kiezen voor jouw nieuwe huis. Om je alvast houvast te geven hebben we twee prachtige woningen laten ontwikkelen.
Kijk je mee bij jouw nieuwe huis ?! Heerlijk ruim met een oppervlakte van bijna 180m2! Karakteristieke lijnen, prachtige erker en gevel details. Jouw nieuwe huis wordt uniek.
Op een uitstekende locatie in het plan Nijrees Noord, op een heerlijk perceel van 508m2 wordt deze fraaie vrijstaande woning gebouwd. Een heerlijke woonomgeving waar luxe en comfort samen komen. Welkom aan Nijreesweg 47 in Almelo: een geweldige woning, ontworpen door 4D Architecten, waar jij nog alle inspraak in hebt.
Deze zeer luxe en hoogwaardig ontworpen woning, wordt gebouwd met luxe en duurzame materialen. Het uitgebreide bestek is evenals de overige gegevens zoals bodemonderzoek, bestemmingsplan ed uiteraard beschikbaar.
De woning beschikt over 3 royale slaapkamers, een eigen oprit met garage, een labeling van minimaal A++++, vloerverwarming, uitstekende isolatie, een warmtepomp en een boiler. Dat is nog eens luxe en energiezuinig!
Het standaard ontwerp is al luxe en compleet zo heb je de beschikking over een ruim sanitair en tegel stelposten en kan je de keuken geheel naar eigen wens invullen en ontwerpen.
Deze woning en Poortmanstraat 12 liggen direct achter elkaar en horen bij hetzelfde plan, jullie worden immers buren! Poortmanstraat 12 hebben we een ontwerp van Weghorst Architectuur gekozen. Uiteraard is net als deze woning, veel vrijheid om het huis helemaal naar eigen smaak in te richten. Het ontwerp van Weghorst Architectuur kan ook op deze kavel worden gerealiseerd. Of vice versa.
Ben je geïnteresseerd in één van beide woningen of benieuwd naar de verschillen? Neem gerust contact op voor meer informatie.
De ligging is uitstekend: de A35 en A1 zijn snel bereikbaar, en voorzieningen zoals de supermarkt, het stadion, de woonboulevard, het treinstation en het bos bevinden zich op korte afstand.
Kenmerken:
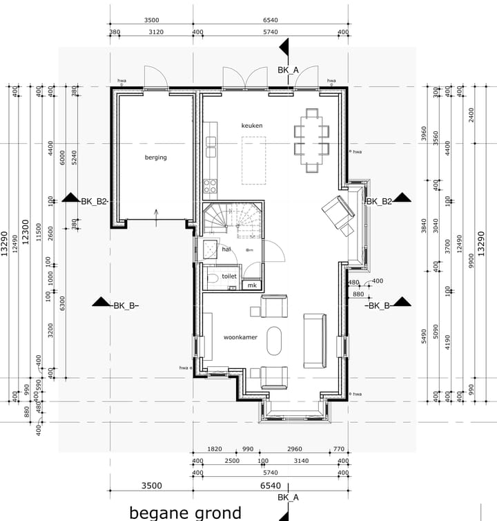
Woonoppervlak van ca. 150 m², verdeeld over drie verdiepingen;
Ruime woonkamer en open woonkeuken met directe toegang tot de tuin via openslaande deuren;
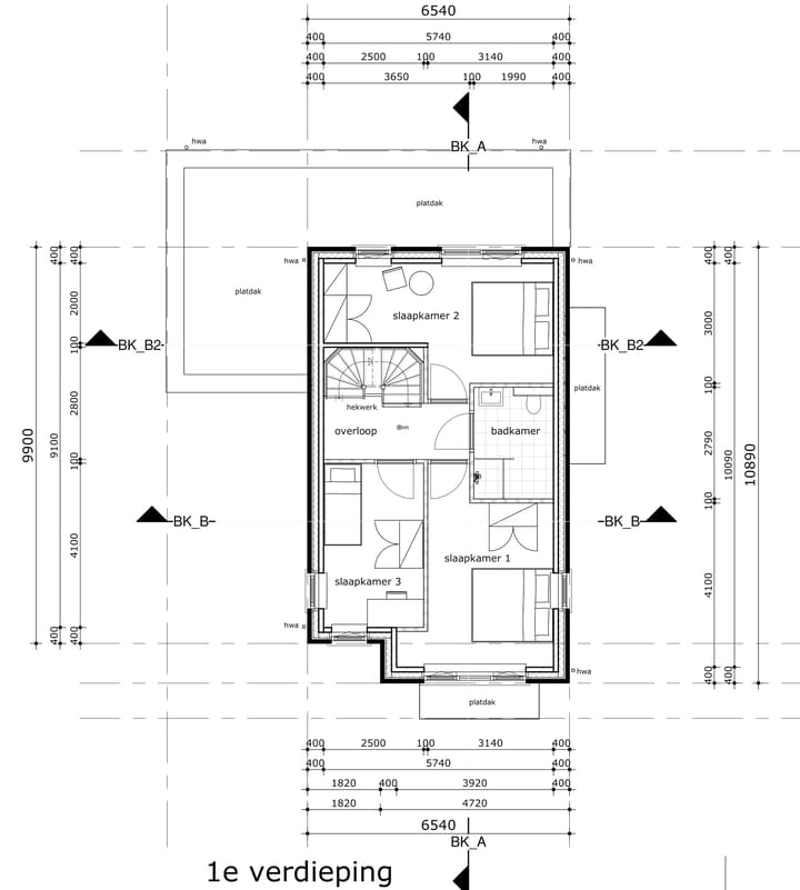
3 royale slaapkamers en een complete badkamer op de eerste verdieping;
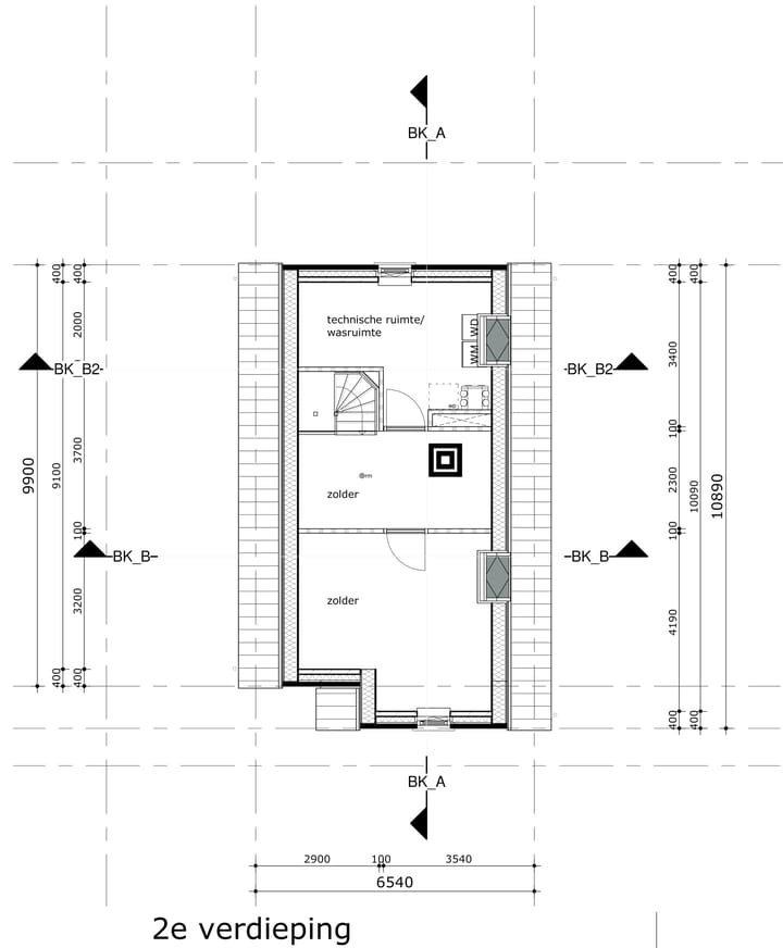
Volledig geïsoleerde zolderverdieping, ideaal als extra slaapkamer, werkkamer of hobbyruimte;
Ruime garage via buiten te bereiken.
Indeling:
Begane grond: entree met hal, meterkast, modern toilet met fontein, ruime woonkamer met erker, open keuken met openslaande deuren naar de tuin, aangebouwde garage via buiten bereikbaar;
Eerste verdieping: overloop, drie royale slaapkamers, complete badkamer met toilet, wastafel en douche;
Zolder: vaste trap naar ruime zolderkamer en technische ruimte/wasruimte.
Overige pluspunten:
Keuken, badkamer en vloerafwerking naar eigen smaak te realiseren;
Onderhoudsarme kunststenen vensterbanken en dorpels;
Ruim perceel van 508m2.
Bouwkwaliteit & Comfort:
Energiezuinig en duurzaam dankzij vloerverwarming (begane grond + verdieping) en luchtwarmtepomp met boiler;
Duurzaam hardhouten kozijnen met dubbele kierdichting;
Volledig geïsoleerde vloer, gevels en dak volgens BENG-normen;
HR++ beglazing op de begane grond op de eerste verdieping.
Neem voor meer informatie gerust contact met ons op !
Kenmerken
Overdracht
- Aangeboden sinds
- Aanvaarding
- In overleg
- Vraagprijs
- € 847.000 vrij op naam
- Vraagprijs per m²
- € 4.785
- Status
- Beschikbaar
Bouw
- Soort woonhuis
- Eengezinswoning, vrijstaande woning
- Soort bouw
- Nieuwbouw
- Bouwjaar
- 2025
- Soort dak
- Zadeldak bedekt met pannen
- Keurmerken
- SWK Garantiecertificaat
Oppervlakten en inhoud
- Gebruiksoppervlakten
- Wonen
- 177 m²
- Overige inpandige ruimte
- 16 m²
- Perceel
- 508 m²
- Inhoud
- 695 m³
Indeling
- Aantal kamers
- 7 kamers (3 slaapkamers)
- Aantal badkamers
- 1 badkamer en 1 apart toilet
- Badkamervoorzieningen
- Douche, dubbele wastafel, en toilet
- Aantal woonlagen
- 2 woonlagen en een zolder
- Voorzieningen
- Balansventilatie, dakraam, glasvezelkabel, mechanische ventilatie, natuurlijke ventilatie, en zonnepanelen
Energie
- Energielabel
- Isolatie
- Volledig geïsoleerd
- Verwarming
- Warmtepomp
- Warm water
- Elektrische boiler
Kadastrale gegevens
- AMBT-ALMELO G 4589
- Kadastrale kaart
- Oppervlakte
- 508 m² (deelperceel)
Buitenruimte
- Ligging
- In woonwijk
- Tuin
- Tuin rondom
Garage
- Soort garage
- Aangebouwde stenen garage
- Capaciteit
- 1 auto
Parkeergelegenheid
- Soort parkeergelegenheid
- Op eigen terrein
Foto's 12
© 2001-2026 funda











