Dit huis op Funda: https://www.funda.nl/detail/koop/almelo/huis-sweelincklaan-19/43208540/

Sweelincklaan 197604 CS AlmeloAalderinkshoek Noordoost
€ 295.000 k.k.
Omschrijving
Wat een fraaie starterswoning!
Kamphuis Makelaars Woning Check:
Wat direct opvalt: het vrije uitzicht aan voorzijde;
Wat prettig voelt: comfortabele vloerverwarming;
Wat handig is: de nieuwe keuken;
Wat dit huis typeert: de ruimte met vier ruime slaapkamers.
Wat gaaf! Rust, ruimte en comfort, hier komt het samen! Kom je snel kennis maken met jouw nieuwe huis?!
Jouw nieuwe woning staat in de Aalderinkshoek, een fijne wijk in onze mooie stad met volop voorzieningen en in jouw geval ook nog een weids en groen uitzicht! Wat zeg je daarvan?!
Video:
Redenen genoeg om uitgebreid kennis te maken met dit toffe huis!
Kijk bijvoorbeeld mee tijdens onze live video! Met deze video die we live voor je streamen op Facebook kun je direct een eerste indruk krijgen van jouw nieuwe huis. Uiteraard hebben we deze video ook opgeslagen op deze site. Onder het kopje video op deze site kun je hem terug kijken zo vaak als je wilt.
Zelf binnen kijken? Doen! Onze makelaars staan voor je klaar. Bel, mail of app voor jouw persoonlijke afspraak met ons.
Het huis:
Deze verrassend ruime woning is al grotendeels voor je gemoderniseerd door de huidige eigenaresse. Een nieuwe keuken, heerlijke vloerverwarming en HR++-glas maken jouw nieuwe woning uiterst comfortabel. Het is heerlijk vrij gelegen en toch op loopafstand van voorzieningen als supermarkt, (basis)school en winkelcentrum. Ook het centrum is op enkele minuten fietsen!
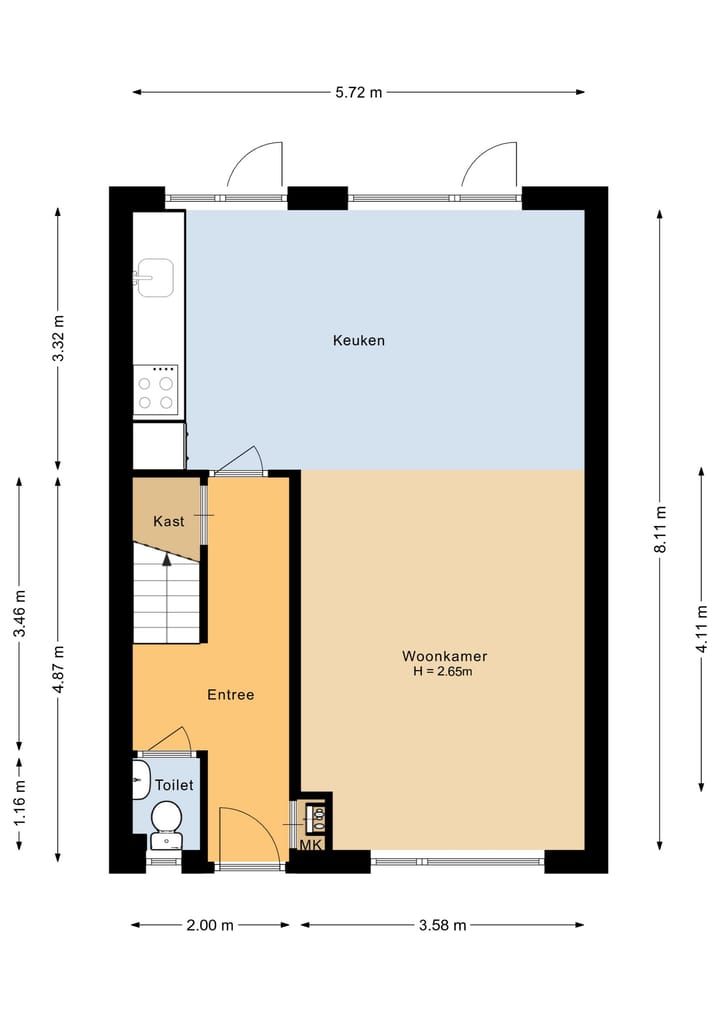
Indeling:
Begane grond: hal/entree, provisiekast en toilet met fonteintje. De ruime open keuken beschikt over een nieuwe keuken en directe toegang naar de tuin. De woonkamer bevindt zich aan de voorzijde en kent een prachtig uitzicht over het charmante hertenkamp! De begane grond kenmerkt zich door de fijne vloerverwarming en grote raampartijen.
1e verdieping: overloop, drie ruime slaapkamers en riante badkamer voorzien van douchehoek, wastafel en tweede toilet. Een tweede vaste trap brengt je naar de...
2e verdieping: overloop met bergruimte en wasmachine en -drogeraansluiting alsmede C.V.-opstelplaats (Intergas, 2021, eigendom) en fraaie vierde slaapkamer voorzien van dakkapel.
Hypotheek:
Wanneer maken we een afspraak om dit fraaie huis te bekijken samen?!
Met een duidelijk financieel plaatje voorkom je teleurstellingen en sta je sterker in de onderhandelingen / biedproces.
Een goed en onafhankelijk hypotheekadviesgesprek geeft snel inzicht. Wij brengen je graag in contact met Cafer Kaplan of Dorien Sanderink van Univé Oost.
Aankoop begeleiding:
Wij zijn de makelaar van verkoper. Wij adviseren je om je eigen makelaar mee te nemen voor jouw belangenbehartiging bij de aankoop van je toekomstige woonhuis!
Overeenkomt / informatie:
Download de uitgebreide brochure voor alle details en info via deze site, ook het meetrapport van jouw nieuwe huis stellen we je graag ter hand. Wist je trouwens dat er pas een overeenkomst is gesloten wanneer de afspraken schriftelijk zijn vastgelegd tussen koper en verkoper. In deze overeenkomst zal een waarborgsom of bankgarantie van 10% van de koopsom dienen te worden gesteld door de koper.
Onze uitingen zijn met de grootste zorg en zorgvuldigheid samengesteld. Het interne Kamphuis Makelaars kwaliteitskeurmerk is hierop van toepassing en sluit foutjes vrijwel uit. Maar.... eventuele onjuistheden geven geen rechten of anderszins aanspraken. Wij adviseren je dan ook alle informatie te controleren en zo nodig na te meten. Aan deze aanbieding of onze overige uitingen op Facebook, Instagram, Tik Tok of gelijkwaardig kunnen geen rechten worden ontleend.
Kenmerken
Overdracht
- Aangeboden sinds
- Aanvaarding
- In overleg
- Vraagprijs
- € 295.000 kosten koper
- Vraagprijs per m²
- € 2.500
- Status
- Beschikbaar
Bouw
- Soort woonhuis
- Eengezinswoning, tussenwoning
- Soort bouw
- Bestaande bouw
- Bouwjaar
- 1967
- Soort dak
- Zadeldak bedekt met pannen
Oppervlakten en inhoud
- Gebruiksoppervlakten
- Wonen
- 118 m²
- Externe bergruimte
- 10 m²
- Perceel
- 155 m²
- Inhoud
- 296 m³
Indeling
- Aantal kamers
- 6 kamers (4 slaapkamers)
- Aantal badkamers
- 1 badkamer en 1 apart toilet
- Badkamervoorzieningen
- Douche, toilet, en wastafel
- Aantal woonlagen
- 3 woonlagen
- Voorzieningen
- Glasvezelkabel, natuurlijke ventilatie, en TV kabel
Energie
- Energielabel
- Isolatie
- Dubbel glas en vloerisolatie
- Verwarming
- Cv-ketel en gedeeltelijke vloerverwarming
- Warm water
- Cv-ketel
- Cv-ketel
- Remeha (gas gestookt combiketel uit 2021, eigendom)
Kadastrale gegevens
- AMBT-ALMELO I 4142
- Kadastrale kaart
- Oppervlakte
- 155 m²
- Eigendomssituatie
- Volle eigendom
Buitenruimte
- Ligging
- Aan park, aan rustige weg, in woonwijk en vrij uitzicht
- Tuin
- Achtertuin en voortuin
- Achtertuin
- 66 m² (11,00 meter diep en 6,00 meter breed)
- Ligging tuin
- Gelegen op het noordoosten bereikbaar via achterom
Bergruimte
- Schuur/berging
- Vrijstaande stenen berging
- Voorzieningen
- Elektra
- Isolatie
- Geen isolatie
Parkeergelegenheid
- Soort parkeergelegenheid
- Openbaar parkeren
Foto's 34
© 2001-2026 funda

































