
Omschrijving
Staat Makelaars biedt aan: Olivier van Noortstraat 22E in Almere Poort. Een modern en licht 3-kamer appartement in Almere-Poort. Deze woning wordt aangeboden middels een bieden-vanaf-prijs.
Wonen op een van de mooiste en gezelligste plekken van Almere-Poort? Dit moderne en lichte 3-kamer appartement op de tweede verdieping van een kleinschalig appartementencomplex biedt alles wat u zoekt. Met een woonoppervlakte van 56m², een zonnig balkon, een eigen berging en een eigen privé parkeerplek, hoeft u alleen nog maar uw koffers te pakken!
Indeling van het appartement:
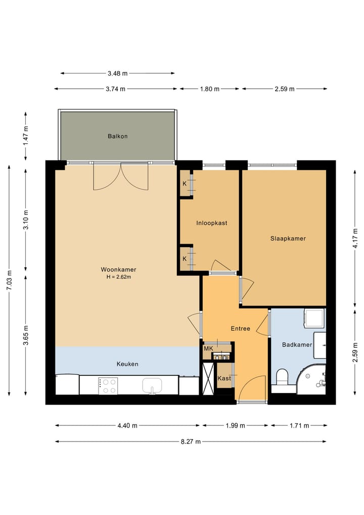
Via de afgesloten entree op de begane grond, met een bellentableau en brievenbussen, bereikt u de lift en het trappenhuis. Op de eerste verdieping komt u via de voordeur binnen in de hal, waar direct het vele lichtinval en het moderne afwerkingsniveau opvalt. Vanuit hier heeft u toegang tot alle vertrekken.
Aan de linkerzijde bevindt zich de meterkast met voldoende groepen en aardlekschakelaars, evenals een glasvezelaansluiting.
Aan de rechterzijde treft u de de badkamer, die is voorzien van een ruime douche met thermostaatkraan, een vaste wastafel met meubel, toilet en is volledig betegeld.
De twee slaapkamers bevinden zich aan de voorzijde van het appartement en geven voldoende ruimte, veel daglicht en hebben een nette afwerking. Vervolgens betreedt u de ruime, lichte woonkamer met open keuken. Deze fijne leefruimte is afgewerkt met een moderne laminaatvloer en heeft grote raampartijen, waardoor er veel natuurlijk licht binnenvalt.
De open keuken is modern ingericht en voorzien van een 4-pits inductie kookplaat, een RVS afzuigschouw (inbouw), een vaatwasser, een spoelbak, een koelkast met vriesvak, magnetron en een oven. Er is voldoende opbergruimte dankzij de diverse lades- en kasten. Vanuit de woonkamer heeft u via de openslaande deuren toegang tot het heerlijke balkon op het noordoosten, een heerlijke plek om van de zon te genieten.
Ligging en omgeving:
Het appartement is gelegen in het gewilde Europakwartier, een kindvriendelijke en rustige buurt. Op loopafstand vindt u diverse winkels, speciaalzaken en supermarkten, waaronder Albert Heijn. Ook restaurants, apotheken en andere voorzieningen zijn binnen handbereik.
Voor ontspanning en recreatie kunt u terecht in het nabijgelegen Cascadepark en Homeruspark. Station Almere Poort ligt op korte afstand, waardoor u binnen enkele minuten in Almere Centrum bent. De A6 en A1 zorgen voor een snelle verbinding met Amsterdam en andere steden.
Berging en parkeren:
Het appartement beschikt over een eigen privéberging op de begane grond, ideaal voor extra opslag. Daarnaast heeft u een eigen parkeerplek.
Bijzonderheden:
- Bieden vanaf prijs: € 350.000,- kosten koper
- Bouwjaar: 2018
- Energielabel A
- Woonoppervlakte: 56m² (NEN2580 meetrapport aanwezig)
- Zonnig balkon van ruim 5m² op het noordoosten
- Kunststof kozijnen met HR++ beglazing
- Verwarming en warm water via stadsverwarming
- Actieve en gezonde VvE
- Servicekosten: € 115,82 per maand
- Lift aanwezig
Bent u enthousiast? Maak dan snel een afspraak voor een bezichtiging. Wij laten u dit prachtige appartement graag zien!
Kenmerken
Overdracht
- Laatste vraagprijs
- € 350.000 kosten koper
- Vraagprijs per m²
- € 6.140
- Status
- Verkocht
- Bijdrage VvE
- € 115,82 per maand
Bouw
- Soort appartement
- Portiekflat
- Soort bouw
- Bestaande bouw
- Bouwjaar
- 2017
Oppervlakten en inhoud
- Gebruiksoppervlakten
- Wonen
- 57 m²
- Gebouwgebonden buitenruimte
- 5 m²
- Inhoud
- 187 m³
Indeling
- Aantal kamers
- 3 kamers (2 slaapkamers)
- Aantal badkamers
- 1 badkamer
- Badkamervoorzieningen
- Douche, toilet, en wastafelmeubel
- Aantal woonlagen
- 1 woonlaag
- Voorzieningen
- Glasvezelkabel en mechanische ventilatie
- Gelegen op
- 1e woonlaag
Energie
- Energielabel
- Isolatie
- Dubbel glas en volledig geïsoleerd
- Verwarming
- Stadsverwarming
- Warm water
- Stadsverwarming
Kadastrale gegevens
- ALMERE W 2894
- Kadastrale kaart
- Eigendomssituatie
- Volle eigendom
Buitenruimte
- Ligging
- Aan rustige weg, in woonwijk en vrij uitzicht
Bergruimte
- Schuur/berging
- Box
- Voorzieningen
- Elektra
Parkeergelegenheid
- Soort parkeergelegenheid
- Op eigen terrein en openbaar parkeren
VvE checklist
- Inschrijving KvK
- Ja
- Jaarlijkse vergadering
- Ja
- Periodieke bijdrage
- Ja (€ 115,82 per maand)
- Reservefonds aanwezig
- Ja
- Onderhoudsplan
- Ja
- Opstalverzekering
- Ja
Foto's 34
© 2001-2026 funda

































