
Omschrijving
voor meer info zie paulkleestraat134.nl
De ruimte van een eengezinswoning met de gemakken van een appartement! Op een schitterende plek in Almere Stad gelegen ruime 5-kamer maisonnette met balkon, zonnige tuin, weids uitzicht en veel privacy!
Let op! Deze woning wordt aangeboden met een zg. “bieden vanaf” prijs.
Enkele kenmerken van deze bijzondere woning:
- Gelegen op bijzondere locatie in Almere stad met een prachtig uitzicht;
- Supermarkt, scholen, openbaar vervoer en NS station in de directe omgeving aanwezig;
- Heerlijke tuin én een royaal balkon (8m2) op het zuidwesten;
- Inbouwkeuken v.v. diverse apparatuur;
- Lichte woonkamer met prachtig uitzicht;
- 3 slaapkamers op de verdieping + tuin-/werk-/slaapkamer op de begane grond
- Moderne badkamer met ruime inloopdouche;
- Apart 2e toilet op de slaapverdieping;
- Woonoppervlakte 120m2 + berging 8m2, inhoud ca. 370 m3;
- Gezonde en actieve Vereniging van Eigenaren Aquarel 1;
- Bijdrage V.v.E. € 190,00 per maand.
- Oplevering in overleg.
Deze bijzondere 3-laagse woning maakt onderdeel uit van het eveneens bijzondere appartementencomplex Aquarel dat uitkijkt op de Hoge Vaart. De locatie is ideaal met op korte afstand openbaar vervoer, wandel/bosgebieden, scholen, kinderopvang, supermarkt alsmede NS station Parkwijk. Met de auto bent u overigens in enkele minuten op de A6 of A27.
Indeling
De entree van de woning is gelegen op de eerste verdieping en bereikbaar via de trap op het talud aan de voorzijde of vanuit de centrale hal met lift, brievenbussen en belplateau. Tevens is hier de toegang tot de gang met de bergingen.
Eerste verdieping
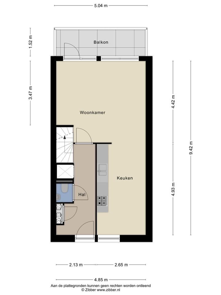
Ruime hal met meterkast, toilet (uitgevoerd met zwevend closet en fonteintje) en toegang tot de ruime woonkamer met fantastisch uitzicht over groen en water. Vanuit de woonkamer heeft u toegang tot het ruime balkon op het zuidwesten. De keuken bevindt zich aan de voorzijde en is uitgevoerd met een inbouwkeuken in rechte opstelling v.v. diverse apparatuur wo. een magnetron, oven, vaatwasser, keramische kookplaat en afzuigschouw (recirculatie). De vloeren in het gehele appartement zijn v.v. laminaat en de wanden zijn afgewerkt met spuitwerk. Via de trap in de hal bereikt u de tweede verdieping. Er is in de woonkamer tevens een trap naar de begane grond.
Tweede verdieping
Ruime overloop met 3 slaapkamers, badkamer, aparte toilet (v.v. een zwevend closet en fonteintje) en een wasruimte met het mechanische ventilatiesysteem en de wasmachine-/drogeraansluitingen. De hoofdslaapkamer is over de gehele breedte aan de voorzijde gelegen. De 2 andere slaapkamers zijn aan de achterzijde gelegen. De moderne badkamer beschikt over een ruime inloopdouche, wastafelmeubel, opbergkast en betegeling tot het plafond.
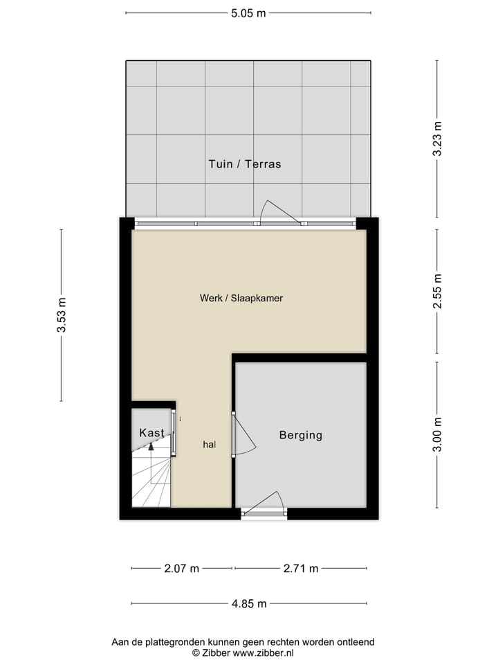
Begane grond
Hier bevindt zich een kleine hal met toegang tot de ruime en lichte tuinkamer, ideaal als werk-/studeer-/slaapkamer of kantoor aan huis met deur naar de tuin. De tuin (ca. 16m2) is gelegen op het zuidwesten en biedt veel privacy door het bovengelegen balkon. De tuin grenst direct aan een brede groenstrook. Vanuit de hal heeft u tevens toegang tot de grote inpandige berging (8m2) met deur naar de centrale hal van het complex.
Kortom; een zeer ruime 3-laagse woning met tuin en alle gemakken van een appartement!
Kenmerken
Overdracht
- Laatste vraagprijs
- € 375.000 kosten koper
- Vraagprijs per m²
- € 3.125
- Status
- Verkocht
- Bijdrage VvE
- € 190,00 per maand
Bouw
- Soort appartement
- Maisonnette (appartement)
- Soort bouw
- Bestaande bouw
- Bouwjaar
- 2003
- Keurmerken
- Energie Prestatie Advies
Oppervlakten en inhoud
- Gebruiksoppervlakten
- Wonen
- 120 m²
- Overige inpandige ruimte
- 8 m²
- Gebouwgebonden buitenruimte
- 8 m²
- Inhoud
- 370 m³
Indeling
- Aantal kamers
- 5 kamers (4 slaapkamers)
- Aantal badkamers
- 1 badkamer en 2 aparte toiletten
- Badkamervoorzieningen
- Inloopdouche en wastafelmeubel
- Aantal woonlagen
- 3 woonlagen
- Gelegen op
- 1e woonlaag
Energie
- Energielabel
- A
- Isolatie
- Volledig geïsoleerd
- Verwarming
- Stadsverwarming
- Warm water
- Stadsverwarming
Kadastrale gegevens
- ALMERE P 7850
- Kadastrale kaart
- Eigendomssituatie
- Volle eigendom
Buitenruimte
- Ligging
- Aan rustige weg, in woonwijk en vrij uitzicht
- Tuin
- Achtertuin
- Achtertuin
- 16 m² (3,23 meter diep en 5,05 meter breed)
- Ligging tuin
- Gelegen op het zuidwesten
- Balkon/dakterras
- Balkon aanwezig
Bergruimte
- Schuur/berging
- Inpandig
- Voorzieningen
- Elektra
- Isolatie
- Volledig geïsoleerd
Parkeergelegenheid
- Soort parkeergelegenheid
- Openbaar parkeren
VvE checklist
- Inschrijving KvK
- Ja
- Jaarlijkse vergadering
- Ja
- Periodieke bijdrage
- Ja (€ 190,00 per maand)
- Reservefonds aanwezig
- Ja
- Onderhoudsplan
- Ja
- Opstalverzekering
- Ja
Foto's 54
© 2001-2025 funda





















































