Dit huis op Funda: https://www.funda.nl/detail/koop/almere/huis-auguste-comteweg-106/43700132/

Omschrijving
Unieke kans: Speelse nieuwbouwwoning aan de Auguste Comteweg 106, Almere!
Welkom in Oosterwold, Almere: een bijzondere en landelijke woonwijk waar rust, ruimte, en vrijheid centraal staan. In dit gebied, bekend om zijn duurzame en ecologische benadering, krijgt u de kans om te wonen op een manier die in harmonie is met de natuur, zonder in te boeten op modern woongenot. Voor de woning aan de Auguste Conteweg 106 is de omgevingsvergunning reeds afgegeven, waardoor u direct kunt starten met de bouw. U koopt de kavel rechtstreeks van de eigenaar en sluit een aannemingsovereenkomst met de door verkoper geselecteerde aannemer voor de bouw, waardoor u snel en eenvoudig zorgeloos kunt beginnen. Alles is al geregeld!
Dit allemaal voor de totaalprijs van € 375.000,-- kosten koper.
Wat is inbegrepen?
Architectonisch ontwerp en tekeningen – Professioneel ontworpen voor optimaal wooncomfort.
Constructieberekeningen en tekeningen – Een solide basis voor een veilige en duurzame woning.
BBL/BENG en NPG berekeningen – Voldoet aan de nieuwste regelgeving en energieprestatie-eisen.
Wat is exclusief?
Kwaliteitsborger – Dit dient u zelf te regelen.
Waarom kiezen voor Oosterwold? Oosterwold is een bijzonder gebied waar bewoners zelf invulling geven aan de indeling en het gebruik van hun kavel. Doorgaans geldt er een verplichting tot stadslandbouw, maar bij deze woning is er dankzij een uitgevoerde functieruil nauwelijks verplichting voor stadslandbouw. Dit betekent dat u kunt genieten van het landelijke karakter van Oosterwold zonder een grote tuin of landbouwgrond te hoeven onderhouden. Deze unieke setting biedt volop vrijheid, rust, en een prachtig uitzicht op de omringende natuur.
De woning ligt op loopafstand van Winkelcentrum Oosterwold met een compleet aanbod: Albert Heijn, Aldi, Kruidvat, Action, Gall & Gall én bloemenzaak Actief – alles wat u nodig heeft om de hoek!
Over de woning
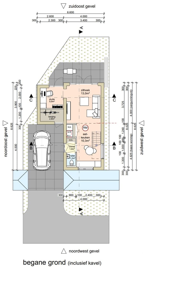
Deze speelse woning, ontworpen door de Almeerse architect Oebele Hoekstra, combineert stijl met praktisch wooncomfort. Met een woonoppervlak van 49 m² is het een compacte, maar slim ingedeelde woning waarin u zich direct thuis voelt. De begane grond biedt een sfeervolle woonkamer met een eetkeuken. Geniet van het vrije uitzicht vanuit de woonkamer en ervaar het ultieme binnen-buitengevoel dat deze landelijke locatie biedt. De woning wordt gebouwd met milieuvriendelijke hoogwaardige materialen. De woning beschikt over zonnepanelen met een omvormer met laadregelaar. Dus voorbereid op een toekomst met een eventuele thuisbatterij. De verwarming wordt verzorgd door een warmtepomp met vloerverwarming die ook kan koelen. Keuken, sanitair en betegeling kunt u helemaal naar eigen smaak inrichten. Tenslotte wordt het kozijnwerk uitgevoerd in antraciet kunststof met HR++ glas.
Indelingsopties
De woning biedt flexibele indelingsmogelijkheden. Op de begane grond kan een extra slaapkamer worden gerealiseerd of kan de ruimte worden ingericht als study met een handige inpandige berging. Op de verdieping bevindt zich een ruime loft/slaapverdieping met een moderne badkamer, uitgerust met de aansluitingen voor douche en wastafel, perfect voor wie houdt van een open en lichte ruimte.
Zorgeloos nieuwbouwen op een prachtige locatie
Dit is de ideale woning voor wie op zoek is naar een landelijke leefomgeving met veel vrijheid, maar zonder de zorg van een grote tuin. Bouw uw droomhuis op een unieke locatie in Oosterwold, waar modern wonen samenkomt met de natuur en duurzaamheid. Aarzel niet om contact op te nemen voor meer informatie over deze prachtige nieuwbouwwoning aan de Auguste Conteweg 106.
Grijp uw kans en beleef Oosterwold!
Kenmerken
Overdracht
- Oorspronkelijke vraagprijs
- € 400.000 vrij op naam
- Laatste vraagprijs
- € 375.000 kosten koper
- Vraagprijs per m²
- € 7.653
- Status
- Verkocht
Bouw
- Soort woonhuis
- Eengezinswoning, vrijstaande woning
- Soort bouw
- Bestaande bouw
- Bouwjaar
- 2025
- Soort dak
- Lessenaardak bedekt met bitumineuze dakbedekking
Oppervlakten en inhoud
- Gebruiksoppervlakten
- Wonen
- 49 m²
- Perceel
- 155 m²
- Inhoud
- 160 m³
Indeling
- Aantal kamers
- 3 kamers (2 slaapkamers)
- Aantal badkamers
- 1 badkamer en 1 apart toilet
- Badkamervoorzieningen
- Douche en wastafel
- Aantal woonlagen
- 2 woonlagen
- Voorzieningen
- Glasvezelkabel
Energie
- Energielabel
- Isolatie
- Volledig geïsoleerd
- Verwarming
- Warmtepomp
- Warm water
- Elektrische boiler
Kadastrale gegevens
- ALMERE C 3599
- Kadastrale kaart
- Oppervlakte
- 155 m² (deelperceel)
- Eigendomssituatie
- Volle eigendom
Buitenruimte
- Ligging
- Aan rustige weg, in woonwijk, landelijk gelegen en vrij uitzicht
- Tuin
- Tuin rondom
Garage
- Soort garage
- Parkeerplaats
- Isolatie
- Geen isolatie
Parkeergelegenheid
- Soort parkeergelegenheid
- Op eigen terrein
Foto's 13
© 2001-2026 funda












