
Omschrijving
Charmante helft van dubbele villa! Op zoek naar jouw droomhuis in Almere? Deze fraaie familiewoning is gelegen in het rustige en groene buurtje van de Stripheldenbuurt.
- For English, please scroll down -
De ligging is ideaal; rustig wonen met het treinstation en busstation op loopafstand, en de Oostvaardersplassen vlakbij voor natuurliefhebbers.
Deze familiewoning is prachtig afgewerkt en instapklaar. Een perfecte kans voor gezinnen en iedereen die opzoek is naar ruimte en comfort in het jonge, groene en kindvriendelijke woonwijk. De woning komt uit 2007 en is vanuit de bouw goed geïsoleerd met energielabel A. Er zijn 10 zonnepanelen, 4 slaapkamers (met de mogelijkheid tot 5) en je parkeert je auto voor de deur op eigen terrein.
We zetten de belangrijkste punten alvast voor je op een rij. Ben je enthousiast en wil je komen kijken? Neem contact op voor een bezichtiging, wij laten je graag alles zien.
Kenmerken
- 2-onder-1-kapwoning
- Bouwjaar 2007
- Energielabel A, volledig geïsoleerd
- 10 zonnepanelen (Opbrengst gemiddeld 4.100 KWh)
- Nieuwe CV ketel 2025
- Woonoppervlak 178m2 op een perceel van 264m2
- Woonkamer voorzien van massieve eikenhouten walvisgraatvloer met verfijnde sierbiezen
- Open keuken voorzien van luxe inbouwapparatuur
- 4 ruime slaapkamers met de mogelijkheid tot 5
- Moderne badkamer voorzien van inloopdouche, dubbele wastafel op meubel en toilet
- Fraai aangelegde tuin gunstig gelegen op het zuidoosten met houten veranda
- Parkeerplaats op eigen terrein en voldoende vrije openbare parkeerplekken
- Op loop- en fietsafstand van voorzieningen en openbaar vervoer zoals de bus en treinstation
- Perfecte verbinding met uitvalswegen A6 en A27 richting o.a. Amsterdam/Utrecht/Lelystad
- Oplevering in overleg
Indeling
Begane grond:
Na de ruime entree welke genoeg ruimte biedt voor de garderobe en een toilet, kom je binnen in de royale woonkamer welke is afgewerkt met een massieve eikenhouten walvisgraatvloer met verfijnde sierbiezen en beschikt over een enkele deur en een dubbele openslaande deur. Deze bieden directe toegang tot de fraai aangelegde, op het zuidoosten gelegen achtertuin.
De open keuken is een echte eyecatcher en van alle gemakken voorzien, met luxe inbouwapparatuur zoals een 5-pits gasfornuis met wokbrander, grote heteluchtoven, magnetron, koelkast, vriezer, vaatwasser en een composiet werkblad met volop werkruimte. Aan de voorzijde van de woning zorgt een charmante erker bij de keuken voor extra lichtinval en een prettig uitzicht op de straat. Deze sfeervolle plek leent zich perfect voor een gezellige zit- of eethoek. De gezellige eetkamer vormt het warme hart van de woning, waar je geniet van lange diners, spelletjesavonden of een goed glas wijn in fijn gezelschap.
De zeer fraaie aangelegde tuin is gelegen op het zuidoosten en geeft volledige privacy. Hier geniet je de hele dag van de zon en is het heerlijk vertoeven tot in de late uurtjes onder de houten veranda.
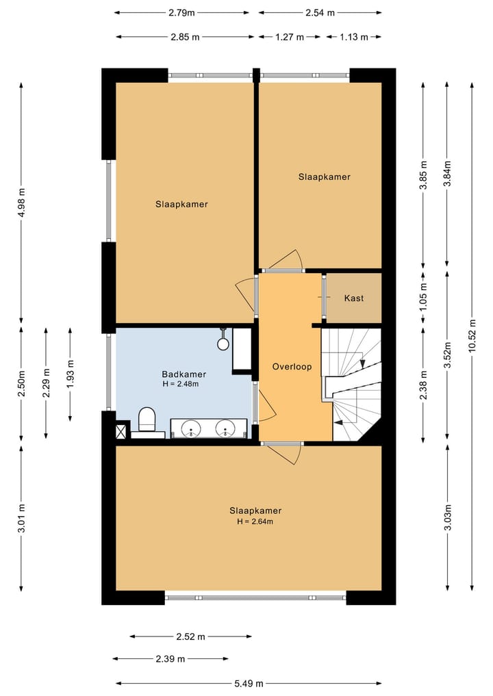
Eerste verdieping:
Op de eerste verdieping bevinden zich drie ruime slaapkamers, elk voorzien van grote raampartijen die zorgen voor een fijne lichtinval en een prettige sfeer. De moderne badkamer is strak en eigentijds ingericht met een royale inloopdouche, dubbele wastafel op een stijlvol meubel en een wandcloset toilet.
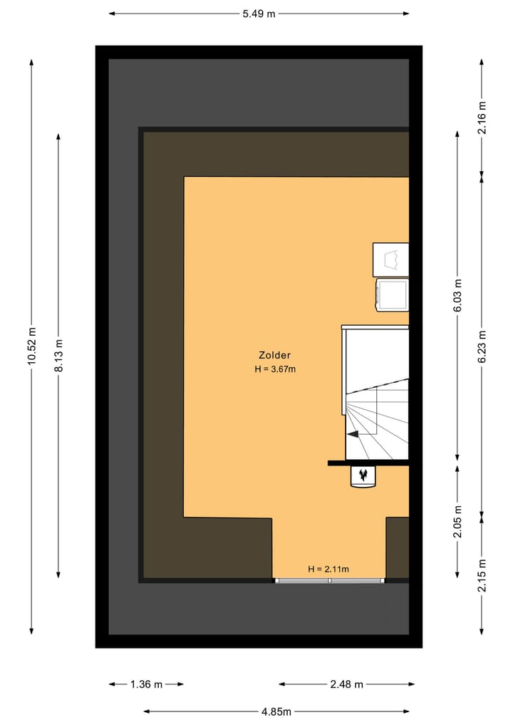
Tweede verdieping:
De vierde slaapkamer bevindt zich op de tweede verdieping, waar dankzij de hoge nok en aanwezige raampartijen een fijne, lichte ruimte is ontstaan. Deze verdieping biedt bovendien de mogelijkheid tot het creëren van een vijfde slaapkamer. Ook vind je hier de aansluitingen voor de wasmachine en droger.
Woonomgeving:
De Stripheldenbuurt is één van de jongste wijken van Almere en voorzien van veel openbaar groen en diverse stadsgrachten en waterpartijen. De wijk is speels opgezet en er zijn veel speelvoorzieningen voor de jeugd (van alle leeftijden) aanwezig. Zo is er de activiteitenzone op de Evenaar met basketbal, tennis, voetbal en een spectaculaire skatebaan, en vele speeltuintjes in de wijk voor de kleinere kinderen. Wonen wordt recreëren op deze plek, het Kotterbos, de vaart, de plassen en niet te vergeten het vermaarde natuurgebied "Oostvaardersplassen" bevinden zich op loopafstand. Hier kun je heerlijk wandelen of fietsen en genieten van de wilde paarden, edelherten, vossen en de vele vogelsoorten waaronder de zeearenden die ieder jaar weer het nieuws halen.
De verbinding met uitvalswegen is uitstekend. Zowel de A6 en A27 richting Amsterdam/Utrecht/Lelystad zijn beiden in 5 autominuten bereikbaar. Het openbaar vervoer ligt letterlijk om de hoek met bushalte op ca. 200 meter afstand.
Kortom, wil jij wonen in een sfeervolle, instapklare woning met veel ruimte, licht en luxe? Mis deze kans dan niet! Dit huis biedt alles wat je zoekt – en meer. Kom het zelf ervaren, wie weet voelt dit straks als jouw nieuwe thuis.
__________
Charming half of double villa! Looking for your dream home in Almere? This beautiful family home is located in the quiet and green area of the Stripheldenbuurt.
The location is ideal; quiet living with the train and bus station within walking distance, and the Oostvaardersplassen nearby for nature lovers.
This family home is beautifully finished and ready to move in. A perfect opportunity for families and anyone looking for space and comfort in the young, green and child-friendly residential area. The house comes from 2007 and is well insulated from construction with energy label A. There are 10 solar panels, 4 bedrooms (with the possibility of 5) and you park your car in front of the door on private property.
We list the most important points for you. Are you excited and do you want to come look? Contact us for a viewing, we are happy to show you around.
Features
- Semi-detached house
- Built in 2007
- Energy label A, fully insulated
- 10 solar panels (Production average 4.100 KWh)
- New boiler 2025
- Living area 178m2 on a plot of 264m2
- Living room with solid oak whalebone floor with refined ornamental piping
- Open kitchen with luxury appliances
- 4 spacious bedrooms with the possibility of 5
- Modern bathroom with shower, double sink and toilet
- Beautifully landscaped garden conveniently located on the southeast with wooden veranda
- Parking on site and plenty of free public parking spaces
- Within walking and cycling distance of facilities and public transport such as bus and train station
- Perfect connection with roads A6 and A27 towards Amsterdam / Utrecht / Lelystad
- Delivery in consultation
Classification
First floor:
After the spacious entrance which provides enough space for the wardrobe and a toilet, you enter the spacious living room which is finished with a solid oak whalebone floor with refined ornamental piping and features a single door and a double sliding door. These provide direct access to the beautifully landscaped, southeast facing backyard.
The open kitchen is a real eye-catcher and fully equipped, with luxury appliances such as a 5-burner gas stove with wok burner, large convection oven, microwave, refrigerator, freezer, dishwasher and a composite countertop with plenty of workspace. At the front of the home, a charming bay window near the kitchen provides extra light and a pleasant view of the street. This cozy spot lends itself perfectly to a cozy sitting or dining area. The cozy dining room is the warm heart of the home, where you can enjoy long dinners, game nights or a good glass of wine in fine company.
The very nicely landscaped garden is located on the southeast and gives complete privacy. Here you can enjoy the sun all day long and it is lovely to linger until late in the evening under the wooden veranda.
Second floor:
On the second floor there are three spacious bedrooms, each with large windows that provide a fine light and a pleasant atmosphere. The modern bathroom is sleek and contemporary with a generous walk-in shower, double sink on a stylish cabinet and a wall-mounted toilet.
Second floor:
The fourth bedroom is located on the second floor, where thanks to the high ridge and present windows a fine, bright space has been created. This floor also offers the possibility of creating a fifth bedroom. You will also find the connections for the washer and dryer.
Living environment:
The Stripheldenbuurt is one of Almere's youngest neighborhoods and features lots of public greenery and several city canals and water features. The neighborhood is playful and there are many play facilities for youth (of all ages) present. There is the activity zone on the Evenaar with basketball, tennis, soccer and a spectacular skate track, and many playgrounds in the neighborhood for smaller children. Living becomes recreation in this place, the Kotterbos, the canal, the lakes and not to mention the renowned nature reserve “Oostvaardersplassen” are within walking distance. Here you can walk or bike and enjoy the wild horses, red deer, foxes and many bird species including the bald eagles that make the news every year.
The connection to highways is excellent. Both the A6 and A27 towards Amsterdam / Utrecht / Lelystad are both within 5 minutes by car. Public transportation is literally around the corner with bus stop at about 200 meters away.
In short, would you like to live in an attractive, ready to move in home with lots of space, light and luxury? Do not miss this opportunity! This house offers everything you are looking for - and more. Come and experience it for yourself, who knows, maybe this will soon feel like your new home.
Kenmerken
Overdracht
- Laatste vraagprijs
- € 745.000 kosten koper
- Vraagprijs per m²
- € 4.185
- Status
- Verkocht
Bouw
- Soort woonhuis
- Eengezinswoning, 2-onder-1-kapwoning
- Soort bouw
- Bestaande bouw
- Bouwjaar
- 2007
- Soort dak
- Schilddak bedekt met pannen
Oppervlakten en inhoud
- Gebruiksoppervlakten
- Wonen
- 178 m²
- Externe bergruimte
- 9 m²
- Perceel
- 264 m²
- Inhoud
- 647 m³
Indeling
- Aantal kamers
- 6 kamers (4 slaapkamers)
- Aantal badkamers
- 2 aparte toiletten
- Aantal woonlagen
- 3 woonlagen
Energie
- Energielabel
- A
- Isolatie
- Volledig geïsoleerd
- Verwarming
- Cv-ketel
- Warm water
- Cv-ketel
- Cv-ketel
- Gas gestookt combiketel uit 2025, eigendom
Kadastrale gegevens
- ALMERE R 2000
- Kadastrale kaart
- Oppervlakte
- 264 m²
- Eigendomssituatie
- Volle eigendom
Buitenruimte
- Ligging
- Aan rustige weg en in woonwijk
- Tuin
- Achtertuin, voortuin en zijtuin
- Achtertuin
- 91 m² (7,00 meter diep en 13,00 meter breed)
- Ligging tuin
- Gelegen op het zuidoosten bereikbaar via achterom
Parkeergelegenheid
- Soort parkeergelegenheid
- Op eigen terrein
Foto's 62
© 2001-2025 funda





























































