
Omschrijving
Op zoek naar jouw droomhuis met ruime slaapkamers, riante tuin en eigen oprit met garage? Kom dan een kijkje nemen in deze comfortabele, duurzame (A label en 14 zonnepanelen) half vrijstaande woning in het rustige en groene Verzetswijk!
In dit super centraal gelegen wijkje is het fantastisch wonen. Aan de ene kant wandel je zo het bos en park in en aan de andere kant ben je in een mum van tijd bij onder meer treinstation Parkwijk (7 minuten lopen), scholen en buurtwinkels. Zoals een AH, Etos en Primera tegenover het station.
- Getoonde prijs betreft een bieden vanaf prijs - For English, please scroll down -
We zetten de belangrijkste kenmerken voor je op een rij. Ben je geïnteresseerd en wil je komen kijken? Neem contact op voor een bezichtiging, wij laten je graag alles zien.
Kenmerken
- 2-onder-1-kapwoning uit 1995
- Energiezuinig met A-label, volledig geïsoleerd, stadsverwarming
- Eigen oprit, garage, laadpaal in volledige eigendom
- 14 zonnepanelen uit 2020 in volledige eigendom
- Moderne keuken met inbouwapparatuur
- Moderne badkamer met ruime inloopdouche
- Tweede badkamer met wastafel
- Drie slaapkamers (eenvoudig weer om te zetten naar vier)
- Airco’s uit 2022 in volledige eigendom (slaapkamer tuinzijde, zolder voorzijde)
- Buitenschilderwerk 2022
- Op loopafstand van bushaltes, treinstation, bos en park, supermarkt, gezondheidscentrum, kinderopvang, scholen, speeltuintjes, Jeugdland
- In hooguit 10 minuten fietsen sta je in stadshart Almere Centrum (groot winkel- en horeca-aanbod) en met de auto ben je er in 4 minuten
- Op de A6 en A27 richting Amsterdam, Lelystad en Utrecht zit je in 7 minuten en rijd je in zo’n 20-30 minuten naar toe
- Oplevering in overleg
Indeling
Begane grond:
Via de ruime hal kom je in de royale tuingerichte woonkamer met massieve eikenhouten plankenvloer en toegang tot de halfopen L-vormige inbouwkeuken met fraai stenen granitoblad, keramische kookplaat, afzuigkap, koel-vriescombinatie, combi-oven, vaatwasser en vaste (trap)kast. De gezellige (ook winter)groene tuin op het noordwesten van ca. 110 m2 bereik je via de schuifpui in de woonkamer, of binnendoor via de garage. Buiten de woonkamer is ook de tuin echt een heerlijke plek om te vertoeven. Zonovergoten met tegelijkertijd voldoende schaduw én volop ruimte voor ontspanning, lekker samen eten, spelen, borrelen.
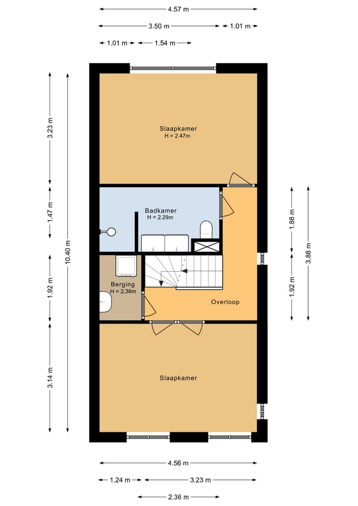
Eerste verdieping:
Op deze verdieping bevinden zich twee (voorheen drie) sfeervolle slaapkamers, beide met veel natuurlijk licht. Van de slaapkamer aan de voorzijde kunnen eenvoudig weer twee kamers worden gemaakt. De master bedroom met airco bevindt zich aan de tuinzijde.
De badkamer heeft een grote inloopdouche, dubbele wastafel met lades, spiegelkast, zwevend toilet en plafond met inbouwspotjes. Daarnaast is er nog een tweede badkamer met wastafel die in gebruik is als was-droogruimte.
Tweede verdieping:
Deze verdieping bestaat uit een multifunctionele overloop met airco en vaste bergkast en een ruime slaapkamer met grote kunststof dakkapel met elektrisch bedienbaar rolluik.
De zolderverdieping heeft zowel aan de voorzijde als achterzijde knieschotten met daarachter handige extra opbergruimte.
Enthousiast geworden over dit geweldige huis voor zowel gezinnen als stellen? Maak dan snel een afspraak voor een bezichtiging. Wij leiden je graag live rond!
________________
Looking for your dream home with spacious bedrooms, spacious garden and private driveway with garage? Then come take a look at this comfortable, sustainable (A label and 14 solar panels) semi-detached house in the quiet and green Verzetswijk!
In this super centrally located neighborhood is fantastic living. On one side you can walk into the woods and park and on the other side you are in no time at train station Parkwijk (7 minutes walk), schools and local stores. Such as AH, Etos and Primera opposite the station.
- Price shown is an offer from price -
We list the most important features for you. Are you interested and want to come and have a look? Contact us for a viewing, we are happy to show you around.
Features
- Semi-detached house built in 1995
- Energy efficient with A-label, fully insulated, district heating
- Private driveway, garage, charging station in full ownership
- 14 solar panels from 2020 in full ownership
- Modern kitchen with built-in appliances
- Modern bathroom with spacious walk-in shower
- Second bathroom with sink
- Three bedrooms (easily converted back to four)
- Air conditioning from 2022 in full ownership (bedroom garden side, attic front)
- Exterior painting 2022
- Within walking distance of bus stops, train station, forest and park, supermarket, health center, daycare, schools, playgrounds, Jeugdland
- In no more than 10 minutes by bike you are in downtown Almere Centrum (large range of stores and restaurants) and by car you are there in 4 minutes
- On the A6 and A27 towards Amsterdam, Lelystad and Utrecht you are in 7 minutes and you drive to it in about 20-30 minutes
- Delivery in consultation
Layout
First floor:
Through the spacious hall you enter the spacious garden-oriented living room with solid oak plank floor and access to the semi-open L-shaped kitchen with beautiful stone granite top, ceramic hob, extractor, fridge-freezer, combi-oven, dishwasher and fixed (staircase) closet. The cozy (also winter) green garden on the northwest of approximately 110 m2 you reach through the sliding doors in the living room, or inside through the garage. Outside the living room is also the garden really a lovely place to be. Sun-drenched with plenty of shade at the same time and plenty of room to relax, eat together, play, have drinks.
Second floor:
On this floor are two (formerly three) cozy bedrooms, both with plenty of natural light. The front bedroom can easily be made into two rooms again. The master bedroom with air conditioning is located on the garden side.
The bathroom has a large walk-in shower, double sink with drawers, mirror cabinet, floating toilet and ceiling with recessed spotlights. There is also a second bathroom with sink that is used as a laundry-drying room.
Second floor:
This floor consists of a multifunctional landing with air conditioning and fixed storage closet and a spacious bedroom with large plastic dormer window with electrically operated roller shutter.
The attic floor has both the front and rear knee partitions with behind them handy extra storage space.
Enthusiastic about this great house for both families and couples? Then quickly make an appointment for a viewing. We are happy to show you around live!
Kenmerken
Overdracht
- Laatste vraagprijs
- € 585.000 kosten koper
- Vraagprijs per m²
- € 4.432
- Status
- Verkocht
Bouw
- Soort woonhuis
- Eengezinswoning, 2-onder-1-kapwoning
- Soort bouw
- Bestaande bouw
- Bouwjaar
- 1995
- Soort dak
- Zadeldak bedekt met pannen
Oppervlakten en inhoud
- Gebruiksoppervlakten
- Wonen
- 132 m²
- Overige inpandige ruimte
- 15 m²
- Gebouwgebonden buitenruimte
- 1 m²
- Perceel
- 272 m²
- Inhoud
- 506 m³
Indeling
- Aantal kamers
- 4 kamers (3 slaapkamers)
- Aantal badkamers
- 1 badkamer en 1 apart toilet
- Badkamervoorzieningen
- Douche, inloopdouche, toilet, wastafel, en wastafelmeubel
- Aantal woonlagen
- 3 woonlagen
- Voorzieningen
- Glasvezelkabel, mechanische ventilatie, schuifpui, en zonnepanelen
Energie
- Energielabel
- A
- Isolatie
- Volledig geïsoleerd
- Verwarming
- Stadsverwarming
- Warm water
- Stadsverwarming
Kadastrale gegevens
- ALMERE P 1638
- Kadastrale kaart
- Oppervlakte
- 272 m²
- Eigendomssituatie
- Volle eigendom
Buitenruimte
- Ligging
- Aan rustige weg en in woonwijk
- Tuin
- Achtertuin en voortuin
- Achtertuin
- 110 m² (10,00 meter diep en 11,00 meter breed)
- Ligging tuin
- Gelegen op het noordwesten bereikbaar via achterom
Bergruimte
- Schuur/berging
- Aangebouwde stenen berging
- Voorzieningen
- Elektra
Garage
- Soort garage
- Aangebouwde stenen garage
- Capaciteit
- 1 auto
- Voorzieningen
- Elektra
Parkeergelegenheid
- Soort parkeergelegenheid
- Op eigen terrein
Foto's 58
© 2001-2025 funda

























































