Dit huis op Funda: https://www.funda.nl/detail/koop/almere/huis-kwartaalstraat-57/43865929/

Omschrijving
Unieke vrijstaande villa met slaapkamer, badkamer en inpandige berging op de begane grond, riante 'waterkamer' grote serre en vrijstaande houten berging. Wonen op de grens van water en land in de vrijstaande 'poseidon villa' naar ontwerp van architect Jurgen van Staaden kan hier gewoon. Hoe fijn is dat?
Op één van de mooiste plekken in de Kwartaalstraat van de Seizoenenbuurt in Almere Buiten staat deze unieke vrijstaande villa, in zijn meest uitgebreide vorm, aan de rand van het water op een flink perceel van 457 m2. De woning is voorzien van alle denkbare uitbreidingen zoals een extra slaapkamer en badkamer op de begane grond en een garage aangepast naar een berging met wasruimte. Verder is er op de begane grond een grote 'delta serre' in A-vorm en een 'waterkamer'. De 1e etage voorziet in een ruime overloop met twee slaapkamers waarvan er één met entresol. Een badkamer en opbergruimte maken het hier tot een echte verdieping. Besloten tuinen met overkapping, fraaie vijver en weelderig groen zorgen voor rust, privacy en op eigen kavel is er parkeerruimte voor twee auto's.
Omgeving.
Deze woning staat in een parkachtige omgeving met groene lanen, bomen en hagen. Op loop- en fietsafstand bevinden zich de voorzieningen, zoals o.a. scholen, winkelcentrum, supermarkt, NS station. Houd je van de natuur, dan zijn de nabij gelegen Oostvaardersplassen een genot om te wandelen!
Persoonlijk noot van makelaar Jurgen Kuipers RMT/RT
'Hier, aan de buitenste rand van de Seizoenenbuurt staat in een parkachtige omgeving een unieke woning van architect Jurgen van Staaden. Een functionele villa met extra opties zoals een serre en natuurlijk de unieke 'waterkamer'. Het bijzondere is dat hoogteverschillen in de kavel terugkomen in de woonkamer. Prachtig zichteffect vanuit de centraal gelegen keuken, serre en woonkamer op de tuinen aan de zijkant. Vanuit de 'waterkamer' geniet je direct van het water en met een goed boek kom je tot rust.
Niet vergeten dat dit een vrijstaande woning waar je helemaal omheen kunt lopen. Ideaal object voor een gezin waar ook aan huis gewerkt kan worden en als klap op de vuurpijl; al levensloopbestendig gemaakt'. Ik nodig iedereen uit deze 'parel in de polder' te komen bekijken. Maak een exclusieve afspraak met ons en kom genieten van groen, rust, ruimte en water!
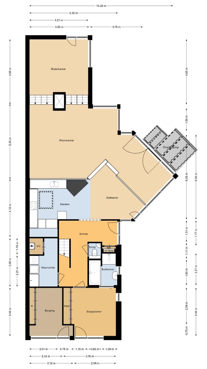
Indeling
Begane grond. Waar een entree aan de straatzijde toegang geeft tot de inpandige berging met wasruimte en een tussendoor naar de lichte gang, betreed je deze woning ook via de hoofdentree aan de zijkant. Van hieruit zijn de slaapkamer en de badkamer op de begane grond en de opgang naar de eerste verdieping goed bereikbaar.
De mooie lichte gang geeft middels openslaande deuren toegang tot de open keuken met een keukenblad van natuurlijk graniet 'Impala'. Diverse inbouwapparatuur en een dakraam voor een mooie lichtinval. Hier kan ook heerlijk gegeten worden aan een separate tafel met een riante zit. Vanuit de keuken werp je een blik op de lager gelegen grote woonkamer met toegang tot de serre en van hieruit naar de besloten tuin met vijver, weeldering groen en een overkapping.
Maar er is meer, want vanuit de woonkamer neem je via een afstap toegang tot de fraaie 'water of tuinkamer' welke lager gelegen is. Een slim geplaatste tweezijdige gashaard voorziet in een speels effect. De vloeren zijn hoogwaardig afgewerkt en bestaanuit portugees leisteen met vloerverwarming in de keuken en de gang, tot en met een lichte grindvloer en een hoogwaardge tapis parketvloer. Aan de voorzijde van de woning ligt de slaapkamer met een eigen badkamer voorzien van ligbad, separate douche en wastafelmeubel.
Eerste verdieping
Eerste verdieping. Vanuit de lichte gang ga je met een rechte steektrap naar boven en bereik je de grote 1e verdieping. Deze is nu opgedeeld in een slaapkamer met een entresol, en toegang tot berging onder de kap, met mooi zicht op de achtertuin en waterpartij. Aan de voorzijde bevindt zich een masterbedroom die zich over de volle breedte van de voorgevel uitstrekt. De ruime overloop geeft verder toegang tot een eigen functionele badkamer.
Tweede verdieping
Deze mooie woning heeft ook een zolder die bereikbaar is waarin een berging en de entresol zijn gesitueerd. Bouwkundig goed aangebracht, speels en buitengewoon spannend voor kinderen die hier hun eigen domein kunnen hebben.
Tuin
Deze vrijstaande villa is voorzien van meerdere tuinen rondom de woning. Aan de zijkant/straat-brugzijde is er een functionele zijtuin waardoor vrij makkelijk de vrijstaande houten berging bereikbaar is. Aan de voor/zijkant van de woning bevindt zich, nabij de hoofdentree, een ruime tuin met beplanting en sierbestrating. Van hieruit en via de mooie serre bereik je de tuin die aan de waterpartij grenst met een overkapping, vijver, terrassen in leisteen en een pergola met fraaie begroeiing.
Deze fraaie, groene en weelderige tuin is het meest onderscheidende element van deze woning. Kijkend naar het water kom je hier volledig tot rust. Voor wie een duik wil nemen of even wat wil peddelen of 'suppen' hier kan het allemaal.
Bijzonderheden
Onder architectuur gebouwde villa;
1) Unieke en onderscheidende bouwstijl met dakoverstekken, lessenaarsdaken en fraai koperwerk;
2) In meest uitgebreide vorm gebouwd met serre en 'waterkamer';
3) Geheel vrijstaand en rondom beloopbaar;
4) Voorzien van twee parkeerplaatsen op eigen kavel;
5) Achterzijde voorzien van een fraaie en kavelbrede steigerpartij met aanlegmogeljkheid;
6) Hoogwaardige vloerafwerkingen zoals portugees leisteen, grind en parket;
7) Alle daken van de woning en de berging voorzien van nieuw bitumen in 2022;
8) Voorzien van 14 zonnepanelen uit 2021;
9) Voorzien hybride warmtepomp uit 2023 en rondom HR+ glas;
10) Levensloopbestendig met bad-en slaapkamer op de begane grond;
11) De ruime zijkavel biedt uitbouwmogelijkheden;
12) CV-huurovereenkomst wordt door koper overgenomen.
Disclaimer: Alhoewel zorgvuldig samengesteld, kunnen er aan deze tekst geen rechten worden ontleend. Wij staan dan ook niet in voor de juistheid en volledigheid van de getoonde gegevens. De woning is ingemeten volgens de normen vastgelegd in de NEN 2580. Toch kunnen er altijd verschillen ontstaan tussen de opgegeven maten en de werkelijkheid. Indien de maten voor u belangrijk zijn nodigen wij u van harte uit de maten op voorhand op juistheid te controleren. Het meetrapport is beschikbaar en ter inzage.
Kenmerken
Overdracht
- Laatste vraagprijs
- € 795.000 kosten koper
- Vraagprijs per m²
- € 4.141
- Status
- Verkocht
Bouw
- Soort woonhuis
- Villa, vrijstaande woning
- Soort bouw
- Bestaande bouw
- Bouwjaar
- 1999
- Soort dak
- Lessenaardak bedekt met bitumineuze dakbedekking
Oppervlakten en inhoud
- Gebruiksoppervlakten
- Wonen
- 192 m²
- Gebouwgebonden buitenruimte
- 7 m²
- Externe bergruimte
- 8 m²
- Perceel
- 457 m²
- Inhoud
- 684 m³
Indeling
- Aantal kamers
- 6 kamers (4 slaapkamers)
- Aantal badkamers
- 2 badkamers en 1 apart toilet
- Badkamervoorzieningen
- 2 douches, ligbad, 2 wastafels, en toilet
- Aantal woonlagen
- 2 woonlagen en een zolder
- Voorzieningen
- Dakraam, glasvezelkabel, mechanische ventilatie, natuurlijke ventilatie, rookkanaal, en zonnepanelen
Energie
- Energielabel
- Isolatie
- Dakisolatie, HR-glas, muurisolatie en vloerisolatie
- Verwarming
- Cv-ketel, gashaard, gedeeltelijke vloerverwarming en warmtepomp
- Warm water
- Cv-ketel
- Cv-ketel
- CW5 (gas gestookt uit 2018, huur)
Kadastrale gegevens
- ALMERE B 3443
- Kadastrale kaart
- Oppervlakte
- 457 m²
- Eigendomssituatie
- Eigendom belast met beperkte rechten
Buitenruimte
- Ligging
- Aan rustige weg, aan vaarwater, beschutte ligging, in bosrijke omgeving, in woonwijk en vrij uitzicht
- Tuin
- Zijtuin
- Zijtuin
- 196 m² (28,00 meter diep en 7,00 meter breed)
- Ligging tuin
- Gelegen op het zuidwesten bereikbaar via achterom
Bergruimte
- Schuur/berging
- Vrijstaande houten berging
- Voorzieningen
- Elektra
Parkeergelegenheid
- Soort parkeergelegenheid
- Op eigen terrein en openbaar parkeren
Bedrijfsruimte
- Kantoorruimte
- Niet aanwezig, wel mogelijk (inpandig)
Foto's 44
© 2001-2026 funda











































