Dit huis op Funda: https://www.funda.nl/detail/koop/almere/huis-matho-tongastraat-11/89649472/

Matho Tongastraat 111336 GN AlmereStripheldenbuurt Midden- west
€ 455.000 k.k.
Omschrijving
Op zoek naar een instapklare en duurzame woning in de geliefde Stripheldenbuurt van Almere?
Deze moderne en goed onderhouden eengezinswoning telt vier slaapkamers, heeft volledige isolatie, HR++ beglazing en een energielabel A, wat maakt dat je hier energiezuinig kunt wonen. Deze woning combineert comfort en duurzaamheid op een ideale locatie. Perfect voor gezinnen die ruim en toekomstgericht willen wonen!
- Getoonde prijs betreft een bieden vanaf prijs - For English, please scroll down -
De woning ligt in een kindvriendelijke en groene wijk in Almere-Buiten, met diverse scholen, winkels, speeltuinen en sportfaciliteiten in de directe omgeving. Dankzij de gunstige ligging zijn uitvalswegen zoals de A6 en A27 snel bereikbaar, en ook het openbaar vervoer is goed geregeld met een bushalte en station Almere Oostvaarders op korte afstand. Zo ben je binnen no-time in het centrum van Almere of Amsterdam.
We zetten de belangrijkste kenmerken voor je op een rij. Ben je geïnteresseerd en wil je komen kijken? Neem contact op voor een bezichtiging. Er is hier zoveel te beleven, wij laten je graag alles zien.
Kenmerken
- Tussenwoning uit 2004
- Energiezuinig met energielabel A, volledig geïsoleerd, voorzien van HR++ glas
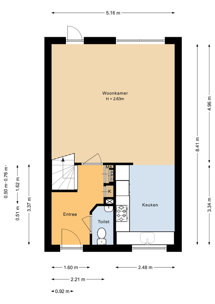
- Woonoppervlak van 109 m² op een perceel van 144 m²
- Keuken voorzien van een 5-pits gaskookplaat, magnetron, oven, koel-vriescombinatie en vaatwasser
- 4 ruime slaapkamers met veel natuurlijke lichtinval
- Badkamer voorzien van een douche, wastafel, en toilet
- Diepe tuin van 15 meter gelegen op het noordoosten
- Parkeer je auto voor de deur op de openbare parkeervakken gelegen
- Gelegen in de kindvriendelijke en bovenal gezellige Stripheldenbuurt
- Op loopafstand vind je een supermarkt, scholen, kinderopvang, speeltuintje, sportschool, gezondheidsvoorzieningen
- Op 8 minuten rijden of enkele minuten fietsen afstand van centrum Almere Buiten met diverse winkels, woonboulevard Doe Mere, versmarkt en treinstation. Almere Centrum ligt op ca. 10 minuten afstand met een breed scala aan winkels en horeca
- Binnen 10 minuten rij je op de A6/A27 waarmee je binnen 20-30 minuten aankomt in Amsterdam, Lelystad, Amersfoort, Hilversum en Utrecht.
- Oplevering in overleg, kan snel
Over de woonomgeving:
De woning is gelegen in een rustige straat met veel groen en een prettige, ruimtelijke opzet. De wijk is populair bij jonge gezinnen en dat is niet voor niets: met speeltuinen, brede wandelpaden, waterpartijen en veel voorzieningen in de buurt is dit een ideale plek om te wonen.
De directe omgeving biedt volop gemak. Op loopafstand vind je basisscholen, kinderopvang en een supermarkt. Daarnaast zijn er sportvoorzieningen, gezondheidszorg en winkelcentra in de buurt. Ook natuurliefhebbers kunnen hier hun hart ophalen want binnen enkele minuten fiets je naar het Kromslootpark of de Oostvaardersplassen waar je heerlijk kunt wandelen, fietsen of genieten van de rust en de natuur.
De bereikbaarheid van de woning is uitstekend. De bushalte ligt op slechts een paar minuten lopen en het NS-station Almere Oostvaarders is eenvoudig bereikbaar per fiets. Vanaf hier ben je met de trein in circa 20 minuten in hartje Amsterdam. Met de auto zit je binnen enkele minuten op de A6 of A27, waardoor steden als Amsterdam, Utrecht en Lelystad goed bereikbaar zijn.
Kortom, Deze woning is niet alleen een comfortabele woning, maar ook een rustige en kindvriendelijke woonomgeving met uitstekende voorzieningen en verbindingen. Of je nu een jong gezin hebt, werkt in de Randstad of gewoon op zoek bent naar een fijne, goed bereikbare plek om te wonen – hier vind je het allemaal.
Ben je geïnteresseerd en wil je komen kijken? Neem contact op voor een bezichtiging we laten je deze fijne plek graag zien.
__________
Looking for a ready-to-move-in and sustainable home in the popular Stripheldenbuurt neighborhood of Almere?
This modern and well-maintained single-family home has four bedrooms, full insulation, HR++ glazing, and an energy label A, which means you can live energy-efficiently here. This home combines comfort and sustainability in an ideal location. Perfect for families who want to live in a spacious and future-oriented home!
- The price shown is a starting price -
The home is located in a child-friendly and green neighborhood in Almere-Buiten, with various schools, shops, playgrounds, and sports facilities in the immediate vicinity. Thanks to its convenient location, highways such as the A6 and A27 are easily accessible, and public transportation is also well organized with a bus stop and Almere Oostvaarders station a short distance away. This means you can be in the center of Almere or Amsterdam in no time.
We have listed the most important features for you. Are you interested and would you like to come and have a look? Please contact us for a viewing. There is so much to experience here, we would love to show you everything.
Features
- Terraced house built in 2004
- Energy efficient with energy label A, fully insulated, equipped with HR++ glass
- Living area of 109 m² on a plot of 144 m²
- Kitchen equipped with a 5-burner gas hob, microwave, oven, fridge-freezer, and dishwasher
- 4 spacious bedrooms with lots of natural light
- Bathroom with shower, sink, and toilet
- Deep garden of 15 meters facing northeast
- Park your car in front of the door in the public parking spaces
- Located in the child-friendly and above all cozy Stripheldenbuurt neighborhood
- Within walking distance you will find a supermarket, schools, childcare, playground, gym, and health facilities
- An 8-minute drive or a few minutes' bike ride from the center of Almere Buiten with various shops, the Doe Mere home furnishings mall, a fresh market, and a train station. Almere Centrum is approximately 10 minutes away with a wide range of shops and restaurants
- Within 10 minutes you can reach the A6/A27 motorway, which will take you to Amsterdam, Lelystad, Amersfoort, Hilversum, and Utrecht within 20-30 minutes.
- Delivery in consultation, can be done quickly
About the residential area:
The house is located in a quiet street with lots of greenery and a pleasant, spacious layout. The neighborhood is popular with young families, and for good reason: with playgrounds, wide walking paths, water features, and many amenities nearby, this is an ideal place to live.
The immediate surroundings offer plenty of convenience. Within walking distance, you will find primary schools, childcare, and a supermarket. In addition, there are sports facilities, healthcare, and shopping centers nearby. Nature lovers will also be in their element here, as within a few minutes you can cycle to the Kromslootpark or the Oostvaardersplassen, where you can enjoy walking, cycling, or simply enjoying the peace and quiet of nature.
The accessibility of the house is excellent. The bus stop is only a few minutes' walk away and the Almere Oostvaarders railway station is easily accessible by bike. From here, you can reach the heart of Amsterdam by train in about 20 minutes. By car, you can reach the A6 or A27 motorways within a few minutes, making cities such as Amsterdam, Utrecht, and Lelystad easily accessible.
In short, this property is not only a comfortable home, but also a quiet and child-friendly living environment with excellent amenities and connections. Whether you have a young family, work in the Randstad, or are simply looking for a nice, easily accessible place to live—you will find it all here.
Are you interested and would you like to come and have a look? Contact us for a viewing; we would be happy to show you this lovely place.
Kenmerken
Overdracht
- Aangeboden sinds
- Aanvaarding
- In overleg
- Vraagprijs
- € 455.000 kosten koper
- Vraagprijs per m²
- € 4.174
- Status
- Beschikbaar
Bouw
- Soort woonhuis
- Eengezinswoning, tussenwoning
- Soort bouw
- Bestaande bouw
- Bouwjaar
- 2004
- Soort dak
- Zadeldak bedekt met pannen
Oppervlakten en inhoud
- Gebruiksoppervlakten
- Wonen
- 109 m²
- Externe bergruimte
- 14 m²
- Perceel
- 144 m²
- Inhoud
- 388 m³
Indeling
- Aantal kamers
- 5 kamers (4 slaapkamers)
- Aantal badkamers
- 1 badkamer
- Badkamervoorzieningen
- Douche, toilet, wastafel, en wastafelmeubel
- Aantal woonlagen
- 3 woonlagen
- Voorzieningen
- Dakraam, glasvezelkabel, mechanische ventilatie, en TV kabel
Energie
- Energielabel
- A
- Isolatie
- HR-glas en volledig geïsoleerd
- Verwarming
- Cv-ketel
- Warm water
- Cv-ketel
- Cv-ketel
- Neft HRC24Smartline (2004, eigendom)
Kadastrale gegevens
- ALMERE R 405
- Kadastrale kaart
- Oppervlakte
- 144 m²
- Eigendomssituatie
- Volle eigendom
Buitenruimte
- Ligging
- Aan rustige weg en in woonwijk
- Tuin
- Achtertuin en voortuin
- Achtertuin
- 75 m² (15,00 meter diep en 5,00 meter breed)
- Ligging tuin
- Gelegen op het noordoosten bereikbaar via achterom
Bergruimte
- Schuur/berging
- Vrijstaande houten berging
- Voorzieningen
- Elektra
Parkeergelegenheid
- Soort parkeergelegenheid
- Openbaar parkeren
Foto's 60
Plattegronden 6
© 2001-2025 funda

































































