
Maurice Chevalierstraat 271311 HA AlmereMuziekwijk N.-Zuidwest
Verkocht onder voorbehoud
€ 526.000 k.k.
BlikvangerGeschakelde woning met eigen oprit, garage en veel privacy.
Omschrijving
RUIMTE, PRIVACY EN EEN UITZONDERLIJK DIEPE TUIN - DEZE GESCHAKELDE WONING IN MUZIEKWIJK BIEDT HET ALLEMAAL.
OMSCHRIJVING
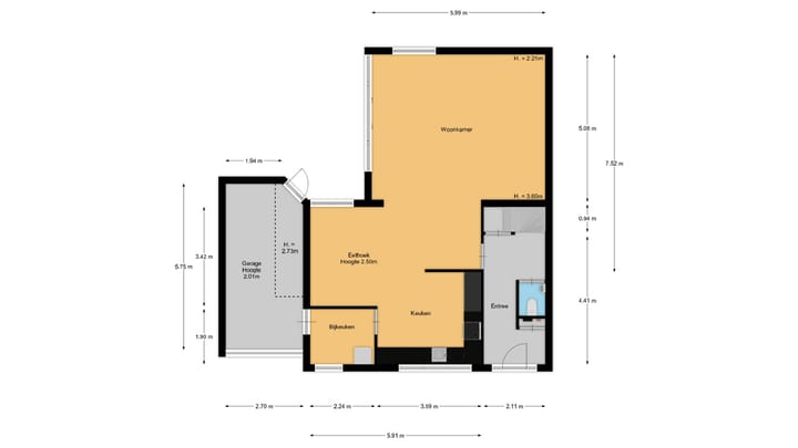
In de geliefde Muziekwijk van Almere staat deze geschakelde eengezinswoning met eigen oprit, garage en een zeer privé gelegen, diepe en zonnige achtertuin. Dankzij het bouwtype, waarbij de garages als tussenlid fungeren, grenst er nergens woonruimte van buren direct aan de woning. Dit zorgt voor veel rust en privacy, zowel binnen als buiten. De woning beschikt over een woonoppervlakte van 122 m², verdeeld over twee woonlagen, en een garage van circa 15 m².
Eén van de absolute pluspunten is de achtertuin: circa 20 meter diep, gunstig gelegen op het zuidwesten en deels op een talud, waardoor optimale privacy en een vrij uitzicht op het groen zijn gegarandeerd. De tuin is verzorgd aangelegd en heeft een sfeervol mediterraan karakter en beschikt over een houten tuinhuis. Dankzij de zonnige ligging is er de hele dag een fijne plek om buiten te zitten.
De woning, gebouwd rond 1992, beschikt over energielabel A en is voorzien van dak-, muur- en vloerisolatie en dubbele beglazing. De ligging maakt de woning bovendien zeer geschikt voor het plaatsen van zonnepanelen.
LOCATIE
De Maurice Chevalierstraat is een rustige en kindvriendelijke straat met voornamelijk bestemmingsverkeer. Speeltuinen, basisscholen, supermarkten, kinderopvang en winkelcentrum Muziekwijk liggen op loopafstand. Treinstation Almere Muziekwijk is snel per fiets bereikbaar en een bushalte bevindt zich op korte afstand.
INDELING
Begane grond:
Entree, hal, meterkast, toilet met fonteintje, ruime woonkamer met prachtige lichtinval, schuifpui naar de beschutte achtertuin, eetkamer en open keuken met inbouwapparatuur. Via de bijkeuken met wasmachineaansluiting is de garage bereikbaar. De garage is voorzien van elektra, verwarming en een handige vliering.
Eerste verdieping:
Overloop, drie in grootte variërende slaapkamers en een badkamer met douche, dubbele wastafel en toilet.
BIJZONDERHEDEN
- Energielabel A
- Diepe en zonnige achtertuin (ca. 20 meter, zuidwest)
- Veel privacy door bouwtype
- Verwarming en warm water via stadsverwarming
- Parkeren op eigen terrein (mogelijkheid voor twee auto’s)
- Woonoppervlakte 122 m², met diverse uitbreidingsmogelijkheden
- Bouwkundig rapport ter inzage
- Ouderdomsclausule en niet-zelfbewoningsclausule van toepassing
- Oplevering in overleg
FLEXIBILITEIT & UITBREIDINGSMOGELIJKHEDEN
Deze woning is ideaal voor wie extra ruimte of multifunctioneel gebruik zoekt:
- Extra kamer: De garage kan worden omgebouwd tot een extra slaapkamer, kantoorruimte of studentenkamer, eventueel met uitbreiding naar de bijkeuken. Vervang de garagedeur door een groot raam voor extra lichtinval.
- Tiny house: De diepe tuin biedt ruimte voor een tiny house als gastenverblijf, mantelzorg- of mobiele studentenwoning (onder voorbehoud van omgevingsvergunning). Met een loopdeur in de garage creëert u een privétoegang.
- Buitenleven: De tuin beschikt over tuinverlichting én waterdichte buitenstopcontacten. Perfect voor een jacuzzi, sauna, veranda, tuinkamer of buitenkeuken. De huidige schuur kan worden vervangen door een kweekkas, of worden verwijderd voor extra terrasruimte.
Voor een bezichtiging van deze woning kunt u contact opnemen met Tiffany de Beer, Register Makelaar Register Taxateur. Nog beter is om uw eigen NVM aankoopmakelaar mee te nemen.
Kenmerken
Overdracht
- Aangeboden sinds
- Aanvaarding
- In overleg
- Vraagprijs
- € 526.000 kosten koper
- Vraagprijs per m²
- € 4.311
- Status
- Verkocht onder voorbehoud
Bouw
- Soort woonhuis
- Eengezinswoning, geschakelde woning
- Soort bouw
- Bestaande bouw
- Bouwjaar
- 1992
- Soort dak
- Lessenaardak bedekt met pannen
Oppervlakten en inhoud
- Gebruiksoppervlakten
- Wonen
- 122 m²
- Overige inpandige ruimte
- 15 m²
- Perceel
- 354 m²
- Inhoud
- 511 m³
Indeling
- Aantal kamers
- 4 kamers (3 slaapkamers)
- Aantal badkamers
- 1 badkamer en 1 apart toilet
- Badkamervoorzieningen
- Dubbele wastafel, inloopdouche, en toilet
- Aantal woonlagen
- 2 woonlagen
- Voorzieningen
- Mechanische ventilatie, natuurlijke ventilatie, schuifpui, en TV kabel
Energie
- Energielabel
- Isolatie
- Dakisolatie, dubbel glas, muurisolatie en vloerisolatie
- Verwarming
- Stadsverwarming
- Warm water
- Stadsverwarming
Kadastrale gegevens
- ALMERE Q 1731
- Kadastrale kaart
- Oppervlakte
- 354 m²
- Eigendomssituatie
- Volle eigendom
Buitenruimte
- Ligging
- Aan rustige weg en in woonwijk
- Tuin
- Achtertuin en voortuin
- Achtertuin
- 220 m² (20,00 meter diep en 11,00 meter breed)
- Ligging tuin
- Gelegen op het zuidwesten
Bergruimte
- Schuur/berging
- Vrijstaande houten berging
Garage
- Soort garage
- Aangebouwde stenen garage
- Capaciteit
- 1 auto
- Voorzieningen
- Vliering, elektra en verwarming
Parkeergelegenheid
- Soort parkeergelegenheid
- Op eigen terrein en openbaar parkeren
Foto's 29
Plattegronden 2
© 2001-2026 funda






























