
BlikvangerGoed onderhouden gezinswoning met garage in de geliefde Muziekwijk
Omschrijving
* De vraagprijs dient te worden gezien als bieden vanaf prijs (starting price) *
Ben je op zoek naar een fijne instapklare gezinswoning met veel ruimte, een garage, ruime tuin en gelegen op een toplocatie in de populaire Muziekwijk? Dan is deze goed onderhouden hoekwoning aan de Willem Pijperstraat 58 zeker een bezichtiging waard.
Deze woning biedt alles wat je zoekt in een gezinswoning: maar liefst vijf slaapkamers, een moderne en luxe badkamer (2023), een eigen oprit, een ruime en diepe tuin én een heerlijke lichte woonkamer. Dankzij de vrije ligging aan zowel de voor- als achterzijde geniet je hier van veel privacy en een vrij uitzicht. De achtertuin grenst aan een rustig fietspad en de Rameaugracht.
Nieuwsgierig geworden naar deze woning? Wacht dan niet langer en neem contact op met Smink Taxatie en Makelaardij voor het inplannen van een bezichtiging! We laten je met veel enthousiasme deze leuke woning zien!
LOCATIE
De woning is gelegen centraal in de populaire Muziekwijk. Zowel het NS-treinstation als het winkelcentrum bevinden zich op loopafstand, met een uitstekende treinverbinding richting onder andere Amsterdam. Het winkelcentrum biedt een divers aanbod voor de dagelijkse boodschappen. Ook basisscholen, kinderdagverblijven en het zwembad liggen in de directe omgeving. Het bruisende centrum van Almere Stad bereik je binnen 10 minuten fietsen.
BEGANE GROND
Via de entree van de woning kom je in de ruime hal met voldoende plek voor jassen en schoenen. Je vind hier ook het separate toilet. De royale woonkamer met open keuken is heerlijk licht dankzij de brede schuifpui aan de tuinzijde. De keuken aan de voorzijde is uitgevoerd in een moderne witte kleurstelling en opgesteld in een praktische U-vorm. Deze is voorzien van diverse inbouwapparatuur zoals een inductiekookplaat, afzuigkap, vaatwasser, koelkast en vriezer. Ook is er voldoende opbergruimte.
De gehele begane grond is afgewerkt met een mooie keramische parketvloer en voorzien van vloerverwarming, wat zorgt voor extra comfort.
Via de schuifpui stap je de ruime achtertuin in. De huidige bewoners hebben extra grond aangekocht, waardoor de tuin dieper en ruimer is dan gebruikelijk – perfect voor lange zomeravonden, spelende kinderen of een gezellige barbecue met vrienden en familie.
EERSTE VERDIEPING
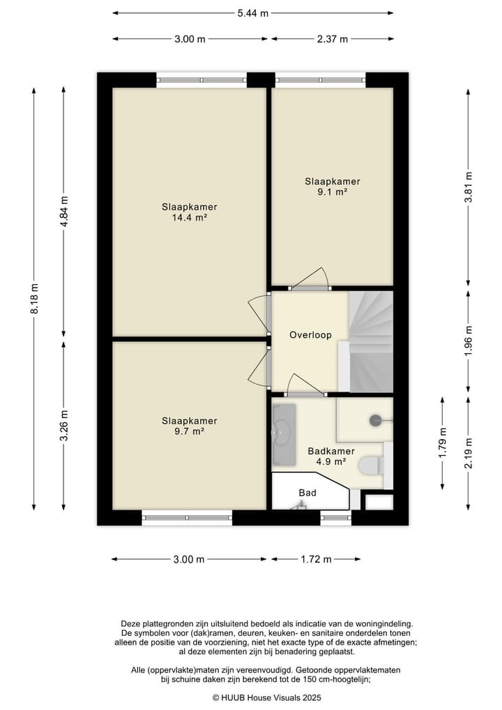
Op deze verdieping bevinden zich drie slaapkamers, waarvan twee aan de achterzijde en één aan de voorzijde. De luxe badkamer, vernieuwd in 2023, is een echte eyecatcher en beschikt over een ruime inloopdouche, ligbad, toilet en een waskom met meubel. Het strak gestucte plafond met sfeervolle inbouwspots en de vloerverwarming maken het geheel compleet.
ZOLDERVERDIEPING
Overloop met de wasmachine opstelling en toegang tot de vierde en vijfde slaapkamer. Met name de slaapkamer aan de achterzijde is licht en ruim door de geplaatste dakkapel (2023) over de gehele breedte van de woning.
BIJZONDERHEDEN:
- HOEKwoning met GARAGE
- Centraal gelegen in de geliefde Muziekwijk
- NS treinstation Muziekwijk op loopafstand
- Nabij de International School
- Bouwjaar ca. 1989
- Woonoppervlakte ca. 124 m2
- Vijf slaapkamers
- Dakkapel geplaatst in 2023
- Ruime en diepe tuin
- Alle kozijnen zijn van kunststof (m.u.v. Velux dakramen)
- Oplevering in overleg
Kenmerken
Overdracht
- Aangeboden sinds
- Aanvaarding
- In overleg
- Vraagprijs
- € 500.000 kosten koper
- Vraagprijs per m²
- € 4.032
- Status
- Beschikbaar
Bouw
- Soort woonhuis
- Eengezinswoning, hoekwoning
- Soort bouw
- Bestaande bouw
- Bouwjaar
- 1989
- Soort dak
- Zadeldak bedekt met pannen
- Keurmerken
- Energie Prestatie Advies
Oppervlakten en inhoud
- Gebruiksoppervlakten
- Wonen
- 124 m²
- Overige inpandige ruimte
- 20 m²
- Perceel
- 201 m²
- Inhoud
- 481 m³
Indeling
- Aantal kamers
- 6 kamers (5 slaapkamers)
- Aantal badkamers
- 1 badkamer en 1 apart toilet
- Badkamervoorzieningen
- Inloopdouche, ligbad, toilet, vloerverwarming, wastafel, en wastafelmeubel
- Aantal woonlagen
- 2 woonlagen en een zolder
- Voorzieningen
- Dakraam, mechanische ventilatie, natuurlijke ventilatie, schuifpui, en TV kabel
Energie
- Energielabel
- Isolatie
- Dubbel glas en HR-glas
- Verwarming
- Stadsverwarming en gedeeltelijke vloerverwarming
- Warm water
- Stadsverwarming
Kadastrale gegevens
- ALMERE K 1605
- Kadastrale kaart
- Oppervlakte
- 194 m²
- Eigendomssituatie
- Volle eigendom
- ALMERE K 7913
- Kadastrale kaart
- Oppervlakte
- 7 m²
- Eigendomssituatie
- Volle eigendom
Buitenruimte
- Ligging
- Aan rustige weg, in woonwijk en vrij uitzicht
- Tuin
- Achtertuin, voortuin en zijtuin
- Achtertuin
- 79 m² (10,17 meter diep en 7,80 meter breed)
- Ligging tuin
- Gelegen op het zuidoosten
Bergruimte
- Schuur/berging
- Aangebouwde stenen berging
- Voorzieningen
- Elektra
Garage
- Soort garage
- Aangebouwde stenen garage
- Capaciteit
- 1 auto
- Voorzieningen
- Elektra
Parkeergelegenheid
- Soort parkeergelegenheid
- Op eigen terrein en openbaar parkeren
Foto's 66
© 2001-2026 funda

































































