
Omschrijving
Wonen in een rustige straat met alle stadsvoorzieningen binnen handbereik? Dit aantrekkelijke 2-kamer appartement op de bovenste verdieping van een kleinschalig complex biedt precies dat. De woning is keurig afgewerkt, heerlijk licht en voorzien van een recent vernieuwde keuken. Voeg daar het zonnige balkon op het zuidwesten en de prettige sfeer aan toe, en je hebt een ideale plek voor comfortabel stedelijk wonen.
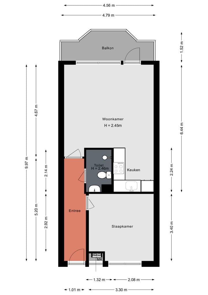
De woonkamer is ruim en licht, met een aangename sfeer waarin je je direct thuis voelt. De moderne keuken is van alle gemakken voorzien en biedt voldoende ruimte voor de liefhebber van koken. De badkamer is wat gedateerd maar functioneel. Dankzij de ligging op de bovenste verdieping heb je geen bovenburen en geniet je van optimale rust en privacy.
Het balkon op het zuidwesten biedt volop zon en is een fijne plek om te ontspannen. Het gehele appartement is voorzien van HR++ glas, wat zorgt voor extra isolatie en comfort. Op de begane grond beschik je over een praktische eigen berging, ideaal voor fietsen of extra opslag.
De locatie is uitstekend: winkels, supermarkten en de binnenstad liggen op loopafstand, en voor een wandeling of een moment in het groen ligt het Juliana van Stolbergplantsoen letterlijk om de hoek. Parkeren in de buurt is geregeld via een vergunningensysteem.
VVE bijdrage: € 200,95 per maand, excl. voorschot stookkosten van € 56,-.
Kortom, een sfeervol, goed onderhouden appartement op een geliefde plek in de stad. Ideaal voor starters, alleenstaanden of stellen die op zoek zijn naar een comfortabele woning met karakter.
Benieuwd?
Neem snel contact op voor een bezichtiging en ervaar zelf de ruimte, het licht en de fijne ligging van deze woning!
Kenmerken
Overdracht
- Laatste vraagprijs
- € 275.000 kosten koper
- Vraagprijs per m²
- € 6.111
- Status
- Verkocht
- Bijdrage VvE
- € 200,95 per maand
Bouw
- Soort appartement
- Galerijflat (appartement)
- Soort bouw
- Bestaande bouw
- Bouwjaar
- 1984
- Soort dak
- Plat dak bedekt met bitumineuze dakbedekking
Oppervlakten en inhoud
- Gebruiksoppervlakten
- Wonen
- 45 m²
- Gebouwgebonden buitenruimte
- 6 m²
- Externe bergruimte
- 3 m²
- Inhoud
- 140 m³
Indeling
- Aantal kamers
- 2 kamers (1 slaapkamer)
- Aantal badkamers
- 1 badkamer
- Badkamervoorzieningen
- Douche, toilet, en wastafel
- Aantal woonlagen
- 1 woonlaag
- Voorzieningen
- Glasvezelkabel, mechanische ventilatie, natuurlijke ventilatie, en TV kabel
- Gelegen op
- 3e woonlaag
Energie
- Energielabel
- Isolatie
- Dakisolatie, dubbel glas, HR-glas en vloerisolatie
- Verwarming
- Blokverwarming
- Warm water
- Centrale voorziening
Kadastrale gegevens
- AMERSFOORT C 5684
- Kadastrale kaart
- Eigendomssituatie
- Volle eigendom
- AMERSFOORT C 5684
- Kadastrale kaart
- Eigendomssituatie
- Volle eigendom
Buitenruimte
- Ligging
- In woonwijk en vrij uitzicht
- Balkon/dakterras
- Balkon aanwezig
Bergruimte
- Schuur/berging
- Box
Parkeergelegenheid
- Soort parkeergelegenheid
- Betaald parkeren en parkeervergunningen
VvE checklist
- Inschrijving KvK
- Ja
- Jaarlijkse vergadering
- Ja
- Periodieke bijdrage
- Ja (€ 200,95 per maand)
- Reservefonds aanwezig
- Ja
- Onderhoudsplan
- Ja
- Opstalverzekering
- Ja
Foto's 26
© 2001-2026 funda

























