
Omschrijving
Licht 2-kamerappartement met speelse indeling, zonnig balkon en vrij uitzicht
In de groene en ruim opgezette wijk Liendert ligt op de vierde etage dit fijne 2-kamerappartement. Een lichte woonplek met een speelse indeling, een zonnig balkon en een prachtig uitzicht richting het Waterwingebied. Hier woon je rustig, omgeven door groen, en sta je toch binnen vijf minuten fietsen in de Amersfoortse binnenstad.
De Trekvogelweg ligt in het hart van Liendert, een wijk met veel groen, brede straten en een ontspannen sfeer. Aan de voorkant van het gebouw kijk je uit op het prachtige Waterwingebied, ideaal voor een wandeling of hardlooprondje. Supermarkten, winkels en bushaltes liggen om de hoek en via de uitvalswegen ben je zo op de A1 en A28.
DE INDELING
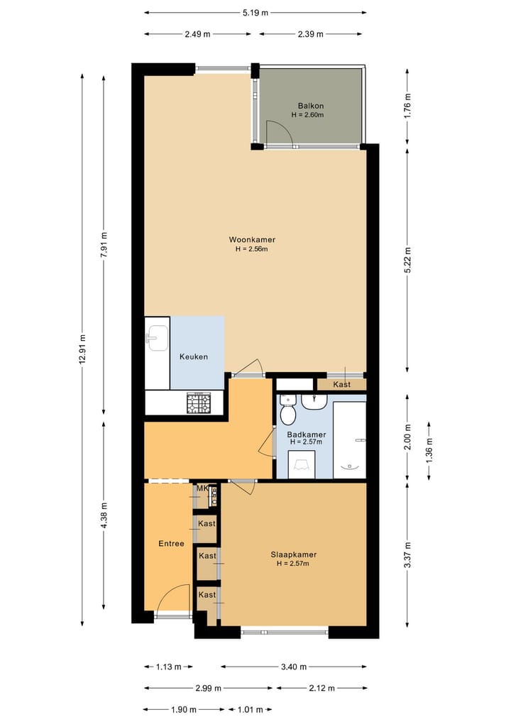
Via de hal kom je binnen in de lichte woonkamer met aangrenzende hoekkeuken. Dankzij de grote ramen en de prettige indeling voelt de ruimte open en vriendelijk aan. Vanuit de woonkamer stap je zo het zonnige balkon op, met uitzicht op de parkeerplaats en het omliggende groen.
De ruime slaapkamer ligt aan de rustige zijde van het complex en biedt genoeg plek voor een comfortabel bed en kastruimte.
De badkamer is voorzien van een ligbad, douche, toilet en wastafel. De ruimte is functioneel, maar wel verouderd, waardoor er volop mogelijkheden zijn om deze geheel naar eigen smaak te vernieuwen.
Op de eerste verdieping van het complex vind je een eigen berging.
Kom je kijken? Deze woning met jou bezichtigen vinden wij misschien wel het leukste onderdeel van ons werk, we nemen daarom alle tijd om een ronde met je te maken. Laat je verrassen, stel je vragen en wie weet… wordt dit je nieuwe thuis! Team Govaert laat het je graag zien!
Tip: schakel bij interesse altijd een NVM-aankoopmakelaar in. Die behartigt jouw belangen en bespaart je tijd, geld en zorgen. Een overzicht van collega NVM-aankoopmakelaars vind je op funda.nl.
Wij hebben het huis op de juiste plek!
WAT IS DE BETEKENIS VAN DE STRAATNAAM?
Vogel die tegen de winter naar andere, in die periode voedselrijkere streken trekt.
Kenmerken
Overdracht
- Servicekosten
- € 206 per maand
- Aangeboden sinds
- Aanvaarding
- In overleg
- Vraagprijs
- € 275.000 kosten koper
- Vraagprijs per m²
- € 4.435
- Status
- Verkocht onder voorbehoud
- Bijdrage VvE
- € 173,00 per maand
Bouw
- Soort appartement
- Galerijflat (appartement)
- Soort bouw
- Bestaande bouw
- Bouwjaar
- 1972
- Soort dak
- Plat dak bedekt met bitumineuze dakbedekking
Oppervlakten en inhoud
- Gebruiksoppervlakten
- Wonen
- 62 m²
- Gebouwgebonden buitenruimte
- 4 m²
- Externe bergruimte
- 5 m²
- Inhoud
- 197 m³
Indeling
- Aantal kamers
- 2 kamers (1 slaapkamer)
- Aantal badkamers
- 1 badkamer
- Badkamervoorzieningen
- Ligbad, toilet, en wastafel
- Aantal woonlagen
- 9 woonlagen
- Voorzieningen
- Glasvezelkabel, lift, mechanische ventilatie, en TV kabel
- Gelegen op
- 4e woonlaag
Energie
- Energielabel
- Isolatie
- Dubbel glas
- Verwarming
- Blokverwarming
- Warm water
- Centrale voorziening
Kadastrale gegevens
- AMERSFOORT A 5632
- Kadastrale kaart
- Eigendomssituatie
- Volle eigendom
Buitenruimte
- Ligging
- Aan park, aan rustige weg, in woonwijk en vrij uitzicht
- Balkon/dakterras
- Balkon aanwezig
Bergruimte
- Schuur/berging
- Box
Parkeergelegenheid
- Soort parkeergelegenheid
- Openbaar parkeren
VvE checklist
- Inschrijving KvK
- Ja
- Jaarlijkse vergadering
- Ja
- Periodieke bijdrage
- Nee
- Reservefonds aanwezig
- Ja
- Onderhoudsplan
- Ja
- Opstalverzekering
- Ja
Foto's 40
Plattegronden 2
© 2001-2026 funda









































