
Omschrijving
De populaire Zeeheldenbuurt kenmerkt zich door sfeervolle straten met volwassen groen, voornamelijk bewoond door starters en jonge gezinnen. In de binnenstad ben je met 10 minuten wandelen maar ook een supermarkt en het Zocherplantsoen vindt je in de directe omgeving. Aan de Ruijterstraat 46 (92m2 GO incl. zolder!) ben je echt onderdeel van dit jaren 30' wijkje maar heb je wel vrij zicht aan de voorzijde en woon je heerlijk rustig. Kom kijken, we laten het je graag zien!
De indeling is als volgt: in de voortuin is ruimte voor een gezellig zitje bij de entree van de woning. Via de hal met toegang tot het toilet, de kelderkast en de trapopgang is de leefruimte bereikbaar. De keuken is ooit verplaatst naar de voorzijde van de woning waardoor er een veel praktischer opzet is gerealiseerd en je meer leefruimte overhoudt aan de achterzijde. De keuken is uitgerust met diverse inbouwapparatuur zoals een koel/vrieskast, gaskookplaat met afzuigkap, vaatwasmachine en combioven. De tuingerichte woonkamer is goed ruim en lekker licht en grenst aan de tuinzijde. In de tuin is het goed toeven in de middag en avondzon, er is genoeg bergruimte aanwezig en een achterom.
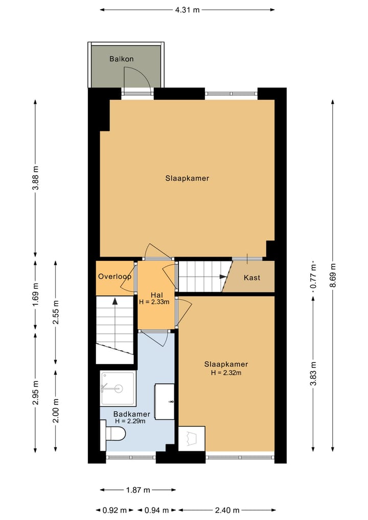
Verdieping 1: overloop, 2 ruime slaapkamers, waarvan één met balkon en de badkamer is voorzien van een inloopdouche, wastafel en 2e toilet.
Verdieping 2: deze open zolderruimte is bereikbaar via een vaste trap. Je kunt hier met dakramen maar -nog beter- met een XL dakkapel een volwaardige zolder creëren!
Kom je kijken? We laten je dit super leuke huis graag zien!
BETEKENIS VAN DE STRAATNAAM: Michiel Adriaanszoon de Ruijter, eigenlijk de Ruyter, bijgenaamd Bestevaer, 1607-1676, Nederlands vlootvoogd, luitenant-admiraal van Holland sinds 1665. De beroemde tocht naar Chatham (1667) is voor een belangrijk deel zijn verdienste; geldt als oprichter van het korps mariniers. De straat werd aanvankelijk Admiraal de Ruyterstraat genoemd.
Kom je kijken? Deze woning met jou bezichtigen vinden wij misschien wel het leukste onderdeel van ons werk, we nemen daarom alle tijd om een ronde met je te maken. Laat je verrassen, stel je vragen en wie weet… wordt dit je nieuwe thuis! Team Govaert laat het je graag zien!
Overweeg je zelf een volgende stap, ben je benieuwd naar de actuele waarde van je huidige woning? We adviseren je graag. Plan een vrijblijvende afspraak voor een verkoopadvies of kosteloze waardebepaling.
Tip: schakel bij interesse altijd een NVM-aankoopmakelaar in. Die behartigt jouw belangen en bespaart je tijd, geld en zorgen. Een overzicht van collega NVM-aankoopmakelaars vind je op funda.nl.
Govaert Makelaardij heeft het huis op de juiste plek!
Kenmerken
Overdracht
- Laatste vraagprijs
- € 475.000 kosten koper
- Vraagprijs per m²
- € 6.090
- Status
- Verkocht
Bouw
- Soort woonhuis
- Eengezinswoning, tussenwoning
- Soort bouw
- Bestaande bouw
- Bouwjaar
- 1936
- Soort dak
- Zadeldak bedekt met pannen
Oppervlakten en inhoud
- Gebruiksoppervlakten
- Wonen
- 78 m²
- Overige inpandige ruimte
- 14 m²
- Gebouwgebonden buitenruimte
- 3 m²
- Externe bergruimte
- 6 m²
- Perceel
- 124 m²
- Inhoud
- 320 m³
Indeling
- Aantal kamers
- 4 kamers (3 slaapkamers)
- Aantal badkamers
- 1 apart toilet
- Aantal woonlagen
- 3 woonlagen
- Voorzieningen
- Glasvezelkabel, mechanische ventilatie, natuurlijke ventilatie, en TV kabel
Energie
- Energielabel
- Isolatie
- Dubbel glas en vloerisolatie
- Verwarming
- Cv-ketel en gedeeltelijke vloerverwarming
- Warm water
- Cv-ketel
- Cv-ketel
- Remeha Calenta (gas gestookt combiketel uit 2012, eigendom)
Kadastrale gegevens
- AMERSFOORT G 2939
- Kadastrale kaart
- Oppervlakte
- 124 m²
- Eigendomssituatie
- Volle eigendom
Buitenruimte
- Ligging
- Aan rustige weg en in woonwijk
- Tuin
- Achtertuin en voortuin
- Achtertuin
- 32 m² (7,00 meter diep en 4,50 meter breed)
- Ligging tuin
- Gelegen op het zuidwesten bereikbaar via achterom
- Balkon/dakterras
- Balkon aanwezig
Bergruimte
- Schuur/berging
- Vrijstaande houten berging
Parkeergelegenheid
- Soort parkeergelegenheid
- Openbaar parkeren
Foto's 43
© 2001-2026 funda










































