
Omschrijving
Dit is hem! We hopen dat jij net zo enthousiast wordt als wij van deze 2/1 kap binnen het populaire wijkje “De Kattekampen”! De wijk wordt ook wel de diamant van Amersfoort genoemd, naar de vorm van de straten. De ligging precies tussen de binnenstad én Stadspark Randenbroek kan eigenlijk niet veel beter.
De naam “De Kattekampen” is de oude naam van een mooi jaren’30 wijkje in Amersfoort, bestaande uit de Reigerstraat, Zwaanstraat, Kalkoenstraat, Pauwstraat, een deel van de Bisschopsweg en dit deel van de aangrenzende Heiligenbergerweg. Op het pleintje ontmoet je elkaar onder de boom, midden in de wijk voor een borrel of een goed gesprek en kinderen kunnen daar nog gewoon onbezorgd op straat spelen! De ligging is echt super, pal naast het Stadspark Randenbroek. Winkelcentrum Euterpeplein en de binnenstad zijn maar een paar minuten lopen.
Deze charmante 2-onder-1-kapwoning uit 1924 heeft veel sfeer maar geeft je dankzij de moderniseringen sinds 2005 ook alle comfort van nu. Authentieke elementen zoals zoals de paneeldeuren, glas-in-loodramen en originele vloeren zijn met veel liefde behouden. Met een woonoppervlakte van maar liefst 145m² en een perceel van 259 m² is dit een plek waar je je direct thuis zult voelen. Verhuizen? Dat kan hier zonder al te veel klussen!
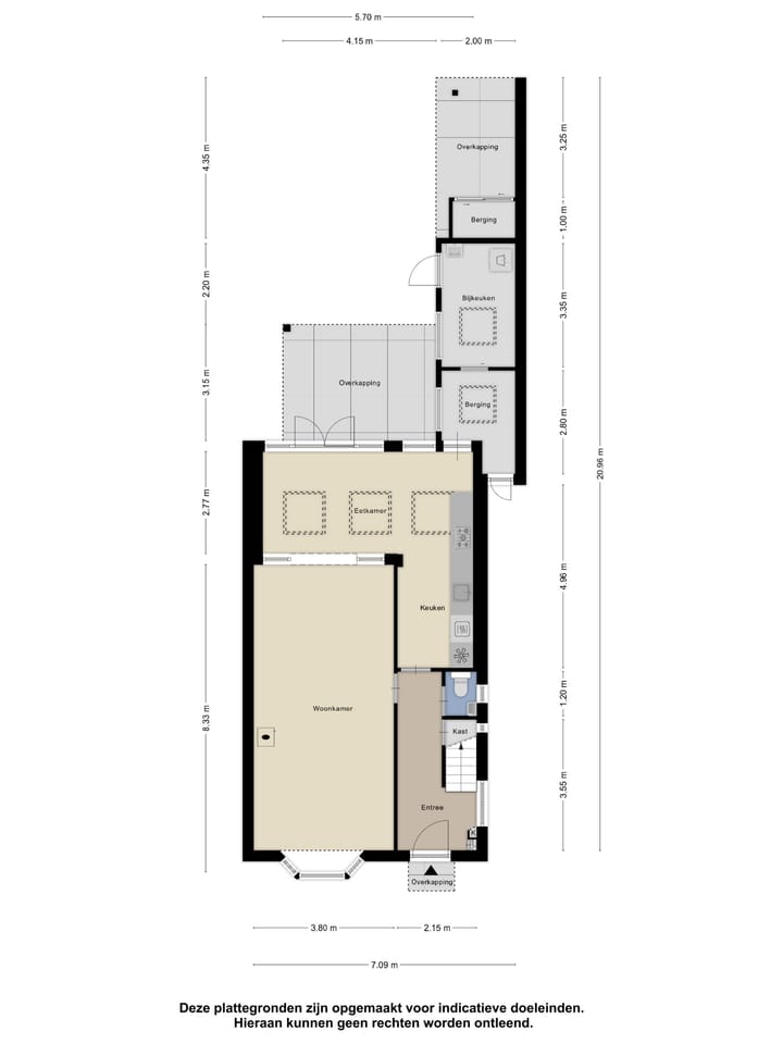
De Indeling is als volgt: je wordt welkom geheten in de hal met zijraam in glas-in-lood, originele granitovloer, gemoderniseerd toilet en praktische kelderkast. De lichte woonkamer is een heerlijke leefruimte me eiken parketvloer, een sfeervolle erker met glas-in-lood, pelletkachel en convectorputten. Via de voormalige achterdeur mét glas-in-lood ramen nog in het zicht bereik je de royale uitgebouwde eetkamer met drie dakkoepels voor een heerlijke lichtinval, misschien is dit wel de plek waar je met je gezin het meest bent te vinden.
De open keuken is strak uitgevoerd met een composieten werkblad, voorzien van alle benodigde inbouwapparatuur en een stijlvolle glas-in-looddeur naar de hal. Achter de woning vind je een handig portaal met zijentree, tuindeur en een bijkeuken met kastenwand, uitstortgootsteen en plek voor de wasmachine.
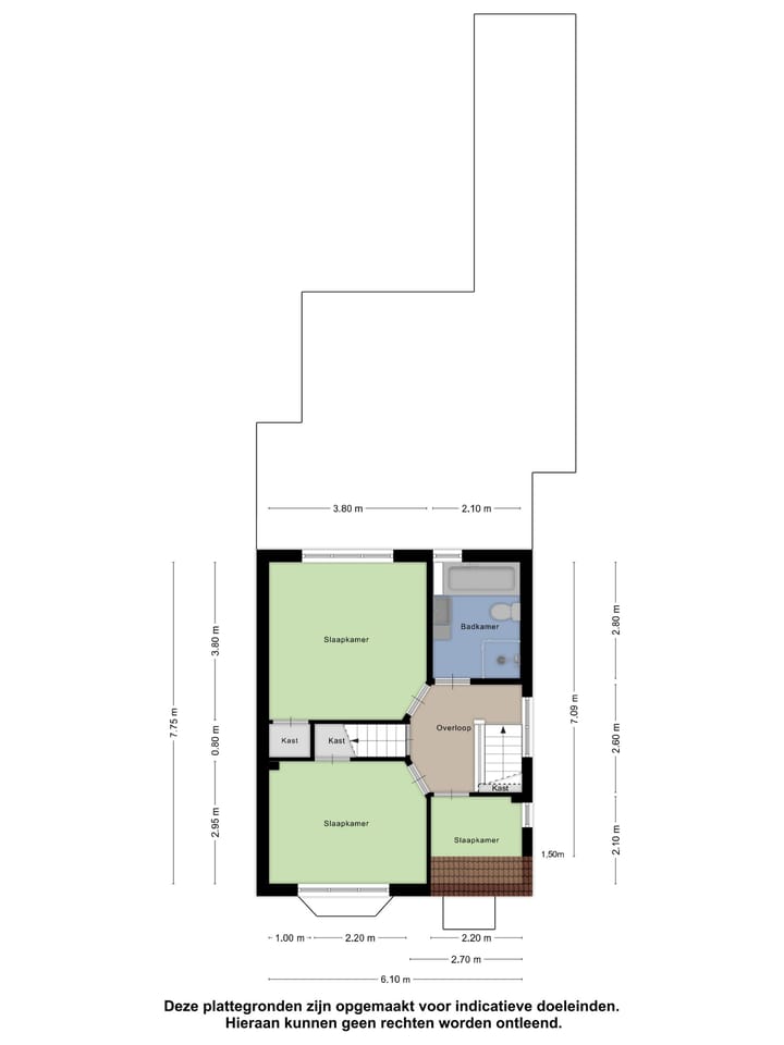
Verdieping 1: overloop met zijraam en drie slaapkamers, waarvan twee met vaste kasten. De moderne badkamer is voorzien van een duo-ligbad, douchecabine, tweede toilet, wastafel en designradiator. De hele verdieping is belegd met een warme eiken lamelparketvloer.
Verdieping 2: een verrassend ruime voorzolder met werkplek, wastafel, veel bergruimte én een nokhoogte van maar liefst 3 meter. Dankzij de dakkapel (2010) is deze verdieping heerlijk licht. Ook vind je hier de stookruimte met HR-combiketel (Vaillant, 2013) en een royale slaapkamer met brede dakkapel.
Buiten: de fraai aangelegde tuin ligt perfect op het zuidwesten en is een heerlijke plek om te genieten. Fruitbomen zoals een appelboom en een druif maken het plaatje compleet.
Kom kijken, we laten het je graag zien!
Interesse in deze woning? Schakel direct een NVM-aankoopmakelaar in. Een NVM-aankoopmakelaar komt op voor jouw belang en bespaart je tijd, geld en zorgen! Adressen van collega NVM-aankoopmakelaars vind je op funda.nl
Wanneer je overweegt om je eigen woning te verkopen of wanneer je benieuwd bent naar de actuele waarde, maak dan een afspraak met ons voor een vrijblijvend verkoopadvies of een kosteloze waardebepaling. Govaert Makelaardij heeft het huis op de juiste plek!
WAAR KOMT DE STRAATNAAM VANDAAN? Deze eeuwenoude weg voert naar de Heiligenberg onder Leusden, waar bisschop Ansfried rond het jaar 1000 een klooster stichtte. Tot in de negentiende eeuw ook Driesjespoortweg genoemd en gedeeltelijk ook aangeduid als Randenbroekerweg.
Kenmerken
Overdracht
- Laatste vraagprijs
- € 885.000 kosten koper
- Vraagprijs per m²
- € 6.103
- Status
- Verkocht
Bouw
- Soort woonhuis
- Eengezinswoning, 2-onder-1-kapwoning
- Soort bouw
- Bestaande bouw
- Bouwjaar
- 1924
- Soort dak
- Zadeldak bedekt met pannen
Oppervlakten en inhoud
- Gebruiksoppervlakten
- Wonen
- 145 m²
- Overige inpandige ruimte
- 15 m²
- Gebouwgebonden buitenruimte
- 21 m²
- Externe bergruimte
- 2 m²
- Perceel
- 259 m²
- Inhoud
- 514 m³
Indeling
- Aantal kamers
- 5 kamers (4 slaapkamers)
- Aantal badkamers
- 1 badkamer
- Badkamervoorzieningen
- Douche, ligbad, toilet, wastafel, en wastafelmeubel
- Aantal woonlagen
- 3 woonlagen
- Voorzieningen
- Glasvezelkabel, mechanische ventilatie, en TV kabel
Energie
- Energielabel
- D
- Isolatie
- Dakisolatie, dubbel glas en vloerisolatie
- Verwarming
- Cv-ketel
- Warm water
- Cv-ketel
- Cv-ketel
- Valliant Ecotec Plus (gas gestookt combiketel uit 2013, eigendom)
Kadastrale gegevens
- AMERSFOORT G 167
- Kadastrale kaart
- Oppervlakte
- 259 m²
- Eigendomssituatie
- Volle eigendom
Buitenruimte
- Ligging
- In woonwijk
- Tuin
- Achtertuin
- Achtertuin
- 90 m² (15,00 meter diep en 6,00 meter breed)
- Ligging tuin
- Gelegen op het zuidwesten bereikbaar via achterom
Bergruimte
- Schuur/berging
- Aangebouwde stenen berging
- Voorzieningen
- Elektra en stromend water
Parkeergelegenheid
- Soort parkeergelegenheid
- Parkeervergunningen
Foto's 39
© 2001-2025 funda






































