Dit huis op Funda: https://www.funda.nl/detail/koop/amersfoort/huis-linnaeus-serre-5/43080593/

Omschrijving
Het is een bijzondere ervaring als je de enorme serre binnenkomt van dit woonproject. Deze serre, die rijkelijk is voorzien van grote palmstruiken, vormt de gezamenlijke entree van de 18 serre-woningen. Het eigenzinnige project ligt centraal in Kattenbroek. Deze wijk staat bekend als de architectuurwijk van Amersfoort vanwege de planologische structuur en de vele bijzondere woningontwerpen, waaronder dit serre-project. Het project is één van de negen wintertuinen die in 1992 zijn gebouwd. De Linnaeus-serre bestaat uit twee rijtjes van negen woningen die met elkaar in verbinding staan door middel van een overkapping; de serre. De verspringende voorgevels markeren een optische scheiding tussen de woningen en een opvallend detail is het balkon op de eerste verdieping. De woning beschikt over maar liefst 119m2 woonoppervlak. Loop je mee?
I N D E L I N G
Je begint bij de centrale entree. Hier zijn de brievenbussen en de videobel. Na binnenkomst sta je in de serre en loop je tot halverwege, links. Ondertussen passeer je diverse grote planten en de voordeuren van de buurhuizen. Je kan eventueel gebruikmaken van de deur aan de achterzijde van het pand maar dat is geen officiële ingang.
BEGANE GROND, bij binnenkomst van de woning sta je in de hal. Met een oppervlak van ruim 9m2 mag je dit gerust een gastvrije hal noemen. Hier is de meterkast en rechts is een deur naar de inpandige berging. Naast voldoende bergruimte en plek voor een extra vriezer, staat hier ook de wasapparatuur.
In de hal vind je ook een WC (met fonteintje) en. onder de trapopgang, de garderobe. Dan is er ook nog een ruime kamer. Nu is deze kamer in gebruik als praktijkruimte maar het is ook een fantastische tuinkamer. Via de deur loop je zo de achtertuin in. Deze tuin is eigenlijk een groot terras van 27m2, betegeld en gelegen op het zuidoosten. Er staan diverse planten en een bescheiden plataan, die heel goed functioneert als parasol. Hier kun je vrijwel de hele dag van de zon genieten.
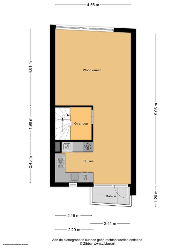
Via de trap in de hal kom je op de..;
1E VERDIEPING, hier ben je op de verdieping met de woonkamer en keuken. De lichte en zonnige zitkamer is zo’n 26 m2 groot en van hieruit kijk je op het terras. De woonkamer, waar makkelijk plaats is voor een flinke eettafel, loopt over in het keukengedeelte. De keuken ligt over de gehele breedte van de woning en is zo’n 11 m2 groot. Het is een hoek opgestelde keuken met kastruimten en apparatuur. Hier is de deur naar het balkon, wat je al zag toen je naar de voordeur liep. Grappig idee, een balkon in de serre. Ga je via trap verder, dan kom je op de..;
2E VERDIEPING, je gaat via de overloop naar drie slaapkamers van 6, 10 en 13m2 en naar een badkamer met inloopdouche, WC en het dubbele wastafel-meubel (2024). Op deze verdieping vind je ook de Cv-ketel (Intergas Kombi Kompakt, 2010).
O M G E V I N G
De ligging is perfect. Het uitgebreide winkelcentrum Emiclaer, nagenoeg om de hoek, biedt een groot gevarieerd winkelaanbod. Er zijn scholen in de directe nabijheid aanwezig. Soms zelfs op loopafstand. Met de auto ben je in enkele minuten op de snelweg A1/A28 en NS-station Amersfoort-Schothorst bereik je binnen enkele minuten op de fiets. Daarnaast biedt de omgeving volop mogelijkheden voor sport en recreatie. Denk aan voetbal, tennis, de wielerbaan en een groot fitnesscentrum. Ook ben je zo in Park Schothorst, een prachtig natuurgebied met wandelpaden, een natuurspeeltuin en een vliegerveld. (Wist je dat, sinds 3 weken elke week, vanuit hier het radioprogramma ‘Vroege Vogels’ wordt uitgezonden!?) Binnen een kwartier fietsen sta je in de historische binnenstad van Amersfoort.
B I J Z O N D E R H E D E N
De woning maakt onderdeel uit van een VVE (Vereniging Van Eigenaren). Dat betekent dat dingen die je normaal als huiseigenaar moet doen, in overleg worden georganiseerd. Denk daarbij aan bijvoorbeeld verzekering en onderhoud van het gebouw, inclusief de serre. Daar betaal je maandelijks een bedrag van ongeveer €170,00 voor.
W E L K O M
Er valt veel te vertellen over de opzet van de wijk, de beleving van het wonen in Kattenbroek of de toegepaste architectuur maar het beste is om het zelf te komen ervaren. Je bent van harte welkom.
Kenmerken
Overdracht
- Laatste vraagprijs
- € 459.000 kosten koper
- Vraagprijs per m²
- € 3.857
- Status
- Verkocht
Bouw
- Soort woonhuis
- Eengezinswoning, tussenwoning
- Soort bouw
- Bestaande bouw
- Bouwjaar
- 1992
- Soort dak
- Plat dak
Oppervlakten en inhoud
- Gebruiksoppervlakten
- Wonen
- 119 m²
- Gebouwgebonden buitenruimte
- 3 m²
- Inhoud
- 420 m³
Indeling
- Aantal kamers
- 5 kamers (4 slaapkamers)
- Aantal badkamers
- 1 badkamer en 1 apart toilet
- Badkamervoorzieningen
- Dubbele wastafel, inloopdouche, toilet, en wastafelmeubel
- Aantal woonlagen
- 3 woonlagen
- Voorzieningen
- Glasvezelkabel, mechanische ventilatie, en TV kabel
Energie
- Energielabel
- Isolatie
- Dakisolatie, grotendeels dubbelglas, muurisolatie en vloerisolatie
- Verwarming
- Cv-ketel
- Warm water
- Cv-ketel
- Cv-ketel
- Intergas Kombi Kompakt (gas gestookt combiketel uit 2010, eigendom)
Kadastrale gegevens
- AMERSFOORT O 7912
- Kadastrale kaart
- Eigendomssituatie
- Volle eigendom
Buitenruimte
- Tuin
- Achtertuin en zonneterras
- Achtertuin
- 26 m² (5,70 meter diep en 4,55 meter breed)
- Ligging tuin
- Gelegen op het zuidoosten bereikbaar via achterom
- Balkon/dakterras
- Balkon aanwezig
Bergruimte
- Schuur/berging
- Inpandig
- Voorzieningen
- Elektra, verwarming en stromend water
- Isolatie
- Dakisolatie, dubbel glas, gedeeltelijk dubbel glas, geen spouw, muurisolatie, vloerisolatie en volledig geïsoleerd
Parkeergelegenheid
- Soort parkeergelegenheid
- Openbaar parkeren
Foto's 35
© 2001-2026 funda


































