Dit huis op Funda: https://www.funda.nl/detail/koop/amersfoort/huis-winstongaarde-1/43722588/

Omschrijving
Op een geliefde locatie in de wijk Nieuwland tref je deze nette uitgebouwde hoekwoning. De woning is gelegen aan een rustige straat en heeft een fijne leefruimte op de begane grond en een ruime voor- en achtertuin. De woonomgeving heeft veel groen, een grote vijverpartij en veel speelruimte voor kinderen. Het winkelcentrum, scholen, kinderopvang, medische en overige voorzieningen zijn op korte afstand van de woning. Ook het openbaar vervoer heeft goede verbindingen evenals de opritten naar de snelwegen (A1 en A28). Er is voldoende openbare parkeergelegenheid in de directe omgeving.
Indeling:
Begane grond
Entree, hal met meterkast, garderobe en toegang tot de woonkamer. Aan de voorzijde van de woning bevindt zich de sfeervolle woonkamer. Door de uitbouw en de fraaie raampartijen is dit een lichte en prettige ruimte. De half open keuken bevindt zich aan de achterzijde van de woning en is voorzien van diverse inbouwapparatuur waaronder een koelkast, oven, vaatwasser en een 4-pits kookplaat met afzuigkap. De apparatuur is in 2021 en 2022 grotendeels vervangen. Tweede hal met trapopgang en gemoderniseerd toilet met fonteintje.
Eerste verdieping
Overloop met toegang tot de 3 slaapkamers en badkamer. De grootste slaapkamer is over de volle breedte van de woning en heeft een grote inbouwkast. De badkamer is praktisch ingedeeld en voorzien van een ligbad met douchecombinatie, wastafel met meubel en toilet. Door de hoekligging heeft de badkamer een raam wat zorgt voor natuurlijke ventilatie en licht. Tevens is er mechanische ventilatie
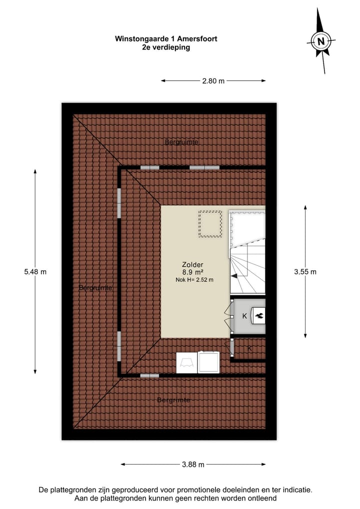
Tweede verdieping
Middels een vaste trap bereikt u de tweede verdieping. Met wat aanpassingen is het mogelijk om hier een vierde slaapkamer te maken. Door het plaatsen van een dakkapel ontstaat er meer stahoogte en is het een ruime slaapkamer. Hier is nu veel bergruimte en bevindt zich hier de cv-ketel en de aansluitingen voor de wasmachine en de droger.
Tuin
De woning beschikt zowel over een ruime voortuin als een diepe achtertuin met een achterom. De achtertuin is afgewisseld met bestrating en groenborders. Achterin de tuin bevindt zich een houten berging met elektra. Het prettige aan deze tuin is dat er altijd de mogelijkheid is om zowel in de zon als in de schaduw te zitten.
Aan de voorzijde is een laadpaal voor de elektrische auto geïnstalleerd en is er een klein terras met een zitje.
Kenmerken
- Bouwjaar 1994
- Woonoppervlakte105 m²
- Perceeloppervlakte 193m²
- 3 slaapkamers met mogelijkheid voor 4e slaapkamer
- Diepe achtertuin met achterom
- Gelegen aan een rustige straat nabij alle voorzieningen
- laadpaal elektrische auto aan de voorzijde
Kenmerken
Overdracht
- Laatste vraagprijs
- € 445.000 kosten koper
- Vraagprijs per m²
- € 4.238
- Status
- Verkocht
Bouw
- Soort woonhuis
- Eengezinswoning, hoekwoning
- Soort bouw
- Bestaande bouw
- Bouwjaar
- 1994
- Soort dak
- Schilddak bedekt met pannen
Oppervlakten en inhoud
- Gebruiksoppervlakten
- Wonen
- 105 m²
- Externe bergruimte
- 7 m²
- Perceel
- 193 m²
- Inhoud
- 374 m³
Indeling
- Aantal kamers
- 4 kamers (3 slaapkamers)
- Aantal badkamers
- 1 badkamer en 1 apart toilet
- Badkamervoorzieningen
- Ligbad, toilet, en wastafelmeubel
- Aantal woonlagen
- 3 woonlagen
- Voorzieningen
- Dakraam, glasvezelkabel, mechanische ventilatie, natuurlijke ventilatie, rookkanaal, en TV kabel
Energie
- Energielabel
- B
- Isolatie
- Dakisolatie, dubbel glas, HR-glas, muurisolatie, vloerisolatie en volledig geïsoleerd
- Verwarming
- Cv-ketel
- Warm water
- Cv-ketel
- Cv-ketel
- Remeha avanta (gas gestookt combiketel uit 2010, eigendom)
Kadastrale gegevens
- AMERSFOORT O 4488
- Kadastrale kaart
- Oppervlakte
- 193 m²
- Eigendomssituatie
- Volle eigendom
Buitenruimte
- Ligging
- Aan rustige weg en in woonwijk
- Tuin
- Achtertuin en voortuin
- Achtertuin
- 69 m² (12,50 meter diep en 5,50 meter breed)
- Ligging tuin
- Gelegen op het noorden bereikbaar via achterom
Bergruimte
- Schuur/berging
- Vrijstaande houten berging
- Voorzieningen
- Elektra
- Isolatie
- Geen isolatie
Parkeergelegenheid
- Soort parkeergelegenheid
- Openbaar parkeren
Foto's 31
© 2001-2025 funda






























