
Westhove 1401187 DB AmstelveenKastelenbuurt
€ 380.000 k.k.
BlikvangerLicht, luxe en comfort in een groene omgeving in Amstelveen!
Omschrijving
Welkom aan de Westhove 140. Licht, luxe en comfort in Amstelveen
Ben je op zoek naar een instapklaar, modern en duurzaam appartement in een rustige groene omgeving, maar toch met alles binnen handbereik? Dan is dit jouw kans.
LET OP: Heeft u interesse in deze woning? Plan dan heel eenvoudig zelf een bezichtiging in via ONZE EIGEN WEBSITE (SNOEP MAKELAARDIJ)
Ga naar “Ons aanbod” en klik op “plan direct je bezichtiging”. Wel zo handig en snel geregeld!
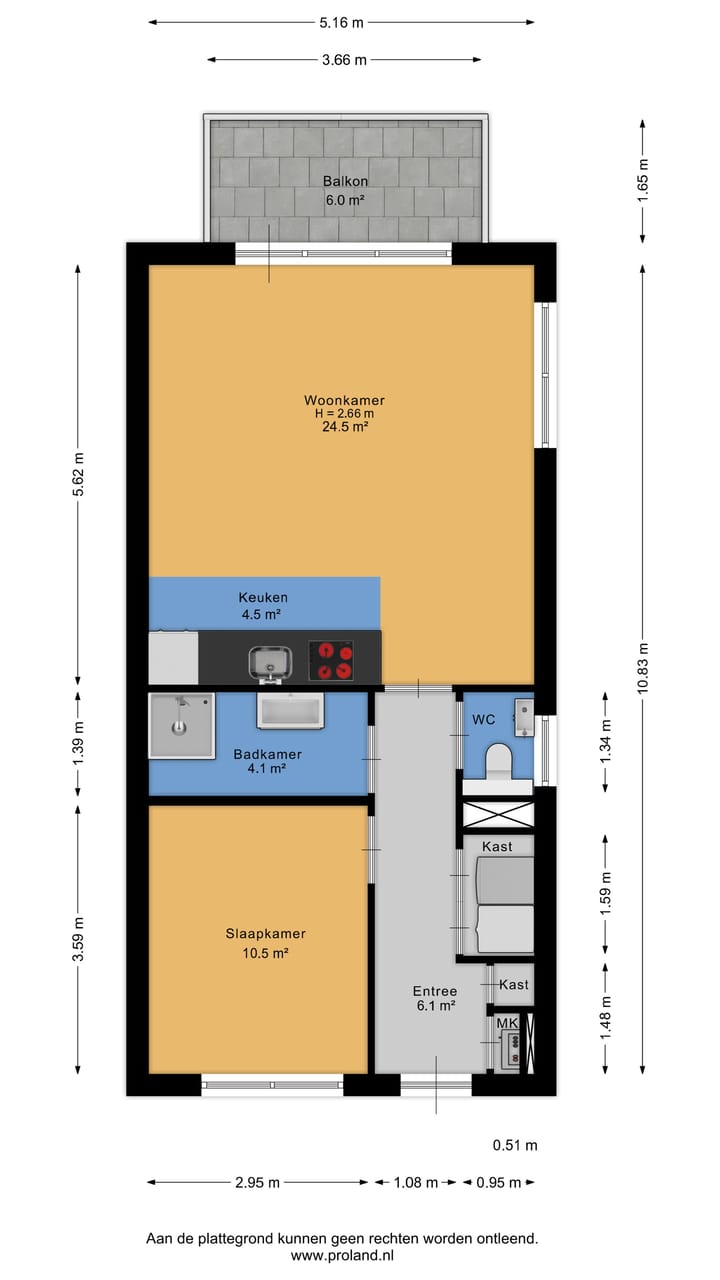
Dit strak afgewerkte en energiezuinige 2-kamer appartement van circa 55 m² ligt op de derde verdieping van een verzorgd appartementencomplex uit 2014 in de geliefde wijk Westwijk. Het royale balkon op het westen, de vloerverwarming en verkoeling, de moderne keuken en het prachtige vrije uitzicht zorgen voor ultiem wooncomfort.
Wonen:
Stap binnen en ervaar meteen de rust en ruimte. De hal is ruim en voorzien van garderobekasten, een aparte berging met warmtepompinstallatie en een separaat toilet. Vanuit hier betreed je de lichte en sfeervolle woonkamer met grote raampartijen en directe toegang tot het zonnige balkon.
De open keuken sluit perfect aan bij de woonkamer en biedt volop kastruimte, moderne inbouwapparatuur en een fijne werkplek voor de thuiskok. Een gezellige eethoek past hier met gemak, net als een comfortabele zithoek.
Het balkon op het westen is een heerlijk verlengstuk van je woonkamer: ruim, beschut en met een prachtig uitzicht op het groen. Hier geniet je van zon in de middag en avond, en in alle rust van een kop koffie of een goed glas wijn.
Slapen en baden:
De ruime slaapkamer aan de voorzijde biedt genoeg plek voor een groot bed en een royale kledingkast. Via de hal heb je direct toegang tot de verzorgde badkamer, voorzien van douchecabine en wastafel.
Duurzaam wonen:
Dankzij het warmtepompsysteem geniet je hier van vloerverwarming en koeling. Het hele jaar door een aangename temperatuur, zonder gas. In combinatie met de uitstekende isolatie en energielabel A is dit appartement toekomstbestendig en vriendelijk voor je energierekening.
Locatie en bereikbaarheid:
Westhove 140 ligt in de rustige en ruim opgezette Kastelenbuurt, onderdeel van de populaire wijk Westwijk in Amstelveen-Zuid. Hier woon je heerlijk groen en toch centraal.
* Op loopafstand van winkelcentrum Westwijk met supermarkten, winkels en horeca
* Nabij basisscholen, sportverenigingen en kinderopvang
* Slechts 15 minuten fietsen naar het Stadshart Amstelveen
* Tramlijn 25 en diverse busverbindingen brengen je snel naar Amsterdam Zuid of verder
* Uitstekende bereikbaarheid via A9, A10, A4 en Schiphol ligt op slechts 15 minuten rijden
* Binnen no-time ben je in de bruisende stad Amsterdam, maar kom je thuis in alle rust
* Dicht bij het Amsterdamse Bos, de Amstel en de Westeinderplassen voor liefhebbers van wandelen, fietsen, natuur en watersport
Vereniging van Eigenaren:
Het appartement maakt deel uit van de actieve en financieel gezonde VvE Square, bestaande uit 20 appartementen. De maandelijkse servicekosten bedragen circa 184,55 euro. Er is een meerjarenonderhoudsplan aanwezig en het onderhoud wordt keurig bijgehouden.
Highlights:
Bouwjaar 2014
Woonoppervlakte circa 55 m²
Verwarming en koeling via eigen warmtepomp
Energielabel A
Zonnig balkon op het westen
Ruime slaapkamer
Privéberging op de begane grond
Vrij parkeren, geen vergunning nodig
Snelle oplevering mogelijk
Tip van de makelaar:
Ben je starter, stel of alleenstaande en zoek je een instapklare woning met comfort en lage lasten? Dan zit je hier goed. Door het duurzame verwarmings- en koelsysteem is dit appartement niet alleen heerlijk om in te wonen, maar ook een slimme investering voor de toekomst.
Westhove 140, hier wil je wonen:
Of je nu op zoek bent naar rust, ruimte, duurzaamheid of bereikbaarheid: deze woning heeft het allemaal. Maak snel een afspraak voor een bezichtiging en ervaar zelf de sfeer, het comfort en het uitzicht. Je bent van harte welkom.
Disclaimer:
Deze woning is gemeten volgens de Meetinstructie, gebaseerd op NEN2580. Ondanks alle zorg kunnen er meetverschillen optreden. De genoemde oppervlaktes zijn indicatief. Er kunnen geen rechten aan worden ontleend. Bij twijfel adviseren wij eigen opmeting.
Informatie is met zorg samengesteld. Aan onvolledigheid of onjuistheid kunnen geen rechten worden ontleend. VBO-voorwaarden zijn van toepassing.
See English version below:
Welcome to Westhove 140 , Bright, Stylish and Comfortable Living in Amstelveen
Looking for a move-in-ready, modern and sustainable apartment in a peaceful green setting, yet with all amenities close at hand? This is your opportunity.
This well-maintained and energy-efficient 1-bedroom apartment of approximately 55 sqm is located on the third floor of a contemporary apartment complex built in 2014, in the popular Westwijk neighbourhood. With a spacious west-facing balcony, underfloor heating and cooling, a modern kitchen and an unobstructed green view, this home offers ultimate comfort.
PLEASE NOTE: Are you interested in this property? You can easily schedule a viewing yourself via OUR OWN WEBSITE (SNOEP MAKELAARDIJ).
Go to “Ons aanbod” and click on “plan direct je bezichtiging”. Quick and convenient!
Living:
Step inside and immediately feel the sense of calm and space. The hallway is generous and includes fitted wardrobes, a separate utility room with the heat pump system and a separate toilet. From here, you enter the bright and welcoming living room, which features large windows and direct access to the sunny balcony.
The open-plan kitchen blends seamlessly into the living space and is equipped with modern built-in appliances, plenty of storage, and ample workspace. There's plenty of room for a cozy dining area and a comfortable sitting area.
The west-facing balcony is a true extension of your living room: spacious, sheltered and offering a green, unobstructed view. Enjoy afternoon and evening sun in complete privacy with a coffee or glass of wine in hand.
Sleeping and bathroom:
The spacious bedroom at the front of the apartment easily fits a double bed and a large wardrobe. The well-maintained bathroom, accessible via the hallway, features a shower and a washbasin.
Sustainable living:
Thanks to the individual heat pump system, you benefit from both underfloor heating and cooling, ensuring year-round comfort without the use of gas. Combined with excellent insulation and energy label A, this home is both future-proof and energy efficient.
Location and accessibility:
Westhove 140 is located in the quiet and spacious Kastelenbuurt, part of the sought-after Westwijk area in southern Amstelveen. A peaceful environment, yet centrally located.
* Within walking distance of the Westwijk shopping center with supermarkets, shops and restaurants
* Close to several primary schools, childcare centers and sports facilities
* Only 15 minutes by bike to the Amstelveen city center
* Excellent public transport options including tram line 25 and multiple bus routes to Amsterdam and beyond
* Quick access to the A9, A10 and A4 motorways
* Schiphol Airport is just 15 minutes away by car
* Amsterdam city center is within easy reach, yet you come home to peace and green surroundings
* Close to the Amsterdamse Bos, the Amstel River and the Westeinderplassen for walking, cycling and water sports
Homeowners' association:
The apartment is part of a well-managed and financially sound HOA called 'Square', consisting of 20 apartments. Monthly service charges are approximately 184.55 euros. A multi-year maintenance plan is in place and the building is well maintained.
Highlights:
* Built in 2014
* Living space approximately 55 sqm
* Heating and cooling via private heat pump
* Energy label A
* West-facing balcony
* Spacious bedroom
* Private storage room on the ground floor
* Free parking, no permit required
* Available for a quick move-in
Agent’s tip:
Are you a first-time buyer, a couple or single professional looking for a comfortable, energy-efficient apartment with low monthly costs? Then this property is a smart and future-ready choice.
Westhove 140, a place you'll love to call home
Whether you're after comfort, peace, sustainability or excellent connectivity, this home ticks all the boxes. Book a viewing and experience the space, light and convenience for yourself. We’d love to welcome you.
Disclaimer:
This property has been measured according to the Measurement Instruction based on NEN2580. Despite our care, measurement deviations may occur. The stated floor areas are indicative and no rights can be derived from them. In case exact dimensions are important to you, we recommend conducting your own measurements.
All information has been compiled with care. However, no liability is accepted for any inaccuracies or omissions. VBO conditions apply.
Kenmerken
Overdracht
- Aangeboden sinds
- Aanvaarding
- In overleg
- Vraagprijs
- € 380.000 kosten koper
- Vraagprijs per m²
- € 6.909
- Status
- Beschikbaar
- Bijdrage VvE
- € 184,55 per maand
Bouw
- Soort appartement
- Portiekflat (service flat)
- Soort bouw
- Bestaande bouw
- Bouwjaar
- 2014
- Soort dak
- Plat dak bedekt met bitumineuze dakbedekking
Oppervlakten en inhoud
- Gebruiksoppervlakten
- Wonen
- 55 m²
- Gebouwgebonden buitenruimte
- 6 m²
- Externe bergruimte
- 3 m²
- Inhoud
- 190 m³
Indeling
- Aantal kamers
- 2 kamers (1 slaapkamer)
- Aantal badkamers
- 1 badkamer en 1 apart toilet
- Badkamervoorzieningen
- Douche, dubbele wastafel, en wastafelmeubel
- Aantal woonlagen
- 1 woonlaag
- Voorzieningen
- Mechanische ventilatie, natuurlijke ventilatie, en TV kabel
- Gelegen op
- 3e woonlaag
Energie
- Energielabel
- A++
- Verwarming
- Aardwarmte, stadsverwarming, warmte terugwininstallatie en warmtepomp
- Warm water
- Aardwarmte en stadsverwarming
Kadastrale gegevens
- AMSTELVEEN O 8679
- Kadastrale kaart
- Eigendomssituatie
- Volle eigendom
Buitenruimte
- Balkon/dakterras
- Balkon aanwezig
Bergruimte
- Schuur/berging
- Inpandig
- Voorzieningen
- Elektra
VvE checklist
- Inschrijving KvK
- Ja
- Jaarlijkse vergadering
- Ja
- Periodieke bijdrage
- Ja (€ 184,55 per maand)
- Reservefonds aanwezig
- Ja
- Onderhoudsplan
- Ja
- Opstalverzekering
- Ja
Foto's 26
Plattegronden 2
© 2001-2025 funda



























