
Omschrijving
Omschrijving:
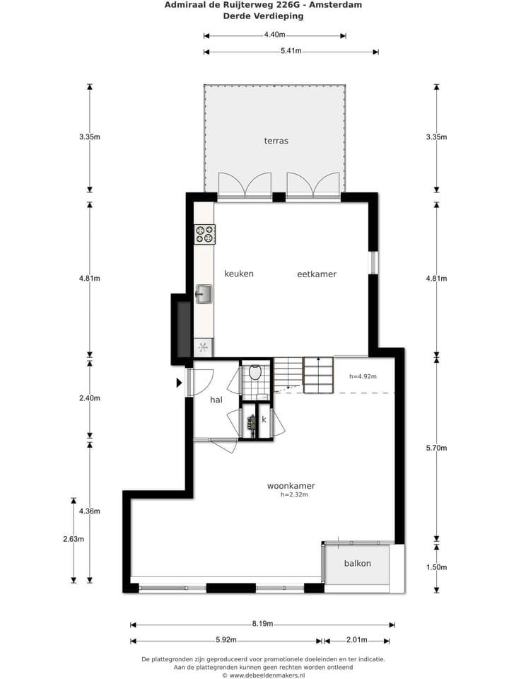
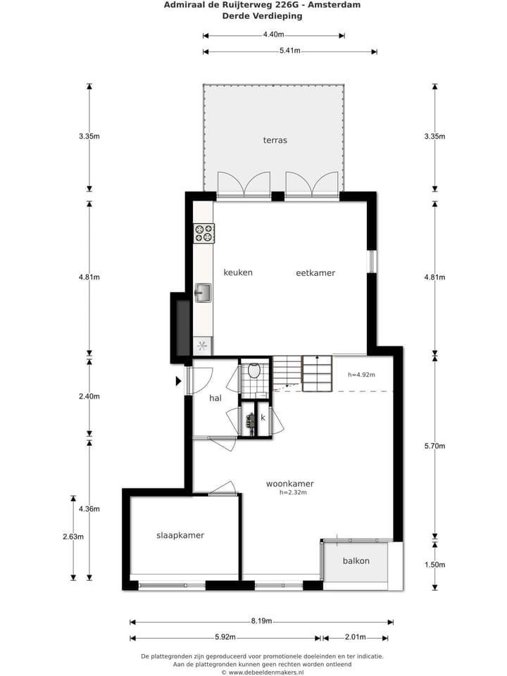
Fantastisch, licht en goed onderhouden appartement, met twee slaapkamers en twee dakterrassen in wooncomplex de 8 Admiralen. Via de lift en door het brede trappenhuis betreedt u de woning op de derde verdieping. Separaat toilet in de hal bij de entree, ruime woonkamer gelegen aan de voorzijde van de woning, met toegang tot een balkon. Via een trappetje komt u bij de open (woon)keuken en eetkamer gelegen aan de achterzijde van de woning, met openslaande deuren naar het ruime en zonnige dakterras. De moderne keuken is voorzien van alle benodigde inbouwapparatuur zoals vaatwasser, oven en magnetron. Trap naar de tweede verdieping met moderne badkamer met inloopdouche, wastafel, toilet en ligbad. Ruime berging met wasmachine aansluiting. Twee ruime slaapkamers aan de voorzijde van de woning, waarvan 1 met toegang tot het tweede dakterras. De hele woning is voorzien van een mooie eikenhouten vloer met vloerverwarming welke in elke ruimte te bedienen is.
De 8 Admiralen:
Stap binnen in een uniek stukje Amsterdam en ervaar modern comfort in het voormalige politiebureau aan de Admiraal de Ruijterweg 226. Een opvallend gebouw met lift dat in 2019 is getransformeerd tot een eigentijds wooncomplex met acht fantastische en goed onderhouden appartementen, van alle gemakken voorzien. De appartementen zijn royaal opgezet, onder meer door de hoge plafonds. Elk appartement beschikt over een eigen buitenruimte, ideaal om tot rust te komen of te genieten van de dynamiek van de stad.
Ligging:
Gelegen aan de Admiraal de Ruijterweg, in stadsdeel Bos en Lommer, met het Erasmuspark, het Westerpark en om de hoek van de Rijpgracht. Door de centrale ligging vlak bij het Centraal Station en de Jordaan. Overige faciliteiten zijn gelegen om de hoek, zoals supermarkten, speciaalzaken en koffietentjes. Ook het groene Erasmuspark is voorzien van verschillende horecazaken. Directe openbaarvervoersverbindingen ook op loopafstand, de ringweg A10 is zeer goed te bereiken met de auto. Het vergunning gebied van de Admiraal de Ruijterweg is West-3.1 waarvoor op dit moment geen wachtlijst is voor het verkrijgen van een parkeervergunning (volgens, in overeenstemming met website van de Gemeente Amsterdam).
Bijzonderheden:
- Gelegen op eigen grond
- 109m2 volgens NEN2580
- Energielabel D
- Getransformeerd in 2019
- Voorbehoud gunning verkoper
- Beoogde servicekosten € 235,50 per maand
- Oplevering in overleg
- Projectnotaris LMH Hartman te Amsterdam
- VVE Beheerder Sturm en de Neeve
- Niet bewoners clausule en NEN2580 clausule van toepassing
Reageren:
Voor het inplannen van een bezichtiging en/ of vragen of opmerkingen over deze woning kunt u contact opnemen met Horatio Makelaardij op 020 773 6337 of
De opgegeven kenmerken zijn slechts als aanduiding bedoeld.
Kenmerken
Overdracht
- Laatste vraagprijs
- € 850.000 kosten koper
- Vraagprijs per m²
- € 7.798
- Status
- Verkocht
- Bijdrage VvE
- € 235,50 per maand
Bouw
- Soort appartement
- Bovenwoning (dubbel bovenhuis)
- Soort bouw
- Bestaande bouw
- Bouwjaar
- 1910
- Soort dak
- Plat dak bedekt met bitumineuze dakbedekking
- Keurmerken
- Energie Prestatie Advies
Oppervlakten en inhoud
- Gebruiksoppervlakten
- Wonen
- 109 m²
- Inhoud
- 300 m³
Indeling
- Aantal kamers
- 3 kamers (2 slaapkamers)
- Aantal badkamers
- 1 badkamer en 1 apart toilet
- Badkamervoorzieningen
- Inloopdouche, ligbad, toilet, vloerverwarming, wastafel, en wastafelmeubel
- Aantal woonlagen
- 1 woonlaag
- Voorzieningen
- Lift, mechanische ventilatie, en TV kabel
- Gelegen op
- 3e woonlaag
Energie
- Energielabel
- Isolatie
- Dubbel glas, HR-glas en muurisolatie
- Verwarming
- Cv-ketel en gehele vloerverwarming
- Warm water
- Cv-ketel
- Cv-ketel
- Gas gestookt combiketel uit 2017, eigendom
Kadastrale gegevens
- SLOTEN C 12237
- Kadastrale kaart
- Eigendomssituatie
- Volle eigendom
Buitenruimte
- Balkon/dakterras
- Dakterras aanwezig en balkon aanwezig
Parkeergelegenheid
- Soort parkeergelegenheid
- Betaald parkeren en parkeervergunningen
VvE checklist
- Inschrijving KvK
- Ja
- Jaarlijkse vergadering
- Ja
- Periodieke bijdrage
- Ja (€ 235,50 per maand)
- Reservefonds aanwezig
- Nee
- Onderhoudsplan
- Ja
- Opstalverzekering
- Ja
Foto's 39
© 2001-2026 funda






































