
Omschrijving
*English translation below*
Dit Dubbel bovenhuis van 70m2, vlak bij het Vondelpark, beschikt maar liefst over drie slaapkamers en drie badkamers, een gezellig dakterras en is gelegen op eigen grond in Amsterdam Zuid!
Dit dubbel laags appartement is ideaal voor studerende kinderen of een koper die graag extra faciliteiten zoekt! Deze woning is zo ingedeeld dat elke slaapkamer een eigen en suite badkamer heeft en ruimte voor een kast daarnaast is er een gezellig dakterras vanwaar je uitzicht hebt op het Vondelpark!
LOCATIE:
Het deel van de Amstelveensewweg tussen het Vondelpark en het Stationsplein, is een levendig en gezellig stukje Amsterdam dat een denkbeeldige scheidslijn vormt tussen de populaire Schinkelbuurt en Oud Zuid. De straat met zijn vele voorzieningen is een bestemming voor veel mensen die een kop koffie willen, een ontmoeting in het park hebben of een gezellig avond uit gaan.
Er is een grote diversiteit van winkels, cafés en speciaalzaken. Zo zijn er bijvoorbeeld de bekende patisserie Linnick het Vlaamse broodhuys nabij gelegen. Iets verderop zit Anne en Max voor een goeie kop koffie. Daarnaast zijn er verschillende restaurants uit zo ongeveer elke windrichting zoals bijvoorbeeld: Rons Gastrobar, Resaurant Blauw en Sotto Pizza. De locale Albert Heijn is slechts een paar minuten lopen, kortom een gevarieerd aanbod voor buurtbewoners en bezoekers.
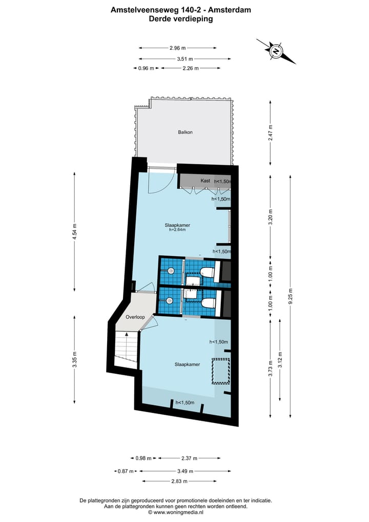
INDELING:
Via de gemeenschappelijke entree en trap is de voordeur toegankelijk op de derde verdieping. De deur opent in een kleine hal met separaat toilet en meterkast. De hal geeft toegang tot de lichte woonkamer met grote ramen aan twee zijden. De moderne keuken is open en is voorzien van een vaatwasser, wasmachine, gasfornuis, afzuigkap, combi oven, koelkast en vriezer. Achter de keuken is een slaapkamer welke tevens handig is te gebruiken als studeerkamer. De kamer is voorzien van zijn eigen badkamer met wc en wastafel.
Via de trap in de woonkamer is de verdieping toegankelijk, op de verdieping zijn twee slaapkamers met ieder een en suite badkamer en toilet. De slaapkamer aan de voorzijde heeft vanuit het dakraam direct zicht op het Vondelpark de kamer aan de achterzijde geeft toegang tot het knusse dakterras.
De woning is in 2017 van binnen geheel gerenoveerd en na-geïsoleerd, het beschikt over een A label, er is een lamel houtenvloer door het gehele appartement. Voor wie er geïnteresseerd in zijn is er een WWS puntentelling beschikbaar en inzage in de deelvergunning.
BIJZONDERHEDEN:
• 70m2 netto ruimte, bruto 93m2 NEN gemeten
• De woning beschikt over een energie A label
• De woning is op Eigen Grond gelegen
• Dakterras van ruim 8m2
• Drie slaapkamers, drie badkamers
• Geweldige Locatie nabij het Vondelpark
• VVE informeel maandelijkse bijdrage is € 200,--
• Het pand is lokaal bekend door de muurschildering van ‘het meisje met de parel’
"Deze informatie is door ons met de nodige zorgvuldigheid samengesteld. Onzerzijds wordt echter geen enkele aansprakelijkheid aanvaard voor enige onvolledigheid, onjuistheid of anderszins, dan wel de gevolgen daarvan. Alle opgegeven maten en oppervlakten zijn indicatief. Van toepassing zijn de NVM voorwaarden."
------------------------------------------------------------------------
This 70m² double upper-floor apartment, located near Vondelpark, boasts no fewer than three bedrooms and three bathrooms, a cozy rooftop terrace, and is situated on freehold land in Amsterdam Zuid!**
This two-level apartment is ideal for students or a buyer looking for extra amenities. Each bedroom has its own en-suite bathroom and space for a wardrobe. Additionally, there is a charming rooftop terrace with views of Vondelpark!
LOCATION:
The section of Amstelveenseweg between Vondelpark and the Stationplein is a lively and welcoming part of Amsterdam, forming an imaginary border between the popular Schinkelbuurt and Oud-Zuid neighborhoods. The street, with its wide array of amenities, is a popular destination for people grabbing a coffee, meeting in the park, or enjoying a night out.
There is a great variety of shops, cafés, and specialty stores. For example, the well-known patisserie Linnick and the Flemish bakery “’t Vlaamsch Broodhuys” are nearby. Just a little further down is Anne & Max for a great cup of coffee. There are also restaurants representing cuisines from all over the world, such as Ron’s Gastrobar, Restaurant Blauw, and Sotto Pizza. The local Albert Heijn supermarket is just a few minutes’ walk away—offering a diverse range of choices for both residents and visitors.
LAYOUT:
The front door is accessible via the communal entrance and staircase on the third floor. The door opens into a small hallway with a separate toilet and utility cupboard. The hall leads to a bright living room with large windows on two sides. The modern open kitchen is equipped with a dishwasher, washing machine, gas stove, extractor hood, combi oven, refrigerator, and freezer. Behind the kitchen is a bedroom that can also conveniently serve as a study. This room has its own en-suite bathroom with a toilet and sink.
The internal staircase in the living room leads to the upper level, which houses two bedrooms, each with its own en-suite bathroom and toilet. The front bedroom has a skylight with direct views of Vondelpark, while the rear bedroom offers access to the cozy rooftop terrace.
The apartment was completely renovated and internally insulated in 2017, resulting in an energy label A. A wooden laminate floor runs throughout the apartment. For interested buyers, a WWS points report and details of the partial rental permit are available upon request.
DETAILS:
* 70m² net living space, 93m² gross (measured according to NEN standards)
* Energy label A
* Located on freehold land (no ground lease)
* Rooftop terrace of over 8m²
* Three bedrooms, three bathrooms
* Excellent location near Vondelpark
* Informal HOA, monthly contribution €200
* The building is locally known for its mural of “Girl with a Pearl Earring”
"This information has been compiled by us with due care. However, we accept no liability for any incompleteness, inaccuracy, or otherwise, nor for the consequences thereof. All stated dimensions and surfaces are indicative. NVM terms and conditions apply."
Kenmerken
Overdracht
- Laatste vraagprijs
- € 650.000 kosten koper
- Vraagprijs per m²
- € 9.286
- Status
- Verkocht
- Bijdrage VvE
- € 150,00 per maand
Bouw
- Soort appartement
- Bovenwoning
- Soort bouw
- Bestaande bouw
- Bouwjaar
- 1905
- Specifiek
- Gestoffeerd
Oppervlakten en inhoud
- Gebruiksoppervlakten
- Wonen
- 70 m²
- Gebouwgebonden buitenruimte
- 8 m²
- Inhoud
- 268 m³
Indeling
- Aantal kamers
- 4 kamers (3 slaapkamers)
- Aantal badkamers
- 3 badkamers en 1 apart toilet
- Badkamervoorzieningen
- Inloopdouche, 3 toiletten, 3 wastafels, en 2 douches
- Aantal woonlagen
- 2 woonlagen
- Voorzieningen
- Mechanische ventilatie
- Gelegen op
- 2e woonlaag
Energie
- Energielabel
- Verwarming
- Cv-ketel
- Warm water
- Cv-ketel
- Cv-ketel
- Intergas ( combiketel uit 2017, eigendom)
Kadastrale gegevens
- AMSTERDAM U 10504
- Kadastrale kaart
- Eigendomssituatie
- Volle eigendom
Buitenruimte
- Balkon/dakterras
- Dakterras aanwezig
Parkeergelegenheid
- Soort parkeergelegenheid
- Openbaar parkeren en parkeervergunningen
VvE checklist
- Inschrijving KvK
- Ja
- Jaarlijkse vergadering
- Ja
- Periodieke bijdrage
- Ja (€ 150,00 per maand)
- Reservefonds aanwezig
- Nee
- Onderhoudsplan
- Nee
- Opstalverzekering
- Nee
Foto's 28
© 2001-2026 funda



























