
Omschrijving
Waanzinnig licht en sfeervol dubbel bovenhuis (ca. 120 m²) met eigen entree in het bruisende hart van de Baarsjes!
Welkom in dit charmante familiehuis vol karakter en comfort, gelegen in een van de leukste straten van Amsterdam West: de Arubastraat. Dit nagenoeg instapklare bovenhuis ademt de robuuste Amsterdamse School-architectuur en combineert authentieke details zoals glas-in-loodramen, paneeldeuren en een kamer en-suite met modern woonplezier.
Met drie royale slaapkamers, een stijlvolle badkamer, een heerlijk balkon én een zonnig dakterras van maar liefst 20 m² op het zuiden, is dit een droomplek voor wie op zoek is naar ruimte, rust én het stadse leven.
*ENGLISH TRANSLATION BELOW
Indeling
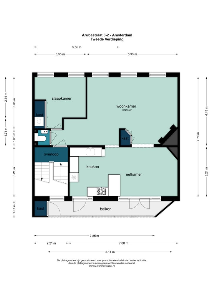
Via je eigen opgang kom je op de tweede verdieping. De hal leidt naar een separaat toilet, de meterkast en de ruime living met sfeervolle open haard en indrukwekkende glas-in-loodramen. Aan de achterzijde bevindt zich de grote eetkamer met moderne open keuken, die dankzij openslaande deuren baadt in het daglicht. Het brede balkon (circa 8 meter!) op het zuiden biedt een fantastisch uitzicht op de groene binnentuinen en is de perfecte plek om tot laat in de zon te genieten.
De keuken is een ware eyecatcher, compleet uitgerust met een 6-pits SMEG gasfornuis en oven, grote koelkast met aparte vriezer, vaatwasser, afzuigkap, volop kastruimte en een gezellige bar met drie zitplekken.
Op de derde verdieping vind je twee zeer ruime slaapkamers, waaronder een master bedroom met openslaande deuren naar het royale dakterras. Hier geniet je in alle privacy van de zon en de rust. Eén van de kamers beschikt over een luxe walk-in closet. De moderne badkamer is voorzien van een ligbad, inloopdouche en dubbele wastafel. Ook hier is er een separaat toilet met fonteintje.
Locatie
De Westindische buurt is een populaire, kindvriendelijke wijk vol leuke hotspots. Je loopt zó naar gezellige cafés, fijne koffietentjes en goede restaurants aan de Kinkerstraat, Overtoom en Amstelveenseweg. Met de fiets ben je binnen tien minuten in het centrum en ook de Ring A10 is vlakbij. Parkeren doe je gemakkelijk met een vergunning (snel verkrijgbaar), en elektrische auto's kunnen voor de deur opgeladen worden. Als kers op de taart kun je zelfs je bootje aanleggen om de hoek, aan de Postjeskade!
Bijzonderheden
- Woonoppervlak: ca. 120 m² (NEN2580 gemeten);
- 3 ruime slaapkamers, waarvan één met walk-in closet;
- Zonnig balkon én riant dakterras op het zuiden;
- Gelegen op erfpachtgrond (€ 1.432,14 per jaar);
- Eeuwigdurende tijdvak (na 2052) af te kopen voor ca. € 22.000;
- Goed functionerende VvE (3 leden);
- Oplevering in overleg.
ENGLISH TRANSLATION
Incredibly Bright and Atmospheric Double Upper House (approx. 120 m²) with Private Entrance in the Vibrant Heart of De Baarsjes!
Welcome to this charming family home full of character and comfort, located on one of the most delightful streets in Amsterdam West: Arubastraat. This nearly move-in ready upper house exudes the robust style of the Amsterdam School of architecture and combines authentic features such as stained-glass windows, panel doors, and an en-suite room with modern living comfort.
With three generous bedrooms, a stylish bathroom, a lovely balcony, and a sunny south-facing rooftop terrace of no less than 20 m², this is a dream home for anyone looking for space, tranquility, and city life.
Layout
Through your private entrance, you reach the second floor. The hallway leads to a separate toilet, the utility cupboard, and the spacious living room with a cozy fireplace and impressive stained-glass windows. At the rear is the large dining room with a modern open kitchen, which is flooded with daylight thanks to the French doors. The wide (approximately 8 meters!) south-facing balcony offers a fantastic view of the green inner gardens and is the perfect spot to enjoy the sun until late in the day.
The kitchen is a true eye-catcher, fully equipped with a 6-burner SMEG gas stove and oven, a large fridge with separate freezer, dishwasher, extractor hood, ample cabinet space, and a cozy bar with seating for three.
On the third floor, you'll find two very spacious bedrooms, including a master bedroom with French doors opening onto the generous rooftop terrace. Here, you can enjoy the sun and peace in complete privacy. One of the rooms features a luxurious walk-in closet. The modern bathroom includes a bathtub, walk-in shower, and double washbasin. There is also a separate toilet with a small sink on this floor.
Location
The West Indian neighborhood is a popular, family-friendly area full of great hotspots. You’re just a short walk from cozy cafés, excellent coffee spots, and quality restaurants on Kinkerstraat, Overtoom, and Amstelveenseweg. By bike, you’re in the city center within ten minutes, and the A10 Ring Road is also nearby. Parking is easy with a permit (readily available), and electric cars can be charged right at your doorstep. As a bonus, you can even moor your boat just around the corner at the Postjeskade!
Highlights
- Living area: approx. 120 m² (measured according to NEN2580);
- 3 spacious bedrooms, one with a walk-in closet;
- Sunny balcony and generous south-facing rooftop terrace;
- Located on leasehold land (€ 1,432.14 per year);
- Perpetual leasehold (after 2052) can be bought off for approx. € 22,000;
- Well-functioning owners' association (3 members);
- Delivery in consultation.
DISCLAIMER
Deze informatie is door ons met de nodige zorgvuldigheid samengesteld. Onzerzijds wordt echter geen enkele aansprakelijkheid aanvaard voor enige onvolledigheid, onjuistheid of anderszins, dan wel de gevolgen daarvan. Alle opgegeven maten en oppervlakten zijn indicatief. Hoewel wij de woning zorgvuldig hebben opgemeten, wordt noch door De Graaf & Groot Makelaars, noch door de verkoper enige aansprakelijkheid aanvaard voor afwijkingen in de opgegeven maten. Koper verklaart in gelegenheid te zijn gesteld om de opgegeven maten te (laten) controleren. Koper heeft zijn eigen onderzoek plicht naar alle zaken die voor hem of haar van belang zijn. Met betrekking tot deze woning is de makelaar adviseur van verkoper. Wij adviseren u een deskundige (NVM-)makelaar in te schakelen die u begeleidt bij het aankoopproces. Indien u specifieke wensen heeft
omtrent de woning, adviseren wij u deze tijdig kenbaar te maken aan uw aankopend makelaar en hiernaar zelfstandig onderzoek te (laten) doen. Indien u geen deskundige vertegenwoordiger inschakelt, acht u zich volgens de wet deskundige genoeg om alle zaken die van belang zijn te kunnen overzien. Van toepassing zijn de NVM voorwaarden.
NEN clausule
De gebruiksoppervlakte is berekend conform de branche vastgestelde NEN 2580- norm. De oppervlakte kan derhalve afwijken van vergelijkbare panden en/of oude referenties. Dit heeft vooral te maken met deze (nieuwe) rekenmethode. Koper verklaart voldoende te zijn geïnformeerd over de hiervoor bedoelde normering. Verkoper en diens makelaar doen hun uiterste best de juiste oppervlakte en inhoud te berekenen aan de hand van eigen metingen en dit zoveel mogelijk te ondersteunen door het plaatsen van plattegronden met maatvoering. Mocht de maatvoering onverhoopt niet (volledig) overeenkomstig de normering zijn vastgesteld, wordt dit door koper aanvaard. Koper is voldoende in de gelegenheid gesteld de maatvoering zelf te (laten) controleren. Verschillen in de opgegeven maat en grootte geven geen der partijen enig recht, zo ook niet op aanpassing van de koopsom. Verkoper en diens makelaar aanvaarden geen enkele aansprakelijkheid in deze.
Kenmerken
Overdracht
- Laatste vraagprijs
- € 925.000 kosten koper
- Vraagprijs per m²
- € 7.708
- Status
- Verkocht
Bouw
- Soort appartement
- Bovenwoning (appartement)
- Soort bouw
- Bestaande bouw
- Bouwjaar
- 1927
Oppervlakten en inhoud
- Gebruiksoppervlakten
- Wonen
- 120 m²
- Overige inpandige ruimte
- 2 m²
- Gebouwgebonden buitenruimte
- 28 m²
- Inhoud
- 410 m³
Indeling
- Aantal kamers
- 5 kamers (3 slaapkamers)
- Aantal badkamers
- 1 badkamer en 2 aparte toiletten
- Badkamervoorzieningen
- Dubbele wastafel, inloopdouche, ligbad, en wastafelmeubel
- Aantal woonlagen
- 2 woonlagen
- Voorzieningen
- Natuurlijke ventilatie en TV kabel
- Gelegen op
- 2e woonlaag
Energie
- Energielabel
- Niet beschikbaar
- Isolatie
- Dubbel glas
- Verwarming
- Cv-ketel
- Warm water
- Cv-ketel
- Cv-ketel
- Intergas Kombi Kompakt HRE 28/24 A (gas gestookt combiketel, eigendom)
Kadastrale gegevens
- AMSTERDAM M 1728
- Kadastrale kaart
- Eigendomssituatie
- Gemeentelijk eigendom belast met erfpacht (einddatum erfpacht: 15-02-2052)
- Lasten
- € 1.432,14 per jaar
Buitenruimte
- Ligging
- Aan rustige weg
- Tuin
- Zonneterras
- Zonneterras
- 19 m² (3,06 meter diep en 6,11 meter breed)
- Ligging tuin
- Gelegen op het zuiden
- Balkon/dakterras
- Balkon aanwezig
Bergruimte
- Schuur/berging
- Inpandig
Parkeergelegenheid
- Soort parkeergelegenheid
- Betaald parkeren, openbaar parkeren en parkeervergunningen
VvE checklist
- Inschrijving KvK
- Ja
- Jaarlijkse vergadering
- Ja
- Periodieke bijdrage
- Ja
- Reservefonds aanwezig
- Nee
- Onderhoudsplan
- Nee
- Opstalverzekering
- Ja
Foto's 35
© 2001-2026 funda


































