
Omschrijving
Op een toplocatie in het zeer gewilde Oud-West mooi gerenoveerd driedubbel bovenhuis voorzien van maar liefst 4 balkons en een royaal dakterras. Dit royale en goed onderhouden en duurzame appartement is gelegen op de tweede, derde en vierde verdieping, met thans 4 slaapkamers en 3 badkamers.
De woning is gelegen in een rustig gedeelte van de zeer populaire Helmersbuurt. Het Vondelpark en het Centrum van Amsterdam treft u op loopafstand, evenals gezellige restaurants en diverse supermarkten en winkels voor de dagelijkse boodschappen.
Indeling:
- Begane grond: entree, eigen opgang.
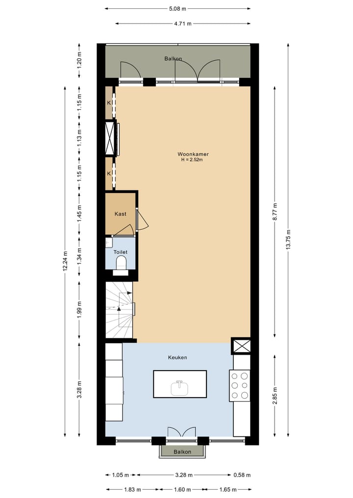
- Tweede verdieping: royale woonkamer met open keuken en openslaande deuren naar de balkons voor en achter, toilet en bergkast.
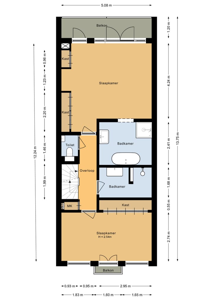
- Derde verdieping: overloop, separaat toilet, 2 slaapkamers, 2 badkamers, 2 balkons.
- Vierde verdieping: overloop, separaat toilet, 2 slaapkamers, een badkamer en een berg/waskamer, stookruimte.
- Dakterras.
Omgeving:
Dit karakteristieke pand ligt op een fantastische locatie in Oud-West, in een rustige straat in een van de meest populaire buurten van Amsterdam. Op loopafstand vindt u o.a. het Vondelpark, de Overtoom, Ten Katemarkt, Kinkerstraat, Jan Pieter Heijestraat, De Hallen en het Museumplein. En binnen slechts enkele minuten staat u in de gezellige Jordaan en op het Leidseplein. Alle winkels voor uw dagelijkse en niet-dagelijkse boodschappen zijn op loopafstand. In deze buurt bevinden zich verder tal van hotspots, leuke restaurantjes, eetcafés en hippe koffietentjes. De woning is zeer goed bereikbaar met het openbaar vervoer en met de auto heeft u een snelle aansluiting met de ring A10.
Bijzonderheden:
- Zeer energiezuinig, Energielabel A.
- Vloerverwarming door de gehele woning.
- Een zonnig dakterras én 4 balkons.
- Gelegen in een rustig gedeelte van Oud-West.
- Voormalig 8 kamers, thans 5 kamers en 3 badkamers.
- Het huis beschikt over vele praktische inbouwkasten waardoor veel bergruimte gecreëerd is.
- Kleinschalige en professioneel beheerde VvE.
- Zeer gewilde locatie!
- Eigen grond!
Kortom: een geweldig appartement op een superlocatie, bel snel voor het maken van een afspraak!
Wij adviseren u een (NVM-)makelaar in te schakelen die u begeleidt bij het aankoopproces. Indien u geen deskundige vertegenwoordiger inschakelt, acht u zich volgens de wet deskundige genoeg om alle zaken die van belang zijn te kunnen overzien. Van toepassing zijn de NVM voorwaarden. Deze informatie is met de nodige zorgvuldigheid samengesteld. Er wordt echter geen enkele aansprakelijkheid aanvaard voor onvolledigheid of onjuistheid, danwel de gevolgen daarvan. Alle opgegeven maten en oppervlakten zijn indicatief. Koper heeft zijn eigen onderzoeksplicht naar alle zaken die voor hem of haar van belang zijn. Met betrekking tot deze woning is de makelaar adviseur van verkoper.
Kenmerken
Overdracht
- Servicekosten
- € 366 per maand
- Aangeboden sinds
- Aanvaarding
- In overleg
- Vraagprijs
- € 1.750.000 kosten koper
- Vraagprijs per m²
- € 9.511
- Status
- Onder bod
Bouw
- Soort appartement
- Bovenwoning
- Soort bouw
- Bestaande bouw
- Bouwjaar
- 1900
Oppervlakten en inhoud
- Gebruiksoppervlakten
- Wonen
- 184 m²
- Gebouwgebonden buitenruimte
- 55 m²
- Inhoud
- 590 m³
Indeling
- Aantal kamers
- 5 kamers (4 slaapkamers)
- Aantal badkamers
- 3 badkamers en 3 aparte toiletten
- Badkamervoorzieningen
- 3 douches, 2 ligbaden, en 3 wastafels
- Aantal woonlagen
- 3 woonlagen
- Gelegen op
- 2e woonlaag
Energie
- Energielabel
- Isolatie
- Dubbel glas
- Verwarming
- Cv-ketel
- Warm water
- Cv-ketel
- Cv-ketel
- Gas gestookt combiketel, eigendom
Kadastrale gegevens
- AMSTERDAM T 6326
- Kadastrale kaart
- Eigendomssituatie
- Volle eigendom
- AMSTERDAM T 6326
- Kadastrale kaart
- Eigendomssituatie
- Volle eigendom
Buitenruimte
- Ligging
- Aan rustige weg
- Balkon/dakterras
- Balkon aanwezig
Bergruimte
- Schuur/berging
- Inpandig
VvE checklist
- Inschrijving KvK
- Ja
- Jaarlijkse vergadering
- Ja
- Periodieke bijdrage
- Ja
- Reservefonds aanwezig
- Ja
- Onderhoudsplan
- Ja
- Opstalverzekering
- Ja
Foto's 57
© 2001-2026 funda
























































