
Omschrijving
Keurig en centraal gelegen 2-kamerappartement met vrij uitzicht en groene binnentuin
Dit goed onderhouden 2-kamerappartement ligt op de derde verdieping van een verzorgd appartementencomplex met afgesloten entree, inpandige bergingen en een actieve, financieel gezonde Vereniging van Eigenaren (VvE). Aan de achterzijde biedt het appartement vrij uitzicht op een fraai aangelegde, groene binnentuin met recreatiemogelijkheden, speeltoestellen en een tennisbaan voor bewoners.
Ligging en bereikbaarheid
De woning is uitstekend bereikbaar met het openbaar vervoer: station Duivendrecht, Diemen Zuid en metrostation Venserpolder liggen op slechts enkele minuten afstand. Met de auto bereikt u binnen vijf minuten de snelwegen A1, A2 en de ring A10. In de directe omgeving bevinden zich scholen, sportfaciliteiten en meerdere winkelcentra. Voor dagelijkse boodschappen kunt u terecht bij winkelcentrum Kruidenhof (Diemen Zuid), de Amsterdamse Poort of een supermarkt op slechts vijf minuten loopafstand.
De nabijgelegen Campus Diemen Zuid biedt extra voorzieningen zoals koffiebars, restaurants en werkplekken. Ook op het gebied van entertainment is de locatie ideaal: de Ziggo Dome, AFAS Live, Pathé Arena en de Johan Cruijff ArenA liggen op korte afstand. Binnen ongeveer 15 minuten met het openbaar vervoer staat u in hartje Amsterdam.
Indeling
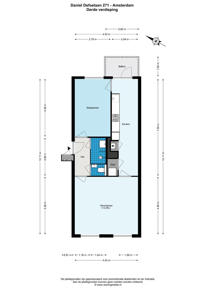
De entree van het appartement bevindt zich op de derde verdieping. Vanuit de hal zijn vrijwel alle vertrekken bereikbaar. Aan de voorzijde, gelegen aan een rustige straat, bevindt zich de lichte woonkamer met ruimte voor een eethoek. Aansluitend ligt de keuken en een praktische inpandige berging met wasmachineaansluiting, die tevens toegang biedt tot het balkon op het noordoosten. De ruime slaapkamer aan de achterzijde kijkt uit op de groene binnentuin. Centraal in de woning bevinden zich een apart toilet en een badkamer met wastafel en douche.
Op de begane grond is een eigen (fietsen)berging aanwezig.
Bijzonderheden:
Energielabel C
Volledig voorzien van dubbel glas
Separate berging op de begane grond
Servicekosten ca. € 166,81 per maand
Erfpacht EEUWIGDUREND afgekocht!
Oplevering in overleg, kan op korte termijn
Kenmerken
Overdracht
- Laatste vraagprijs
- € 300.000 kosten koper
- Vraagprijs per m²
- € 5.085
- Status
- Verkocht
Bouw
- Soort appartement
- Bovenwoning (appartement)
- Soort bouw
- Bestaande bouw
- Bouwjaar
- 1983
- Soort dak
- Plat dak bedekt met bitumineuze dakbedekking
- Keurmerken
- Energie Prestatie Advies
Oppervlakten en inhoud
- Gebruiksoppervlakten
- Wonen
- 59 m²
- Gebouwgebonden buitenruimte
- 4 m²
- Externe bergruimte
- 4 m²
- Inhoud
- 187 m³
Indeling
- Aantal kamers
- 2 kamers (1 slaapkamer)
- Aantal badkamers
- 1 badkamer en 1 apart toilet
- Badkamervoorzieningen
- Douche en wastafel
- Aantal woonlagen
- 1 woonlaag
- Voorzieningen
- Natuurlijke ventilatie en TV kabel
- Gelegen op
- 3e woonlaag
Energie
- Energielabel
- C
- Isolatie
- Dubbel glas
- Verwarming
- Cv-ketel
- Warm water
- Cv-ketel
- Cv-ketel
- Gas gestookt combiketel, eigendom
Kadastrale gegevens
- WEESPERKARSPEL A 1932
- Kadastrale kaart
- Eigendomssituatie
- Gemeentelijk eigendom belast met erfpacht
- Lasten
- Eeuwigdurend afgekocht
Buitenruimte
- Ligging
- Aan rustige weg en in woonwijk
- Balkon/dakterras
- Balkon aanwezig
Bergruimte
- Schuur/berging
- Box
Parkeergelegenheid
- Soort parkeergelegenheid
- Betaald parkeren en parkeervergunningen
VvE checklist
- Inschrijving KvK
- Ja
- Jaarlijkse vergadering
- Ja
- Periodieke bijdrage
- Ja
- Reservefonds aanwezig
- Ja
- Onderhoudsplan
- Ja
- Opstalverzekering
- Ja
Foto's 26
© 2001-2025 funda

























